For Lease - 516 John Street Unit# 215, Aylmer, Ontario

Views   1
Time on Jump  1 days
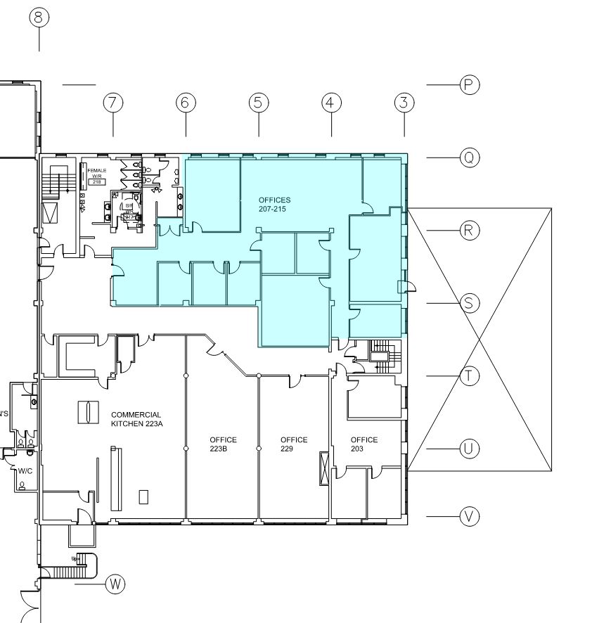
  • Fully built out office space with multiple workspaces and private offices.
  • Includes a board room and a kitchen for team lunches.
  • Divisible down to 2000 square feet for flexible use.
  • Located in Aylmer's Elgin Innovation Centre for easy access.
  • Separate warehousing and industrial space also available nearby.
Fully built out office space with several workspaces, many private offices a board room and lunchroom with kitchenette. Divisible down to 2000 sf. Located in aylmer's elgin innovation centre. Separate warehousing and industrial space available.
Listing IDX13024006
Address516 John Street Unit# 215
CityAylmer, Ontario
Lease$12
StyleOffice
TypeIndustrial/Commercial
StatusFor Lease
Subtype OfficeOwnership LeaseholdHeating / Cooling Gas Forced Air OpenSewer Sanitary+Storm
ASAP

Wed

22

Apr

Thu

23

Apr

Fri

24

Apr

Sat

25

Apr

Sun

26

Apr

Mon

27

Apr

Tue

28

Apr

Wed

29

Apr

Thu

30

Apr

Fri

1

May

Sat

2

May

Sun

3

May

Mon

4

May

Tue

5

May

Wed

6

May

Thu

7

May

Fri

8

May

Sat

9

May

Sun

10

May

Mon

11

May

Tue

12

May

Wed

13

May

Thu

14

May

Fri

15

May

Sat

16

May

Sun

17

May

Mon

18

May

Tue

19

May

Wed

20

May

By clicking “Get pre-qualified” and/or 'Submit' you are expressly consenting, in writing, to receive telemarketing and other messages, including artificial or prerecorded voices, via automated calls or texts from jumprealty.ca and up.mortgages at the number you provided above. This consent is not required to purchase any good or service. Message and data rates may apply, frequency varies. Text HELP for help or STOP to cancel. More details in Terms of Use and Privacy Policy.

Listing Agency:  STREETCITY REALTY INC.

* Data is provided courtesy of PROPTX. The information provided herein must only be used by consumers that have a bona fide interest in the purchase, sale, or lease of real estate and may not be used for any commercial purpose or any other purpose. The information is deemed reliable but is not guaranteed accurate by PROPTX.

Hospital
Parks
Schools
Place of Worship
Please select an amenity above to view a list.

Recommended Properties

Loading...
516 John Street Unit# 215
Aylmer , Ontario
$12
Get more info