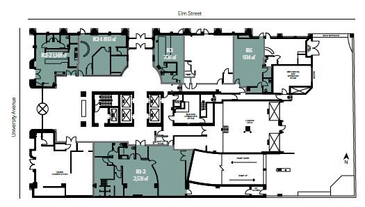
For Lease - 525 University Avenue Unit# R1-2, Toronto, Ontario

Views   5
Time on Jump  58 day
  • Prime ground-floor leasing opportunity in Toronto's Discovery District.
  • Strong pedestrian traffic boosts visibility and accessibility.
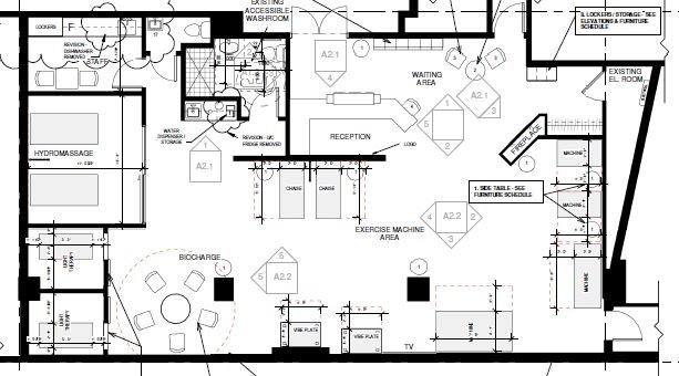
  • Recently renovated space with modern open layouts and complete washrooms.
  • Close proximity to top hospitals and research institutions.
  • Ideal for various medical, wellness, and professional services.
Position your business at the center of one of canada's most influential healthcare and research corridors. Unit r1-2 offers a rare ground-floor leasing opportunity in toronto's renowned discovery district. Located at the base of a 192,771 sq. Ft. Office tower, this space benefits from lobby access, strong pedestrian traffic, and exceptional visibility within a professionally managed building. The unit has recently undergone a modern appealing renovation, offering open spaces and complete washrooms. Unmatched healthcare location, this property is steps from some of canada's most respected hospitals and research institutions, including: toronto general hospital, princess margaret cancer centre, mount sinai hospital, hospital for sick children. The surrounding institutions also include the world-leading innovation hub mars discovery district and the academic strength of the university of toronto. These institutions generate a constant flow of healthcare professionals, researchers, patients, and visitors, creating strong demand for medical, wellness, and professional services. Ideal uses include a wide range of medical and service-based users, including: physiotherapy, chiropractic, pilates, rehabilitation studios, wellness and treatment clinics, specialized healthcare services, professional or medical support offices.
Listing IDC12883064
Address525 University Avenue Unit# R1-2
CityToronto, Ontario
Lease$28
StyleOffice
TypeIndustrial/Commercial
StatusFor Lease
Subtype OfficeCommunity Features Public TransitOwnership LeaseholdHeating / Cooling Gas Forced Air Closed
ASAP

Tue

12

May

Wed

13

May

Thu

14

May

Fri

15

May

Sat

16

May

Sun

17

May

Mon

18

May

Tue

19

May

Wed

20

May

Thu

21

May

Fri

22

May

Sat

23

May

Sun

24

May

Mon

25

May

Tue

26

May

Wed

27

May

Thu

28

May

Fri

29

May

Sat

30

May

Sun

31

May

Mon

1

Jun

Tue

2

Jun

Wed

3

Jun

Thu

4

Jun

Fri

5

Jun

Sat

6

Jun

Sun

7

Jun

Mon

8

Jun

Tue

9

Jun

By clicking “Get pre-qualified” and/or 'Submit' you are expressly consenting, in writing, to receive telemarketing and other messages, including artificial or prerecorded voices, via automated calls or texts from jumprealty.ca and up.mortgages at the number you provided above. This consent is not required to purchase any good or service. Message and data rates may apply, frequency varies. Text HELP for help or STOP to cancel. More details in Terms of Use and Privacy Policy.

Listing Agency:  REAL BROKER ONTARIO LTD.

* Data is provided courtesy of PROPTX. The information provided herein must only be used by consumers that have a bona fide interest in the purchase, sale, or lease of real estate and may not be used for any commercial purpose or any other purpose. The information is deemed reliable but is not guaranteed accurate by PROPTX.

Hospital
Parks
Schools
Place of Worship
Please select an amenity above to view a list.

Recommended Properties

Loading...
525 University Avenue Unit# R1-2
Toronto , Ontario
$28
Get more info