For Sale - 53 Boddington Street, Barrhaven, Ontario

Est payment $5,205/mo
Views   1
Time on Jump  1 days
  • Located on a quiet street in a family-friendly community.
  • Bright living and dining area with a cozy gas fireplace.
  • Stylish eat-in kitchen with quartz countertops and new appliances.
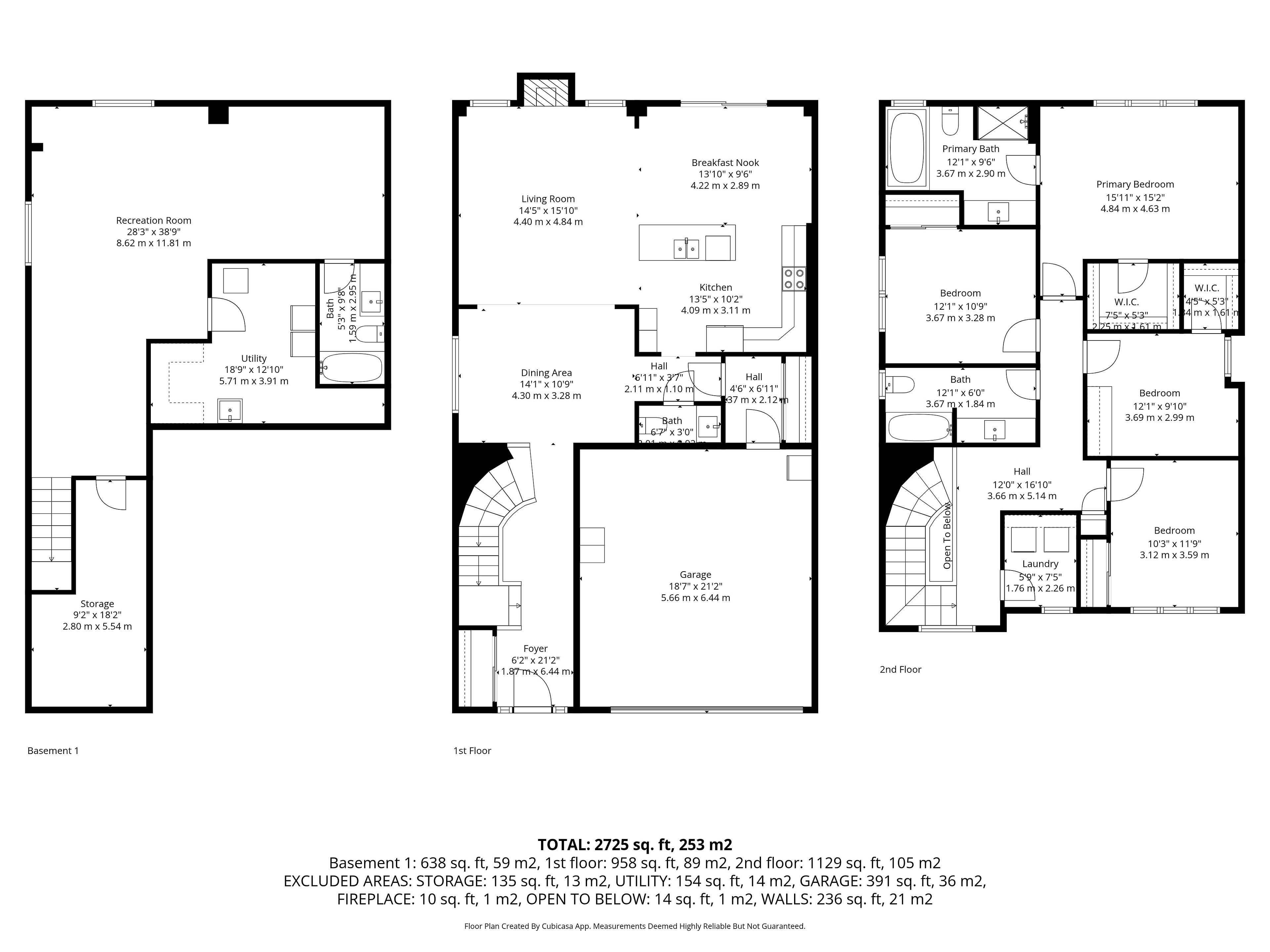
  • Fully finished lower level perfect for relaxing and entertaining.
  • Outdoor oasis featuring a fenced yard, solarium, and hot tub.



Set on a quiet street in the family friendly community of quinn's pointe, this move in ready single-family home offers a perfect blend of comfort, space, and thoughtful updates. Designed with everyday living in mind, the layout flows effortlessly from room to room, creating a welcoming atmosphere for families and entertainers alike. The main floor features a bright and spacious living and dining area, warmed by a cozy gas fireplace. The eat in kitchen is both stylish and functional, showcasing quartz countertops, a large island with breakfast bar seating, and brand-new stainless-steel appliances (fridge, stove & dishwasher 2026). Step directly from the kitchen into a private, fully landscaped and interlocked backyard that is completely maintenance free. Upstairs, vinyl flooring runs throughout the second level. The primary bedroom retreat includes a walk-in closet, and a spa inspired ensuite with a soaker tub and separate shower. Three additional well sized bedrooms, a full bathroom, and a convenient second floor laundry room complete this level, offering space and practicality for growing families. The fully finished lower level is ideal for both relaxation and entertaining, featuring a large recreation room, a dedicated tv area, and plenty of storage space. Outdoors, enjoy a true backyard oasis with a fully fenced interlock yard, a solarium with lighting, and a hot tub, perfect for entertaining or unwinding. Ideally located close to schools, parks, transit, shopping, and everyday amenities, this exceptional home delivers comfort, convenience, and lifestyle in one complete package.
Listing IDX12811876
Address53 Boddington Street
CityBarrhaven, Ontario
Price$1,050,000
Bed / Bath4 / 4 Full
Style2-Storey, Detached
ConstructionStone, Vinyl Siding
Land Size0.076
TypeResidential
StatusFor Sale
Subtype DetachedIndoor Features Auto Garage Door Remote, On Demand Water HeaterOutdoor Features Hot Tub, Landscaped, Lighting, PatioAmenities Fenced Yard, Public Transit, Rec./Commun.CentreOwnership FreeholdWaterfront NoneBasement Finished, FullFoundation ConcreteHeating / Cooling Forced AirHeating Fuel GasSewer Sewer
Parking 5.00
ASAP

Tue

24

Feb

Wed

25

Feb

Thu

26

Feb

Fri

27

Feb

Sat

28

Feb

Sun

1

Mar

Mon

2

Mar

Tue

3

Mar

Wed

4

Mar

Thu

5

Mar

Fri

6

Mar

Sat

7

Mar

Sun

8

Mar

Mon

9

Mar

Tue

10

Mar

Wed

11

Mar

Thu

12

Mar

Fri

13

Mar

Sat

14

Mar

Sun

15

Mar

Mon

16

Mar

Tue

17

Mar

Wed

18

Mar

Thu

19

Mar

Fri

20

Mar

Sat

21

Mar

Sun

22

Mar

Mon

23

Mar

Tue

24

Mar

By clicking “Get pre-qualified” and/or 'Submit' you are expressly consenting, in writing, to receive telemarketing and other messages, including artificial or prerecorded voices, via automated calls or texts from jumprealty.ca and up.mortgages at the number you provided above. This consent is not required to purchase any good or service. Message and data rates may apply, frequency varies. Text HELP for help or STOP to cancel. More details in Terms of Use and Privacy Policy.

Listing Agency:  CENTURY 21 SYNERGY REALTY INC
Hospital
Parks
Schools
Place of Worship
Please select an amenity above to view a list.

Recommended Properties

Loading...
53 Boddington Street
Barrhaven , Ontario
4 4 $1,050,000
Get more info