For Lease - 531 PELISSIER Street Unit# 102, Windsor, Ontario

Views   4
Time on Jump  50 day
  • Brand new main floor space in a boutique condominium building.
  • Spacious 1870 sqft with additional 1203 sqft leasing option.
  • Turnkey build-outs available to fit specific needs.
  • Excellent visibility near restaurants, shops, and universities.
  • Join the revitalization of downtown with growing residential projects.
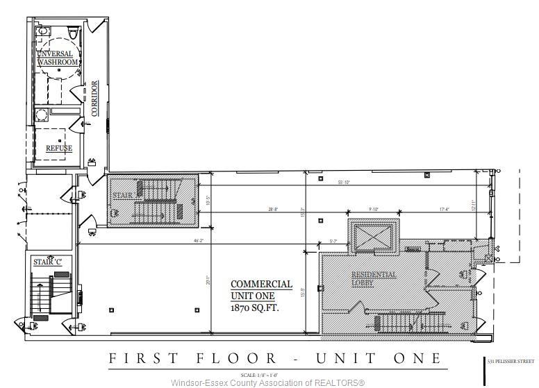
There is nothing like this space available in downtown windsor. Brand new main floor space ready to go in "the hive on pelissier" a boutique 24 unit condominium building in the heart of downtown windsor. Bring us your ideas and together we can work to bring your vision to reality. This brand new blank slate space offers 1870 sqft plus the option to lease an additional 1203 sqft in the lower level. Turn key build outs available. Excellent visibility among boutique shops, restaurants, law and professional offices, usa commuter traffic, downtown st clair college & u of w students and the downtown windsor farmers market. Join the downtown windsor renascence with multiple residential projects under development, completed and under construction which plan to add thousands of residents to the downtown core. Call today for more information or a personal tour.
Listing ID26006642
Address531 PELISSIER Street Unit# 102
CityWindsor, Ontario
Lease$2,800
FlooringConcrete
TypeIndustrial/Commercial
StatusFor Lease
Attachment Style Condo, Multi-StoreySubtype Office(s), Restaurant, RetailApprox. Square Footage 1870Acreage 0.164Inclusions Building Insurance, Common Area Maintenance, Other, See Remarks, Property Taxes, WaterParking Other, See RemarksAmenities High Traffic Location, Shopping Nearby, Visual ExposureOwnership LeaseholdRental Equipment NoBuilding Amenities Alarm System, Natural Light, Other, See RemarksFire Protection Full Sprinkler System, Monitored Alarm SystemHeating / Cooling Other, See RemarksHeating Fuel Natural GasUtility Power PHASEUtility Water Municipal WaterSewer Sanitary, Storm
Date Listed Mar 31, 2026Days on Market 50
ASAP

Thu

21

May

Fri

22

May

Sat

23

May

Sun

24

May

Mon

25

May

Tue

26

May

Wed

27

May

Thu

28

May

Fri

29

May

Sat

30

May

Sun

31

May

Mon

1

Jun

Tue

2

Jun

Wed

3

Jun

Thu

4

Jun

Fri

5

Jun

Sat

6

Jun

Sun

7

Jun

Mon

8

Jun

Tue

9

Jun

Wed

10

Jun

Thu

11

Jun

Fri

12

Jun

Sat

13

Jun

Sun

14

Jun

Mon

15

Jun

Tue

16

Jun

Wed

17

Jun

Thu

18

Jun

By clicking “Get pre-qualified” and/or 'Submit' you are expressly consenting, in writing, to receive telemarketing and other messages, including artificial or prerecorded voices, via automated calls or texts from jumprealty.ca and up.mortgages at the number you provided above. This consent is not required to purchase any good or service. Message and data rates may apply, frequency varies. Text HELP for help or STOP to cancel. More details in Terms of Use and Privacy Policy.

Listing Agency:  REALTY ONE GROUP ICONIC BROKERAGE

* Data is provided courtesy of WECAR. The information provided herein must only be used by consumers that have a bona fide interest in the purchase, sale, or lease of real estate and may not be used for any commercial purpose or any other purpose. The information is deemed reliable but is not guaranteed accurate by WECAR.

Hospital
Parks
Schools
Place of Worship
Please select an amenity above to view a list.

Recommended Properties

Loading...
531 Pelissier Street Unit# 102
Windsor , Ontario
$2,800
Get more info