For Sale - 540 Plains Road Unit# 100, Burlington, Ontario

Est payment $15,606/mo
Views   1
Time on Jump  1 days
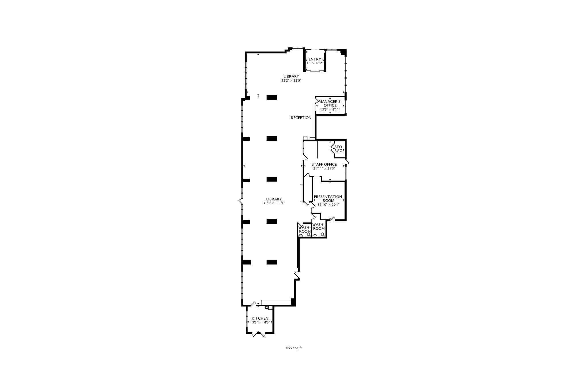
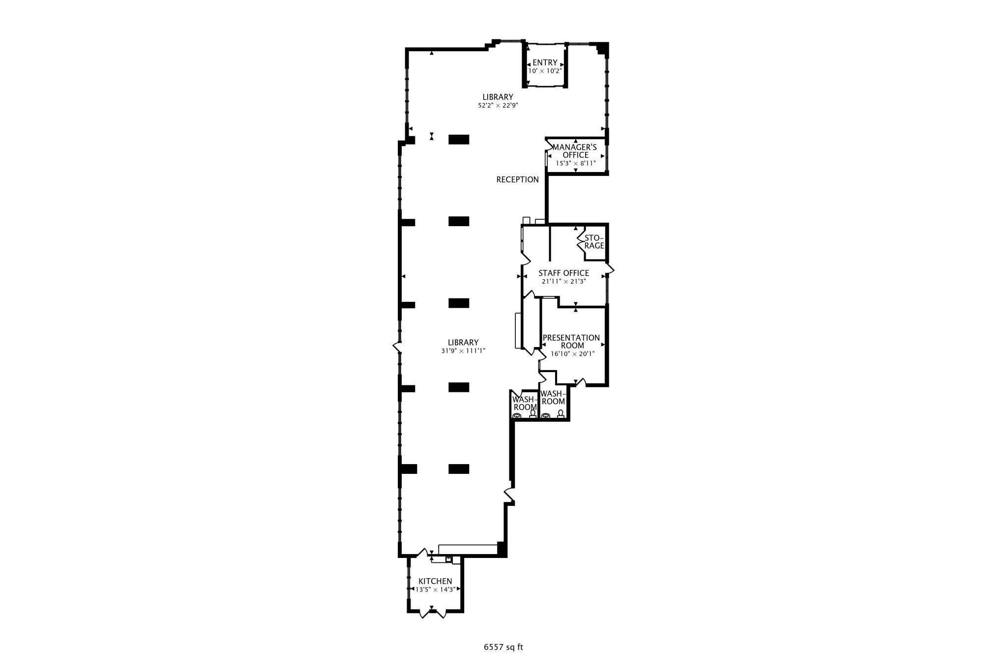
  • Large 7000+ sf office/retail space in a modern condo building.
  • Solid long-term lease in place with a government tenant.
  • Flexible space that can be tailored to business needs.
  • Quality build-outs with ample natural lighting and accessibility features.
  • MXG zoning allows for a variety of potential uses.



7000 +/- sf of mxg zoned office/retail space at the base of a modern 6 storey condo building in the heart of aldershot. Solid lease in place with a government covenant. Keep this aaa tenant in place for the long term or convert the space to suit your business needs. Current cap rate is 5. 25% - long-term triple-net lease in place. Top quality build-outs including administrations offices, lunch room, multiple washrooms, accessible auto-doors and openers, terrific natural lighting and excellent exposure make this a quality asset to add to your portfolio. Contact the listing agent for more details about the lease terms. Mxg zoning permits a wide range of uses
Listing IDW12951662
Address540 Plains Road Unit# 100
CityBurlington, Ontario
Price$3,250,000
StyleCommercial Retail
Land Size0.763
TypeIndustrial/Commercial
StatusFor Sale
Subtype Commercial RetailCommunity Features Major Highway, Public TransitHeating / Cooling Gas Forced Air OpenSewer Sanitary+Storm
ASAP

Fri

3

Apr

Sat

4

Apr

Sun

5

Apr

Mon

6

Apr

Tue

7

Apr

Wed

8

Apr

Thu

9

Apr

Fri

10

Apr

Sat

11

Apr

Sun

12

Apr

Mon

13

Apr

Tue

14

Apr

Wed

15

Apr

Thu

16

Apr

Fri

17

Apr

Sat

18

Apr

Sun

19

Apr

Mon

20

Apr

Tue

21

Apr

Wed

22

Apr

Thu

23

Apr

Fri

24

Apr

Sat

25

Apr

Sun

26

Apr

Mon

27

Apr

Tue

28

Apr

Wed

29

Apr

Thu

30

Apr

Fri

1

May

By clicking “Get pre-qualified” and/or 'Submit' you are expressly consenting, in writing, to receive telemarketing and other messages, including artificial or prerecorded voices, via automated calls or texts from jumprealty.ca and up.mortgages at the number you provided above. This consent is not required to purchase any good or service. Message and data rates may apply, frequency varies. Text HELP for help or STOP to cancel. More details in Terms of Use and Privacy Policy.

Listing Agency:  RE/MAX ESCARPMENT REALTY INC.

* Data is provided courtesy of PROPTX. The information provided herein must only be used by consumers that have a bona fide interest in the purchase, sale, or lease of real estate and may not be used for any commercial purpose or any other purpose. The information is deemed reliable but is not guaranteed accurate by PROPTX.

Hospital
Parks
Schools
Place of Worship
Please select an amenity above to view a list.

Recommended Properties

Loading...
540 Plains Road Unit# 100
Burlington , Ontario
$3,250,000
Get more info