For Lease - 555 Limoges Street Unit# 4, The Nation, Ontario

Views   3
Time on Jump  53 day
  • New construction office space expected to be ready by the end of 2026.
  • Prime location on Main St with high visibility for businesses.
  • Flexible open-concept layout customizable for various operational needs.
  • Ample onsite parking and easy access near Hwy 417.
  • Great exposure with large display windows and strong signage potential.
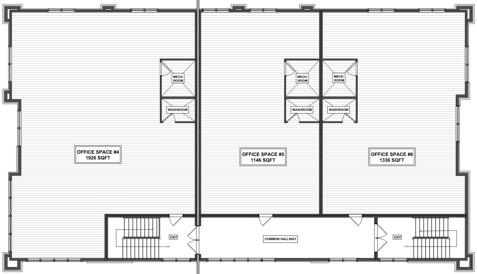
*** new construction ready for end of 2026. Prime office space in the heart of limoges! Amazing opportunity to lease a high-visibility commercial space in the heart of the growing town in limoges. Located directly on the main st, this property offers great exposure, plenty of parking, and easy access - ideal for businesses seeking a strong community presence and daily traffic flow. The upper unit is well-suited for a wide range of uses (subject to zoning). The layout provides flexible open-concept areas to be customized to your operational needs. Key features: excellent street visibility with strong signage potential large display windows offering natural light and storefront appeal. High daily traffic count and established neighbouring businesses, ample onsite and visitor parking, easy access and close to the hwy 417, modern façade with professional curb appeal suitable for a variety of commercial uses. Only 25 minutes east of ottawa - making this location ideal for entrepreneurs, franchises, and service providers looking to expand into a thriving suburban market. Don't miss this opportunity to establish your business in a sought-after commercial corridor. Other units of different sizes available, contact listing agent.
Listing IDX12870080
Address555 Limoges Street Unit# 4
CityThe Nation, Ontario
Lease$20
StyleOffice
TypeIndustrial/Commercial
StatusFor Lease
Subtype OfficeOwnership LeaseholdHeating / Cooling Other
ASAP

Mon

4

May

Tue

5

May

Wed

6

May

Thu

7

May

Fri

8

May

Sat

9

May

Sun

10

May

Mon

11

May

Tue

12

May

Wed

13

May

Thu

14

May

Fri

15

May

Sat

16

May

Sun

17

May

Mon

18

May

Tue

19

May

Wed

20

May

Thu

21

May

Fri

22

May

Sat

23

May

Sun

24

May

Mon

25

May

Tue

26

May

Wed

27

May

Thu

28

May

Fri

29

May

Sat

30

May

Sun

31

May

Mon

1

Jun

By clicking “Get pre-qualified” and/or 'Submit' you are expressly consenting, in writing, to receive telemarketing and other messages, including artificial or prerecorded voices, via automated calls or texts from jumprealty.ca and up.mortgages at the number you provided above. This consent is not required to purchase any good or service. Message and data rates may apply, frequency varies. Text HELP for help or STOP to cancel. More details in Terms of Use and Privacy Policy.

Listing Agency:  EXP REALTY

* Data is provided courtesy of PROPTX. The information provided herein must only be used by consumers that have a bona fide interest in the purchase, sale, or lease of real estate and may not be used for any commercial purpose or any other purpose. The information is deemed reliable but is not guaranteed accurate by PROPTX.

Hospital
Parks
Schools
Place of Worship
Please select an amenity above to view a list.

Recommended Properties

Loading...
555 Limoges Street Unit# 4
The Nation , Ontario
$20
Get more info