For Sale - 56-58 FOSTER Street, Perth, Ontario

Est payment $3,361/mo
Views   1
Time on Jump  2 day
  • Solid stone commercial building located in vibrant downtown Perth.
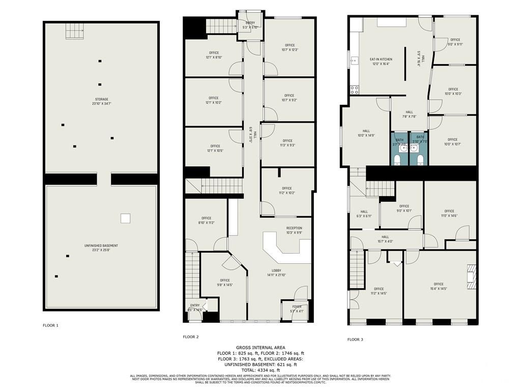
  • 16 office spaces plus large kitchen and two baths on second floor.
  • High visibility in a popular heritage tourist town with heavy foot traffic.
  • Ample parking with 10 spaces available at the rear of the building.
  • Potential to convert third floor back into an apartment for added versatility.



Solid stone commercial building in the heart of all the activities in historic central downtown perth, high visibility and high traffic location in a high traffic heritage tourist town,16 office spaces with large kitchen and two 2-pc baths on the 2nd floor. Central air on the 1st floor and 2 ductless air conditioners on 2nd floor, the building is presently leased by brokerlink insurance at $3,700 per month. Perth has one of the largest trade areas in all of ontario with people from an hour away using perth to buy goods and services with kingston being the next major centre west of perth. 10 parking spaces at the rear of the building, a forced air oil furnace heats the building with baseboard heaters on the 2nd floor, 6 ft high basement for possible storage area. The 3rd floor was formerly an apartment and could possibly be turned into one again. Great location: 2 blocks to the tay canal, 2 blocks to stewart park, 1 block to the best western hotel, 5 blocks to the oldest golf course in canada-the links o tay golf course.
Listing IDX12972312
Address56-58 FOSTER Street
CityPerth, Ontario
Price$700,000
Bath2 Full
StyleOffice
TypeIndustrial/Commercial
StatusFor Sale
Subtype OfficeHeating / Cooling Oil Forced Air
ASAP

Sun

12

Apr

Mon

13

Apr

Tue

14

Apr

Wed

15

Apr

Thu

16

Apr

Fri

17

Apr

Sat

18

Apr

Sun

19

Apr

Mon

20

Apr

Tue

21

Apr

Wed

22

Apr

Thu

23

Apr

Fri

24

Apr

Sat

25

Apr

Sun

26

Apr

Mon

27

Apr

Tue

28

Apr

Wed

29

Apr

Thu

30

Apr

Fri

1

May

Sat

2

May

Sun

3

May

Mon

4

May

Tue

5

May

Wed

6

May

Thu

7

May

Fri

8

May

Sat

9

May

Sun

10

May

By clicking “Get pre-qualified” and/or 'Submit' you are expressly consenting, in writing, to receive telemarketing and other messages, including artificial or prerecorded voices, via automated calls or texts from jumprealty.ca and up.mortgages at the number you provided above. This consent is not required to purchase any good or service. Message and data rates may apply, frequency varies. Text HELP for help or STOP to cancel. More details in Terms of Use and Privacy Policy.

Listing Agency:  RE/MAX HALLMARK REALTY GROUP

* Data is provided courtesy of PROPTX. The information provided herein must only be used by consumers that have a bona fide interest in the purchase, sale, or lease of real estate and may not be used for any commercial purpose or any other purpose. The information is deemed reliable but is not guaranteed accurate by PROPTX.

Hospital
Parks
Schools
Place of Worship
Please select an amenity above to view a list.

Recommended Properties

Loading...
56-58 Foster Street
Perth , Ontario
2 $700,000
Get more info