For Sale - 56 Champlain Boulevard, Kawartha Lakes, Ontario

Est payment $3,121/mo
Views   1
Time on Jump  1 days
  • Spacious 2-storey home on a premium 75 x 150 ravine lot.
  • Updated eat-in kitchen with a separate sunken dining area and deck access.
  • Fully finished walk-out basement with an extra kitchen and living area.
  • Beautiful master bedroom with walk-in closet and luxurious ensuite.
  • Close to a proposed walking trail and park for outdoor enjoyment.



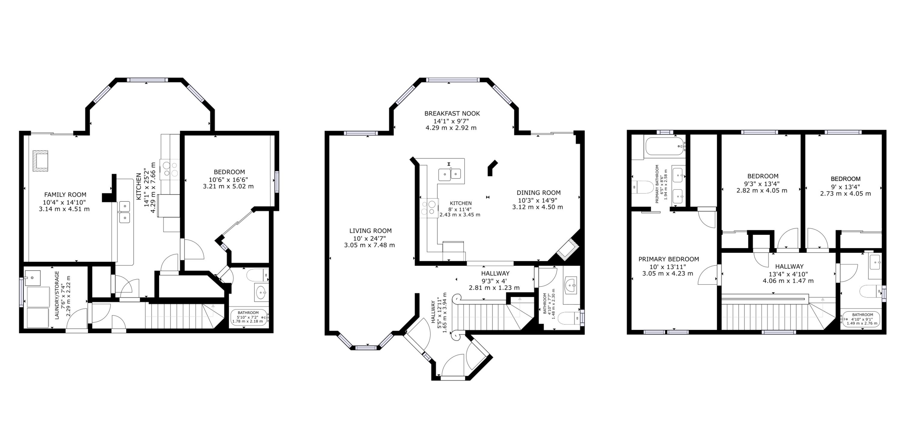
Ravine walk-out lot with in-law apartment! Premium 75 x 150 ravine lot backing onto jennings creek provides privacy, nature & tons of room for the family. This 2-storey home features over 2200 sq ft of living space and has been tastefully updated & meticulously maintained! Inside you'll find a functional layout featuring an entrance from the garage, 2pc bath, updated eat-in kitchen with separate sunken dining area & walk-out to a brand-new deck. The living room spans from the front of the house to the back with a separate play area for kids. Upstairs features a beautiful master bedroom with a walk-in closet & luxurious 5pc ensuite. Two additional bedrooms with a beautiful 4-pc main bath complete the second level. Head down to the fully finished walk-out basement which features a separate kitchen with tile backsplash, living room with natural gas-fireplace, bedroom & 4-pc bathroom! Steps to the newly proposed beautiful walking-trail & park (see last photo). Updates include gas-furnace (2010), ac (2017), hot water tank (2022), shingles (2023) & paved driveway (2025).
Listing IDX12966552
Address56 Champlain Boulevard
CityKawartha Lakes, Ontario
Price$649,900
Bed / Bath4 / 4 Full
Style2-Storey, Detached
ConstructionBrick, Vinyl Siding
Land Size0.268
TypeResidential
StatusFor Sale
Subtype DetachedIndoor Features Auto Garage Door Remote, Central Vacuum, Floor Drain, In-Law Capability, In-Law Suite, Storage, Water Heater, Water MeterOutdoor Features Deck, Year Round LivingAmenities Fenced Yard, Park, Public Transit, Ravine, School Bus Route, Wooded/TreedOwnership FreeholdViews Forest, Trees/WoodsBasement Apartment, Finished with Walk-OutFoundation Poured ConcreteHeating / Cooling Forced AirHeating Fuel GasSewer Sewer
Parking 4.00
ASAP

Wed

8

Apr

Thu

9

Apr

Fri

10

Apr

Sat

11

Apr

Sun

12

Apr

Mon

13

Apr

Tue

14

Apr

Wed

15

Apr

Thu

16

Apr

Fri

17

Apr

Sat

18

Apr

Sun

19

Apr

Mon

20

Apr

Tue

21

Apr

Wed

22

Apr

Thu

23

Apr

Fri

24

Apr

Sat

25

Apr

Sun

26

Apr

Mon

27

Apr

Tue

28

Apr

Wed

29

Apr

Thu

30

Apr

Fri

1

May

Sat

2

May

Sun

3

May

Mon

4

May

Tue

5

May

Wed

6

May

By clicking “Get pre-qualified” and/or 'Submit' you are expressly consenting, in writing, to receive telemarketing and other messages, including artificial or prerecorded voices, via automated calls or texts from jumprealty.ca and up.mortgages at the number you provided above. This consent is not required to purchase any good or service. Message and data rates may apply, frequency varies. Text HELP for help or STOP to cancel. More details in Terms of Use and Privacy Policy.

Listing Agency:  BIRDHOUSE REALTY INC.

* Data is provided courtesy of PROPTX. The information provided herein must only be used by consumers that have a bona fide interest in the purchase, sale, or lease of real estate and may not be used for any commercial purpose or any other purpose. The information is deemed reliable but is not guaranteed accurate by PROPTX.

Hospital
Parks
Schools
Place of Worship
Please select an amenity above to view a list.

Recommended Properties

Loading...
56 Champlain Boulevard
Kawartha Lakes , Ontario
4 4 $649,900
Get more info