For Sale - 5659 Black River Road, Georgina, Ontario

Est payment $5,522/mo
Views   1
Time on Jump  1 days
  • Brand-new detached home with ample space and quality finishes throughout.
  • Open-concept design with high ceilings and natural light in main living areas.
  • Spacious primary suite with private ensuite and three additional bedrooms.
  • Separate entrance to basement offers potential for in-law suite or rental income.
  • Conveniently located near Lake Simcoe, main street, schools, and major highways.



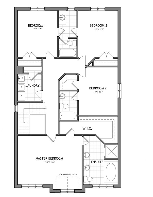
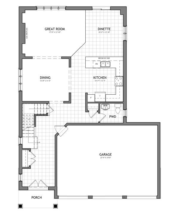
Welcome to lot 1 at the fairgrounds - a stunning brand-new 2,670 sq ft detached home crafted by twelve stone group in the heart of sutton, georgina. Situated on a south-facing lot in this sought-after new community, this 4-bedroom, 3. 5-bathroom home delivers exceptional space, quality finishes, and thoughtful design throughout. The open-concept main floor showcases soaring 9-foot ceilings, a grand great room with gas fireplace, a formal dining room, a chef's kitchen, and a dedicated breakfast area - all bathed in natural light. A beautiful oak staircase leads to the second floor where the expansive primary suite boasts a private ensuite, joined by three additional bedrooms, a full 4-piece bath, and convenient second-floor laundry. The home also features a separate walk-down entrance to the basement - outstanding potential for an in-law suite or future income. Premium exterior finishes include clay brick, asphalt shingle roof, poured concrete foundation, covered front porch, and paved driveway. Forced air natural gas heating with hrv, rough-in for central air, municipal water and sewer. Minutes to lake simcoe, sutton's charming main street, schools, and hwy 404. Development charges included in purchase price. This purchase meets the general qualifications for hst rebates (subject to purchaser assignment and qualifications).
Listing IDN13051878
Address5659 Black River Road
CityGeorgina, Ontario
Price$1,150,000
Bed / Bath4 / 3 Full
Style2-Storey, Detached
ConstructionBrick
TypeResidential
StatusFor Sale
Subtype DetachedIndoor Features ERV/HRVOutdoor Features Porch, Paved YardOwnership FreeholdBasement UnfinishedFoundation Poured ConcreteHeating / Cooling Forced AirHeating Fuel GasSewer Sewer
Parking 6.00
ASAP

Wed

29

Apr

Thu

30

Apr

Fri

1

May

Sat

2

May

Sun

3

May

Mon

4

May

Tue

5

May

Wed

6

May

Thu

7

May

Fri

8

May

Sat

9

May

Sun

10

May

Mon

11

May

Tue

12

May

Wed

13

May

Thu

14

May

Fri

15

May

Sat

16

May

Sun

17

May

Mon

18

May

Tue

19

May

Wed

20

May

Thu

21

May

Fri

22

May

Sat

23

May

Sun

24

May

Mon

25

May

Tue

26

May

Wed

27

May

By clicking “Get pre-qualified” and/or 'Submit' you are expressly consenting, in writing, to receive telemarketing and other messages, including artificial or prerecorded voices, via automated calls or texts from jumprealty.ca and up.mortgages at the number you provided above. This consent is not required to purchase any good or service. Message and data rates may apply, frequency varies. Text HELP for help or STOP to cancel. More details in Terms of Use and Privacy Policy.

Listing Agency:  COLDWELL BANKER THE REAL ESTATE CENTRE

* Data is provided courtesy of PROPTX. The information provided herein must only be used by consumers that have a bona fide interest in the purchase, sale, or lease of real estate and may not be used for any commercial purpose or any other purpose. The information is deemed reliable but is not guaranteed accurate by PROPTX.

Hospital
Parks
Schools
Place of Worship
Please select an amenity above to view a list.

Recommended Properties

Loading...
5659 Black River Road
Georgina , Ontario
4 3 $1,150,000
Get more info