For Lease - 5853 McLeod Road, Niagara Falls, Ontario

Views   1
Time on Jump  1 days
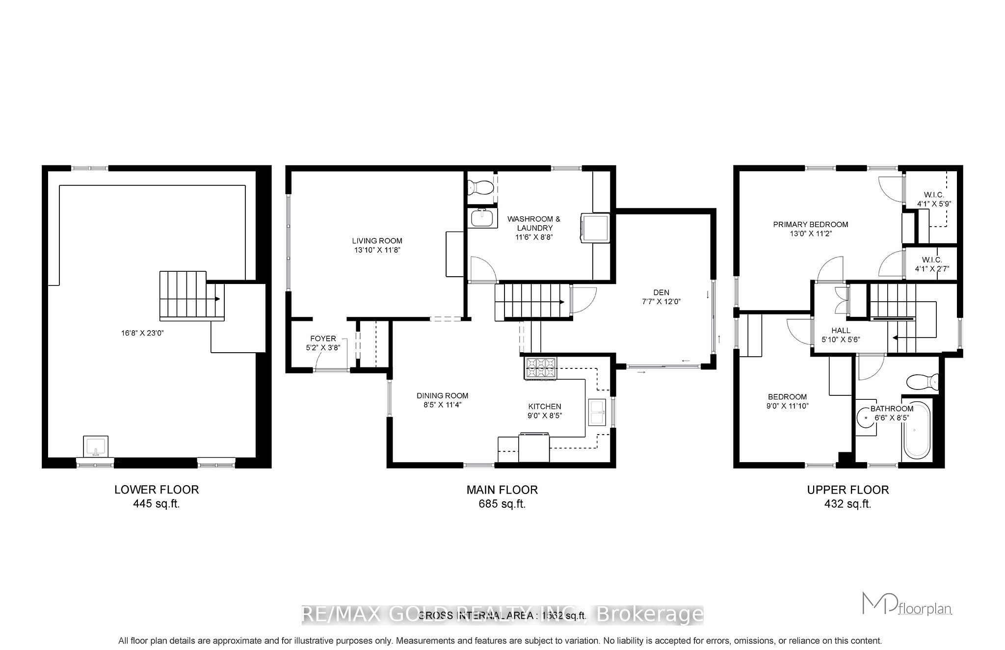
  • Well-maintained detached home on a spacious 60.15 x 144.38 ft lot.
  • Two bedrooms plus a den, easily convertible into a third bedroom.
  • Stainless steel appliances in kitchen with views of the fenced backyard.
  • Newly installed hot tub, perfect for relaxation in the backyard.
  • Conveniently located near shopping, schools, and major transit routes.
Welcome to this well-maintained detached in the heart of niagara falls, situated on a rare 60. 15 x 144. 38 ft lot, offering excellent potential for builders, investors, or end users who appreciate extra outdoor space and future possibilities. This home features 2 bedrooms plus a den that can easily be converted into a third bedroom, and two bathrooms. The primary bedroom includes a walk-in closet, while the functional layout offers separate living and dining rooms. The kitchen is equipped with stainless steel appliances and overlooks the fully fenced backyard, where you can relax and enjoy the hot tub (2 years old). The home offers 1,117 sqft on the main floor, no carpet throughout, furnace (2017), air conditioner (1 year old), and an owned hot water heater, along with parking for up to5 vehicles. The unfinished basement has been professionally waterproofed with a transferable 25-year warranty and features a newly installed sump pump, providing peace of mind. Conveniently located close to shopping, schools, transit, and major routes including the queen elizabeth way, this is a fantastic opportunity to lease a solid home on a premium lot in a growing niagara falls location. Can be leased furnished or unfurnished
Listing IDX12951470
Address5853 McLeod Road
CityNiagara Falls, Ontario
Lease$2,450
Bed / Bath3 / 2 Full
Style1 1/2 Storey, Detached
ConstructionBrick
TypeResidential
StatusFor Lease
Subtype DetachedIndoor Features Carpet Free, EnsuiteInclusions ParkingAmenities Park, SchoolOwnership LeaseholdBasement FullFoundation ConcreteHeating / Cooling Forced AirHeating Fuel GasSewer Sewer
Parking 5.00
ASAP

Fri

3

Apr

Sat

4

Apr

Sun

5

Apr

Mon

6

Apr

Tue

7

Apr

Wed

8

Apr

Thu

9

Apr

Fri

10

Apr

Sat

11

Apr

Sun

12

Apr

Mon

13

Apr

Tue

14

Apr

Wed

15

Apr

Thu

16

Apr

Fri

17

Apr

Sat

18

Apr

Sun

19

Apr

Mon

20

Apr

Tue

21

Apr

Wed

22

Apr

Thu

23

Apr

Fri

24

Apr

Sat

25

Apr

Sun

26

Apr

Mon

27

Apr

Tue

28

Apr

Wed

29

Apr

Thu

30

Apr

Fri

1

May

By clicking “Get pre-qualified” and/or 'Submit' you are expressly consenting, in writing, to receive telemarketing and other messages, including artificial or prerecorded voices, via automated calls or texts from jumprealty.ca and up.mortgages at the number you provided above. This consent is not required to purchase any good or service. Message and data rates may apply, frequency varies. Text HELP for help or STOP to cancel. More details in Terms of Use and Privacy Policy.

Listing Agency:  RE/MAX GOLD REALTY INC.

* Data is provided courtesy of PROPTX. The information provided herein must only be used by consumers that have a bona fide interest in the purchase, sale, or lease of real estate and may not be used for any commercial purpose or any other purpose. The information is deemed reliable but is not guaranteed accurate by PROPTX.

Hospital
Parks
Schools
Place of Worship
Please select an amenity above to view a list.

Recommended Properties

Loading...
5853 Mcleod Road
Niagara Falls , Ontario
3 2 $2,450
Get more info