For Lease - 6 Greenbriar Road Unit# 222, Toronto, Ontario

Views   1
Time on Jump  9 day
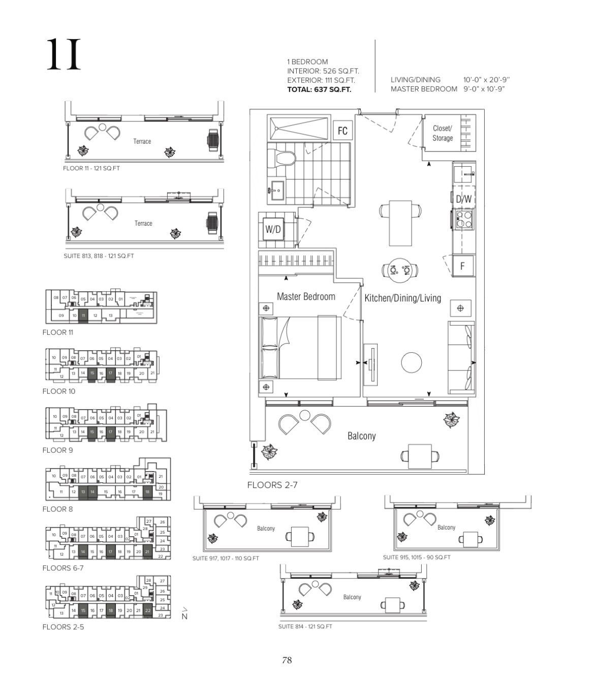
  • Stylish 1-bedroom residence with an oversized balcony for outdoor enjoyment.
  • Bright, open-concept design featuring 9-ft ceilings and modern finishes.
  • Efficient layout with generous living area and functional kitchen island.
  • Spa-inspired bathroom includes oversized glass shower for a luxurious experience.
  • Access to excellent building amenities and prime location near transit and shopping.
Bayview at the village - stylish 1-bedroom residence with oversized balcony and upscale finishes. Bright, open-concept 526 sq ft interior with soaring 9-ft ceilings features a sleek integrated kitchen with panelled appliances, quartz counters, and a functional island with breakfast bar. The smart, *efficient* floor plan offers a generous living/dining area with direct walk-out to an impressive 111 sq ft balcony complete with gas line for bbq, perfect for relaxing or entertaining. Well-proportioned bedroom provides a comfortable retreat, complemented by a separate large linen closet in the foyer. The spacious, spa-inspired bathroom includes an oversized glass shower and contemporary vanity for a luxurious daily routine. Suite also comes with full-size stacked laundry, tall interior doors, and a separate storage area, creating a clean, streamlined living space with no wasted square footage. Residents enjoy exceptional building amenities; fitness centre, party/meeting room, guest suites, 24-hr concierge and more, in a prime location just steps to both bayview and bessarion subway stations, bayview village shopping centre, restaurants, groceries, parks and quick access to hwy 401 and hwy 404.
Listing IDC12913420
Address6 Greenbriar Road Unit# 222
CityToronto, Ontario
Lease$2,200
Bed / Bath1 / 1 Full
StyleApartment, Condo Apartment
ConstructionBrick
TypeCondominium
StatusFor Lease
Subtype Condo ApartmentIndoor Features Carpet Free, EnsuiteInclusions Common ElementsOwnership LeaseholdViews CityBuilding Amenities Visitor Parking, Concierge, Party Room/Meeting Room, GymBasement NoneHeating / Cooling Forced AirHeating Fuel Electric
ASAP

Fri

3

Apr

Sat

4

Apr

Sun

5

Apr

Mon

6

Apr

Tue

7

Apr

Wed

8

Apr

Thu

9

Apr

Fri

10

Apr

Sat

11

Apr

Sun

12

Apr

Mon

13

Apr

Tue

14

Apr

Wed

15

Apr

Thu

16

Apr

Fri

17

Apr

Sat

18

Apr

Sun

19

Apr

Mon

20

Apr

Tue

21

Apr

Wed

22

Apr

Thu

23

Apr

Fri

24

Apr

Sat

25

Apr

Sun

26

Apr

Mon

27

Apr

Tue

28

Apr

Wed

29

Apr

Thu

30

Apr

Fri

1

May

By clicking “Get pre-qualified” and/or 'Submit' you are expressly consenting, in writing, to receive telemarketing and other messages, including artificial or prerecorded voices, via automated calls or texts from jumprealty.ca and up.mortgages at the number you provided above. This consent is not required to purchase any good or service. Message and data rates may apply, frequency varies. Text HELP for help or STOP to cancel. More details in Terms of Use and Privacy Policy.

Listing Agency:  POWER 7 REALTY

* Data is provided courtesy of PROPTX. The information provided herein must only be used by consumers that have a bona fide interest in the purchase, sale, or lease of real estate and may not be used for any commercial purpose or any other purpose. The information is deemed reliable but is not guaranteed accurate by PROPTX.

Hospital
Parks
Schools
Place of Worship
Please select an amenity above to view a list.

Recommended Properties

Loading...
6 Greenbriar Road Unit# 222
Toronto , Ontario
1 1 $2,200
Get more info