For Sale - 60 Hiltz Avenue, Toronto, Ontario

Est payment $13,441/mo
Views   1
Time on Jump  1 days
  • Custom-built, all-electric home on a quiet tree-lined street.
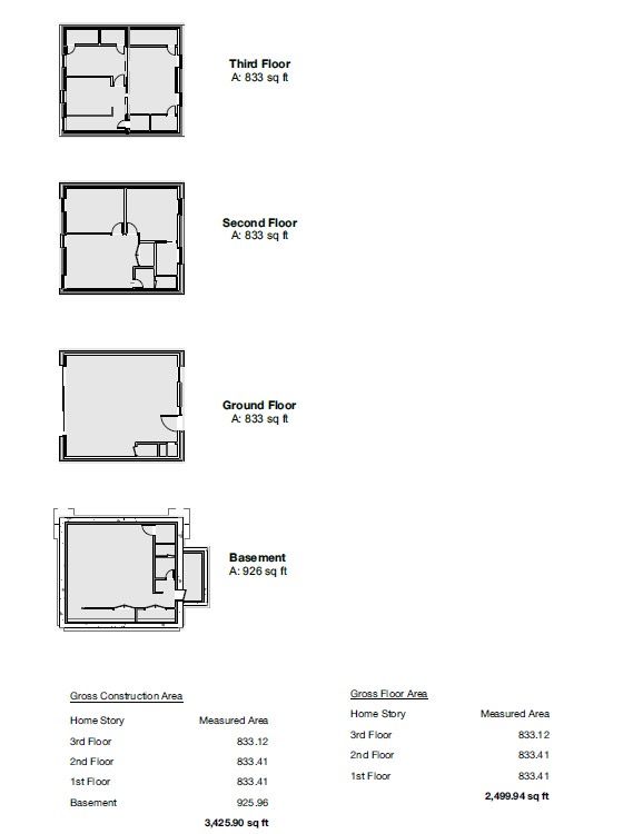
  • Spacious layout with over 3,000 sq ft and high ceilings.
  • Luxury kitchen features top appliances and large quartz island.
  • Energy-efficient design with solar panels and zero indoor air pollution.
  • Versatile lower level perfect for a guest suite, media room, or gym.



Featured by blogto as "like living in the future." 60 hiltz is a custom-built, all-electric home on a wide, quiet, tree-lined street steps from greenwood park and queen east. 3+1 bed, 5 bath, 7 juliet balconies, covered carport with ev rough-in, over 3,000 sf. Step inside to ~10' ceilings and a bright open kitchen-dining-family room anchored by a honed marble fireplace. Scavolini kitchen with 8-foot quartz island, gaggenau fridge and induction cooktop, monogram wall oven, bosch dishwasher, faber hood. Up to the second floor: two large bedrooms with two full baths and scavolini closets, dedicated office, and laundry. The third-floor primary suite opens to cn tower views, 5-pc ensuite with stone soaking tub, and gorgeous dressing area with custom millwork. Below grade: open-concept 900+ sf level with full bath and 8-foot ceilings - guest suite, media room, gym, or play space. Built for health and comfort: all-electric means zero combustion, no indoor air pollution. Hepa-filtered fresh air 24/7 via backed-up erv. Passive house-certified triple-pane floor-to-ceiling windows flood every room with light and retain 3x more heat than standard glass. Heated floors throughout. Motorized hunter douglas blinds. Built to save: high performance building envelope and cold-climate heat pump cuts heating and cooling costs vs. Code-built homes. German heat pump hot water tank uses 3x less energy than conventional. 16 solar panels power the home and sell surplus to the grid. Rare islanding keeps solar running during outages. 20 kwh battery backs up sump pump, fridge, erv, wifi, lighting, hwt, and plug loads. Carport ready for 10 more panels. Built to protect: bone structure steel frame, non-combustible brick and metal exterior, laminated security glazing, 7-point locking windows, steel security door. Climate-resilient and break-in resistant. You cannot replicate this build at this price. Riverdale ci and duke of connaught catchments. 10 min by bike to the beaches. Come see it.
Listing IDE12965658
Address60 Hiltz Avenue
CityToronto, Ontario
Price$2,799,000
Bed / Bath4 / 5 Full
Style3-Storey, Detached
ConstructionBrick, Metal/Steel Siding
TypeResidential
StatusFor Sale
Subtype DetachedIndoor Features Air Exchanger, Built-In Oven, Carpet Free, Countertop Range, ERV/HRV, Separate Heating Controls, Separate Hydro Meter, Sewage Pump, Solar Owned, Storage, Sump Pump, Ventilation System, Water Heater Owned, Water MeterOutdoor Features Canopy, Landscaped, PatioAmenities Fenced Yard, Greenbelt/Conservation, Park, SchoolOwnership FreeholdViews CityBasement Full, FinishedFoundation ConcreteHeating / Cooling Heat PumpHeating Fuel ElectricSewer Sewer
Parking 1.00
ASAP

Wed

8

Apr

Thu

9

Apr

Fri

10

Apr

Sat

11

Apr

Sun

12

Apr

Mon

13

Apr

Tue

14

Apr

Wed

15

Apr

Thu

16

Apr

Fri

17

Apr

Sat

18

Apr

Sun

19

Apr

Mon

20

Apr

Tue

21

Apr

Wed

22

Apr

Thu

23

Apr

Fri

24

Apr

Sat

25

Apr

Sun

26

Apr

Mon

27

Apr

Tue

28

Apr

Wed

29

Apr

Thu

30

Apr

Fri

1

May

Sat

2

May

Sun

3

May

Mon

4

May

Tue

5

May

Wed

6

May

By clicking “Get pre-qualified” and/or 'Submit' you are expressly consenting, in writing, to receive telemarketing and other messages, including artificial or prerecorded voices, via automated calls or texts from jumprealty.ca and up.mortgages at the number you provided above. This consent is not required to purchase any good or service. Message and data rates may apply, frequency varies. Text HELP for help or STOP to cancel. More details in Terms of Use and Privacy Policy.

Listing Agency:  HARVEY KALLES REAL ESTATE LTD.

* Data is provided courtesy of PROPTX. The information provided herein must only be used by consumers that have a bona fide interest in the purchase, sale, or lease of real estate and may not be used for any commercial purpose or any other purpose. The information is deemed reliable but is not guaranteed accurate by PROPTX.

Hospital
Parks
Schools
Place of Worship
Please select an amenity above to view a list.

Recommended Properties

Loading...
60 Hiltz Avenue
Toronto , Ontario
4 5 $2,799,000
Get more info