For Lease - 612 Berford Street Unit# Unit A, South Bruce Peninsula, Ontario

Views   1
Time on Jump  170 day
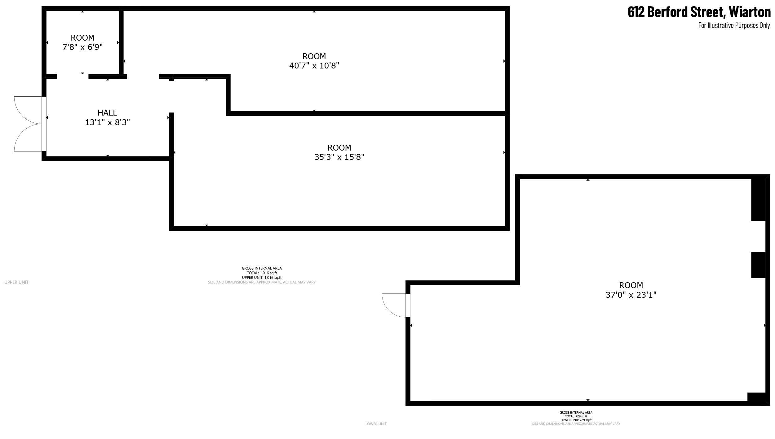
  • Commercial space for lease in a prime location of Wiarton.
  • Partially finished unit allows for customization to tenant's preference.
  • Shared lobby and washroom included for convenience.
  • Accessible via a ramp and close to municipal parking.
  • Option to lease both units for more space and flexibility.
Commercial space for lease in the heart of wiarton! Accessed from the back of the building off louisa street, unit a offers a shared lobby and washroom, with the option to lease both units for the entire floor. The space is partially finished, allowing the tenant to complete it to their liking, and the landlord is open to negotiating the finishing details. Rent is plus tmi and a portion of utilities. Conveniently located near ample municipal parking and featuring a ramp for wheelchair accessibility, this unit provides great potential for a variety of business uses in a prime location.
Listing IDX12523694
Address612 Berford Street Unit# Unit A
CitySouth Bruce Peninsula, Ontario
Lease$750
StyleOffice
TypeIndustrial/Commercial
StatusFor Lease
Subtype OfficeOwnership LeaseholdHeating / Cooling Baseboard
ASAP

Tue

28

Apr

Wed

29

Apr

Thu

30

Apr

Fri

1

May

Sat

2

May

Sun

3

May

Mon

4

May

Tue

5

May

Wed

6

May

Thu

7

May

Fri

8

May

Sat

9

May

Sun

10

May

Mon

11

May

Tue

12

May

Wed

13

May

Thu

14

May

Fri

15

May

Sat

16

May

Sun

17

May

Mon

18

May

Tue

19

May

Wed

20

May

Thu

21

May

Fri

22

May

Sat

23

May

Sun

24

May

Mon

25

May

Tue

26

May

By clicking “Get pre-qualified” and/or 'Submit' you are expressly consenting, in writing, to receive telemarketing and other messages, including artificial or prerecorded voices, via automated calls or texts from jumprealty.ca and up.mortgages at the number you provided above. This consent is not required to purchase any good or service. Message and data rates may apply, frequency varies. Text HELP for help or STOP to cancel. More details in Terms of Use and Privacy Policy.

Listing Agency:  Century 21 Millennium Inc.

* Data is provided courtesy of PROPTX. The information provided herein must only be used by consumers that have a bona fide interest in the purchase, sale, or lease of real estate and may not be used for any commercial purpose or any other purpose. The information is deemed reliable but is not guaranteed accurate by PROPTX.

Hospital
Parks
Schools
Place of Worship
Please select an amenity above to view a list.

Recommended Properties

Loading...
612 Berford Street Unit# Unit A
South Bruce Peninsula , Ontario
$750
Get more info