For Lease - 612 Berford Street Unit# Unit C, South Bruce Peninsula, Ontario

Views   1
Time on Jump  142 day
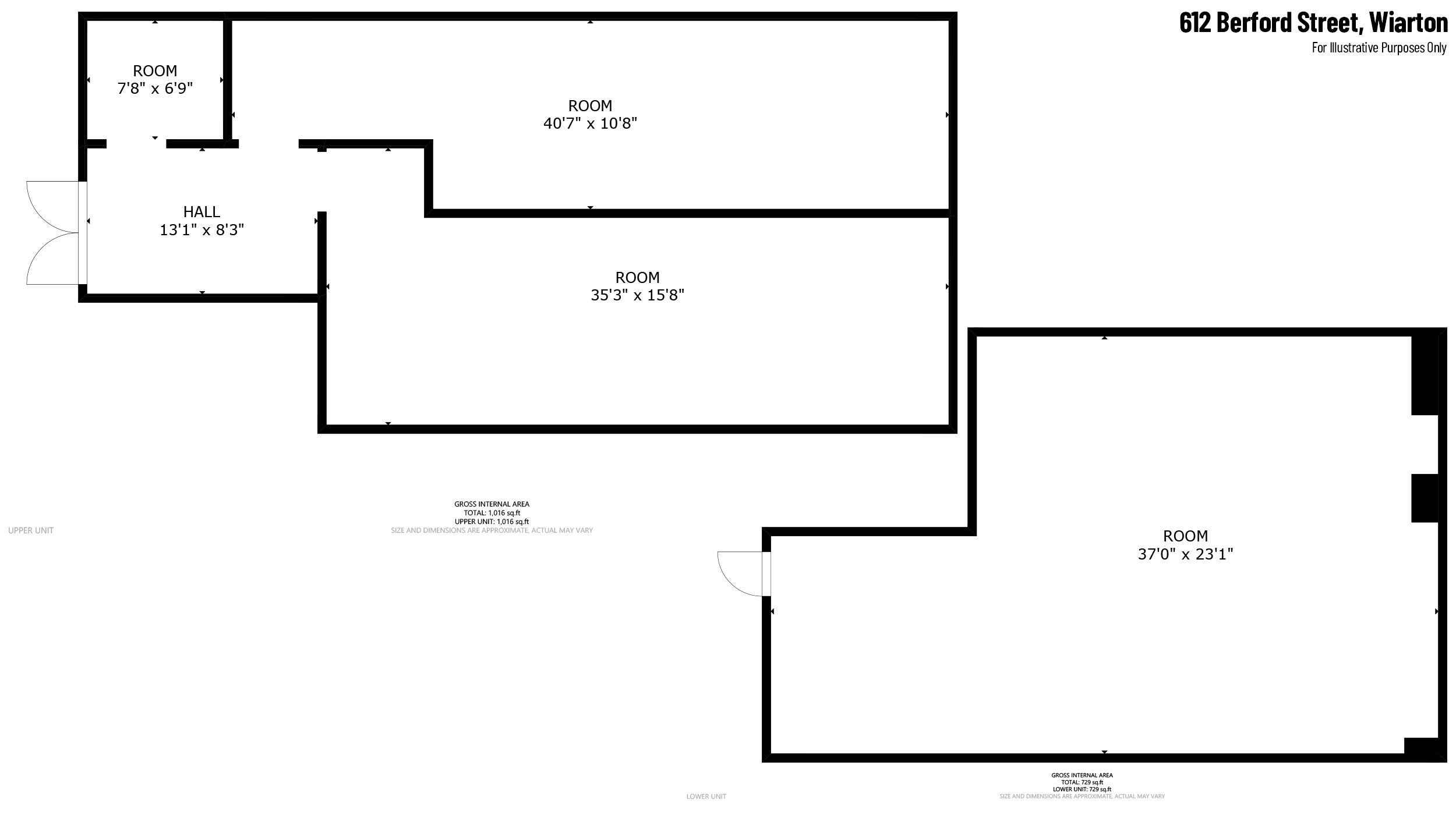
  • Lower-level commercial space available for lease with flexible finishing options.
  • Great potential for various business uses in a central location.
  • Access from Louisa Street with convenient back entrance.
  • Option to add a washroom for added convenience.
  • Near ample municipal parking for easy customer access.
Commercial space for lease in wiarton! This lower-level unit is accessed from the back of the building off louisa street and offers excellent potential for a variety of business uses. The space can be finished to suit the tenants needs, with the option to add a washroom and the landlord open to negotiating finishing details. Rent is plus tmi and a portion of utilities. Conveniently located near ample municipal parking, this space provides a great opportunity for a business looking for an affordable and customizable location in a central area.
Listing IDX12525324
Address612 Berford Street Unit# Unit C
CitySouth Bruce Peninsula, Ontario
Lease$1,000
StyleOffice
TypeIndustrial/Commercial
StatusFor Lease
Subtype OfficeOwnership LeaseholdHeating / Cooling None
ASAP

Tue

31

Mar

Wed

1

Apr

Thu

2

Apr

Fri

3

Apr

Sat

4

Apr

Sun

5

Apr

Mon

6

Apr

Tue

7

Apr

Wed

8

Apr

Thu

9

Apr

Fri

10

Apr

Sat

11

Apr

Sun

12

Apr

Mon

13

Apr

Tue

14

Apr

Wed

15

Apr

Thu

16

Apr

Fri

17

Apr

Sat

18

Apr

Sun

19

Apr

Mon

20

Apr

Tue

21

Apr

Wed

22

Apr

Thu

23

Apr

Fri

24

Apr

Sat

25

Apr

Sun

26

Apr

Mon

27

Apr

Tue

28

Apr

By clicking “Get pre-qualified” and/or 'Submit' you are expressly consenting, in writing, to receive telemarketing and other messages, including artificial or prerecorded voices, via automated calls or texts from jumprealty.ca and up.mortgages at the number you provided above. This consent is not required to purchase any good or service. Message and data rates may apply, frequency varies. Text HELP for help or STOP to cancel. More details in Terms of Use and Privacy Policy.

Listing Agency:  Century 21 Millennium Inc.

* Data is provided courtesy of PROPTX. The information provided herein must only be used by consumers that have a bona fide interest in the purchase, sale, or lease of real estate and may not be used for any commercial purpose or any other purpose. The information is deemed reliable but is not guaranteed accurate by PROPTX.

Hospital
Parks
Schools
Place of Worship
Please select an amenity above to view a list.

Recommended Properties

Loading...
612 Berford Street Unit# Unit C
South Bruce Peninsula , Ontario
$1,000
Get more info