For Sale - 615 Churchill Avenue, Milton, Ontario

Est payment $4,357/mo
Views   1
Time on Jump  1 days
  • Charming 4-level side-split in a desirable community.
  • Spacious main floor with open living and dining areas.
  • Finished lower level includes a fourth bedroom and office space.
  • Backyard perfect for relaxation, gardening, and entertaining.
  • Close to parks, schools, shopping, and public transit options.



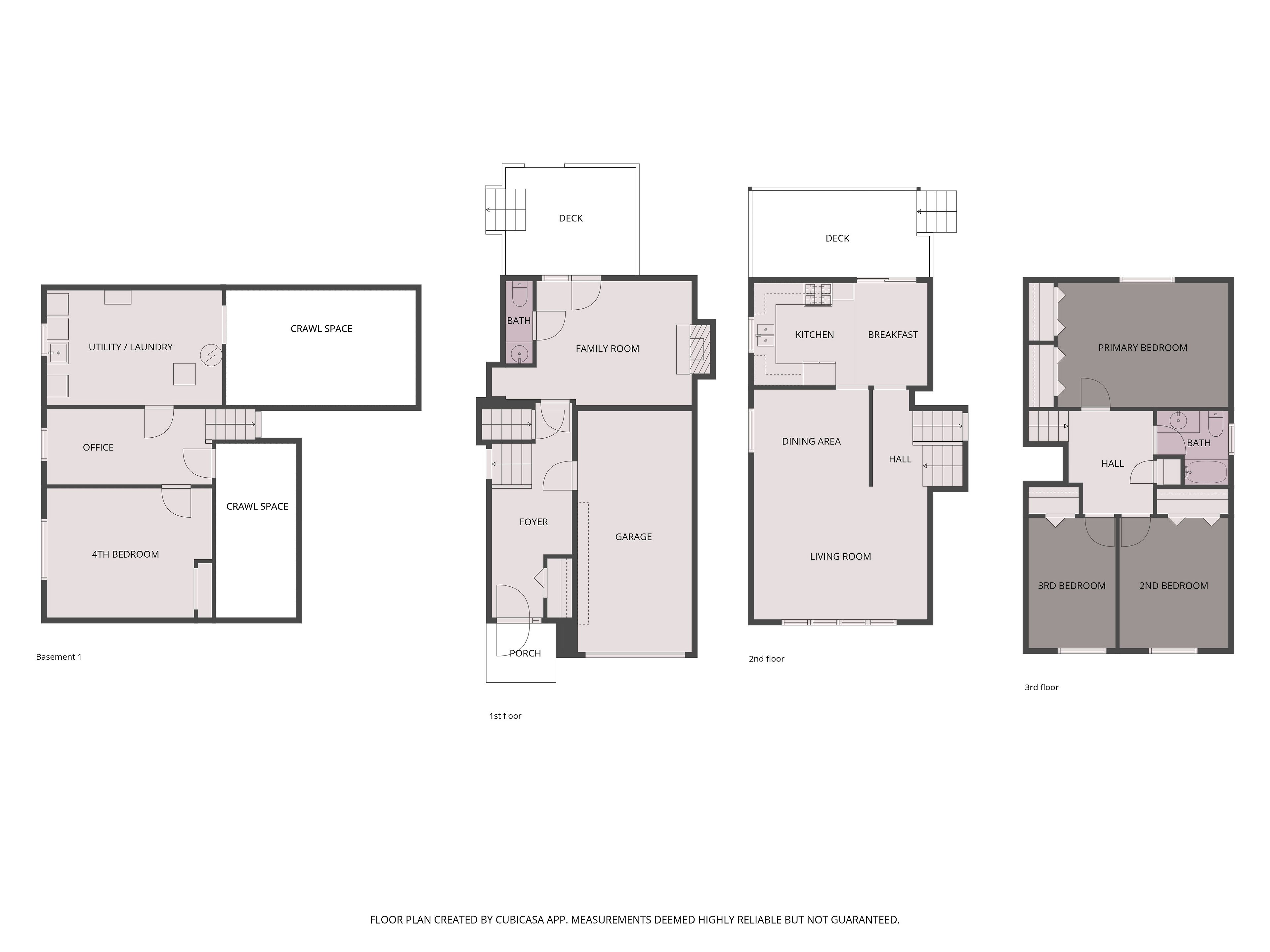
Welcome to this charming 4-level side-split located in the heart of milton's desirable dorset park neighbourhood. Nestled in a beautiful, tight-knit community, this well-cared-for home offers a warm, functional layout perfect for families, entertainers, and anyone seeking comfort with convenience. The spacious main foyer opens directly to a cozy family room featuring a fireplace, renovated two piece bathroom, and a walkout to the backyard, creating an inviting space to relax. The main floor offers a bright, open living room, a dedicated dining room, and a generous eat-in kitchen with direct access to the back deck-ideal for bbqs, hosting, and seamless indoor/outdoor living. The upper level features three well-appointed bedrooms and a fully renovated 4 piece bathroom. The finished lower level adds flexibility with a fourth bedroom , a den/home office, and a large laundry and furnace room, providing excellent additional living and storage space. Outside, the backyard offers plenty of space to unwind, garden, or entertain, all while enjoying the quiet, family-friendly surroundings. Additional storage includes an attached 1-car garage with a large crawl space beneath the family room, perfect for seasonal items. Double car driveway, with room for a 3rd smaller vehicle, including the garage 3-4 parking spaces in total. Located close to parks, schools, walking trails, shopping, restaurants, and many of milton's top amenities, this home also provides easy access to public transit, the go train, milton hospital, library, and recreation center. Commuters will appreciate the quick connection to hwy 401. If you've been searching for a special home in a walkable, community-focused neighbourhood, this is the one. Houses have a security system and cameras monitored by telus. Walking distance of go station, robert baldwin public school, ecole elementaire catholique saint-nicolas (french) school. Several windows are 6-8 years old.
Listing IDW12804688
Address615 Churchill Avenue
CityMilton, Ontario
Price$879,000
Bed / Bath4 / 2 Full
StyleSidesplit 4, Detached
ConstructionBrick, Vinyl Siding
TypeResidential
StatusFor Sale
Subtype DetachedIndoor Features Water MeterOwnership FreeholdBasement FinishedFoundation Poured ConcreteHeating / Cooling Forced AirHeating Fuel GasSewer Sewer
Parking 3.00
ASAP

Sat

21

Feb

Sun

22

Feb

Mon

23

Feb

Tue

24

Feb

Wed

25

Feb

Thu

26

Feb

Fri

27

Feb

Sat

28

Feb

Sun

1

Mar

Mon

2

Mar

Tue

3

Mar

Wed

4

Mar

Thu

5

Mar

Fri

6

Mar

Sat

7

Mar

Sun

8

Mar

Mon

9

Mar

Tue

10

Mar

Wed

11

Mar

Thu

12

Mar

Fri

13

Mar

Sat

14

Mar

Sun

15

Mar

Mon

16

Mar

Tue

17

Mar

Wed

18

Mar

Thu

19

Mar

Fri

20

Mar

Sat

21

Mar

By clicking “Get pre-qualified” and/or 'Submit' you are expressly consenting, in writing, to receive telemarketing and other messages, including artificial or prerecorded voices, via automated calls or texts from jumprealty.ca and up.mortgages at the number you provided above. This consent is not required to purchase any good or service. Message and data rates may apply, frequency varies. Text HELP for help or STOP to cancel. More details in Terms of Use and Privacy Policy.

Listing Agency:  SUTTON GROUP-HERITAGE REALTY INC.
Hospital
Parks
Schools
Place of Worship
Please select an amenity above to view a list.

Recommended Properties

Loading...
615 Churchill Avenue
Milton , Ontario
4 2 $879,000
Get more info