For Lease - 615 Davis Drive Unit# 200, Newmarket, Ontario

Views   1
Time on Jump  10 day
  • Prime office building with high exposure near Southlake Regional Health Centre.
  • Ideal for medical and professional uses, catering to various businesses.
  • Conveniently located steps from rapid transit and GO station.
  • Well maintained building offering a professional environment for clients.
  • Ample parking available for staff and visitors.
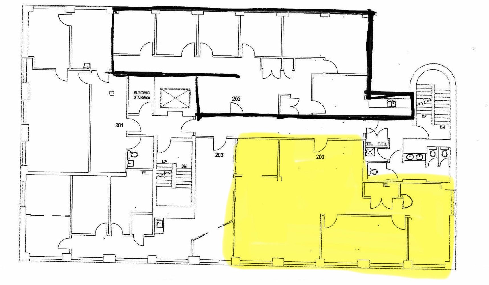
1497 sq. Ft. Prime professional office building with high exposure located directly across from southlake regional health centre and medicalarts building on same block. Would suit medical and professionals uses. Steps to rapid transit, go station. Well maintained building with plenty of parking.
Listing IDN12916486
Address615 Davis Drive Unit# 200
CityNewmarket, Ontario
Lease$10
StyleOffice
Land Size1497
TypeIndustrial/Commercial
StatusFor Lease
Subtype OfficeCommunity Features Major Highway, Public TransitOwnership LeaseholdHeating / Cooling Gas Hot WaterSewer Sanitary+Storm
ASAP

Sun

5

Apr

Mon

6

Apr

Tue

7

Apr

Wed

8

Apr

Thu

9

Apr

Fri

10

Apr

Sat

11

Apr

Sun

12

Apr

Mon

13

Apr

Tue

14

Apr

Wed

15

Apr

Thu

16

Apr

Fri

17

Apr

Sat

18

Apr

Sun

19

Apr

Mon

20

Apr

Tue

21

Apr

Wed

22

Apr

Thu

23

Apr

Fri

24

Apr

Sat

25

Apr

Sun

26

Apr

Mon

27

Apr

Tue

28

Apr

Wed

29

Apr

Thu

30

Apr

Fri

1

May

Sat

2

May

Sun

3

May

By clicking “Get pre-qualified” and/or 'Submit' you are expressly consenting, in writing, to receive telemarketing and other messages, including artificial or prerecorded voices, via automated calls or texts from jumprealty.ca and up.mortgages at the number you provided above. This consent is not required to purchase any good or service. Message and data rates may apply, frequency varies. Text HELP for help or STOP to cancel. More details in Terms of Use and Privacy Policy.

Listing Agency:  COLDWELL BANKER THE REAL ESTATE CENTRE

* Data is provided courtesy of PROPTX. The information provided herein must only be used by consumers that have a bona fide interest in the purchase, sale, or lease of real estate and may not be used for any commercial purpose or any other purpose. The information is deemed reliable but is not guaranteed accurate by PROPTX.

Hospital
Parks
Schools
Place of Worship
Please select an amenity above to view a list.

Recommended Properties

Loading...
615 Davis Drive Unit# 200
Newmarket , Ontario
$10
Get more info