For Sale - 62 McIvor Drive, Northern Bruce Peninsula, Ontario

Est payment $2,876/mo
Views   2
Time on Jump  25 day
  • Spacious 4 bedroom home on a quiet double lot just under an acre.
  • Easy access to Lake Huron for swimming and kayaking.
  • Open layout with vaulted ceilings and large windows for natural light.
  • Partially finished walkout basement offers potential for extra living space.
  • Relaxing outdoor areas for morning coffee and evening gatherings.



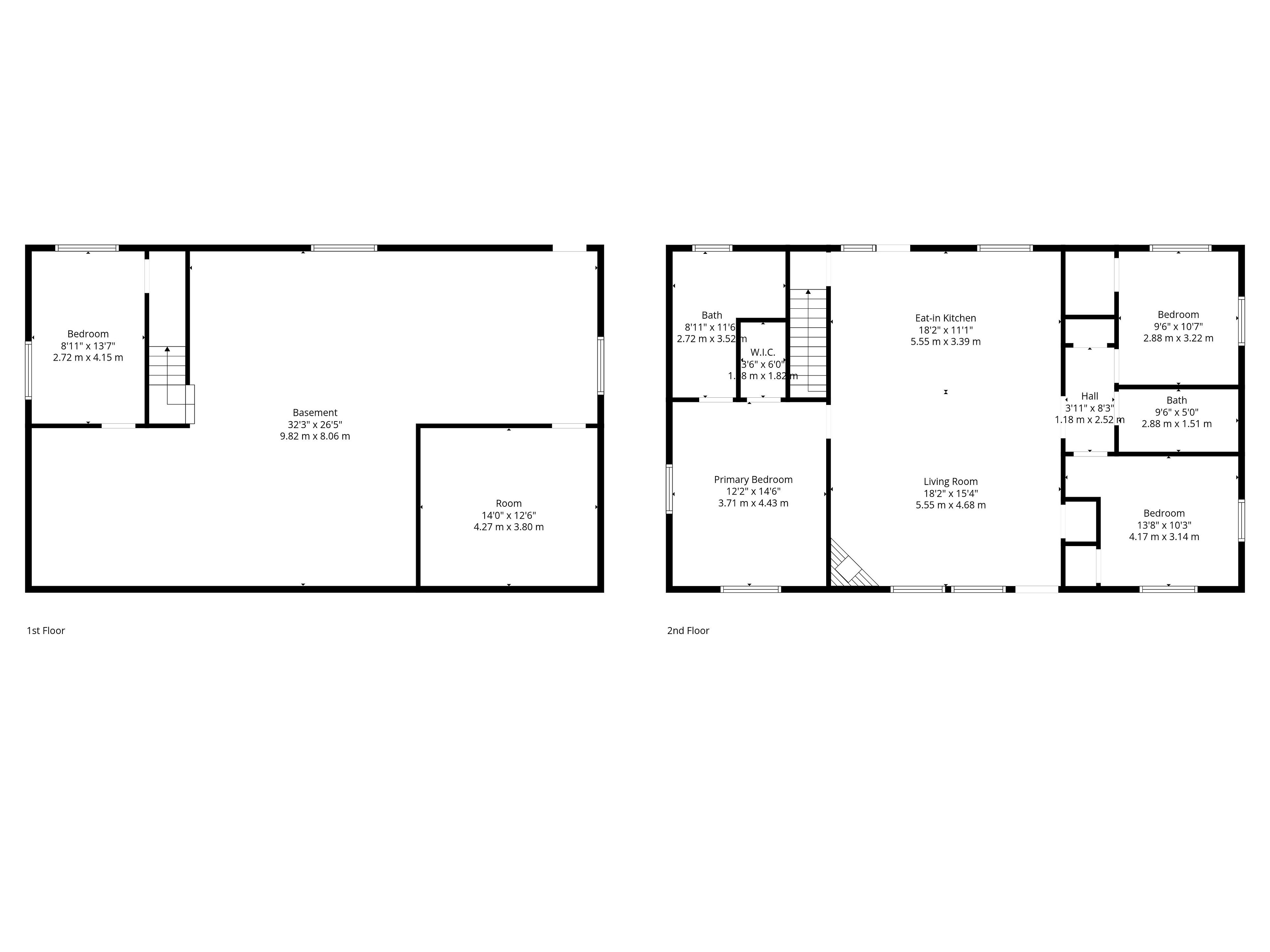
Set on a double lot (approx. 200x200) just under an acre (0. 9 acre) , this 4 bedroom home sits quietly among the trees, reached by a winding driveway that naturally creates privacy from the road. Just across the street, two excellent lake huron water access points make it easy to slip down for a swim, launch a kayak, or catch one of the area's unforgettable sunsets over the water. Built in 2010, the home was planned to feel open, bright, and comfortable when the whole family is here. The main living space features vaulted ceilings and an open layout, allowing the kitchen, dining, and living areas to flow together without feeling crowded. Large windows pull in natural light throughout the day and keep the surrounding trees part of the view. The main level offers just over 1,400 sq ft of living space, with a full walkout basement already well underway with new drywall installed and primed. With the finishing touches, the lower level has the potential to nearly double the total living space, giving plenty of room for additional bedrooms, recreation space, or a separate area for guests. Construction was done with longevity and efficiency in mind. With r36 insulation in the walls, r60 in the attic, and 30-year shingles, the home was built well beyond typical standards. A brand new forced air propane furnace (march 2026), along with backup convection heaters, keeps things comfortable year-round while helping manage energy costs. Outside, the spaces feel just as welcoming. The 48-foot front porch offers plenty of room to relax with a coffee in the morning or a drink in the evening, while the large rear deck looks out over a flagstone path that leads to the fire pit area. It's an easy place to gather for barbecues, campfires, and long nights under clear peninsula skies. The setting is quiet and friendly and just steps to lake huron, with the kind of surroundings that naturally lend themselves to slow mornings, full beach days, and evenings around the fire.
Listing IDX12871550
Address62 McIvor Drive
CityNorthern Bruce Peninsula, Ontario
Price$599,000
Bed / Bath4 / 2 Full
StyleBungalow-Raised, Detached
ConstructionVinyl Siding
TypeResidential
StatusFor Sale
Subtype DetachedIndoor Features Air Exchanger, Carpet Free, Water Treatment, Water Heater Owned, Upgraded Insulation, Propane TankOutdoor Features Deck, Porch, Year Round Living, PrivacyAmenities Lake Access, School Bus Route, Wooded/TreedOwnership FreeholdBasement Partially Finished, Walk-OutFoundation ConcreteHeating / Cooling Forced AirHeating Fuel PropaneSewer Septic
Parking 4.00
ASAP

Tue

7

Apr

Wed

8

Apr

Thu

9

Apr

Fri

10

Apr

Sat

11

Apr

Sun

12

Apr

Mon

13

Apr

Tue

14

Apr

Wed

15

Apr

Thu

16

Apr

Fri

17

Apr

Sat

18

Apr

Sun

19

Apr

Mon

20

Apr

Tue

21

Apr

Wed

22

Apr

Thu

23

Apr

Fri

24

Apr

Sat

25

Apr

Sun

26

Apr

Mon

27

Apr

Tue

28

Apr

Wed

29

Apr

Thu

30

Apr

Fri

1

May

Sat

2

May

Sun

3

May

Mon

4

May

Tue

5

May

By clicking “Get pre-qualified” and/or 'Submit' you are expressly consenting, in writing, to receive telemarketing and other messages, including artificial or prerecorded voices, via automated calls or texts from jumprealty.ca and up.mortgages at the number you provided above. This consent is not required to purchase any good or service. Message and data rates may apply, frequency varies. Text HELP for help or STOP to cancel. More details in Terms of Use and Privacy Policy.

Listing Agency:  Century 21 Millennium Inc.

* Data is provided courtesy of PROPTX. The information provided herein must only be used by consumers that have a bona fide interest in the purchase, sale, or lease of real estate and may not be used for any commercial purpose or any other purpose. The information is deemed reliable but is not guaranteed accurate by PROPTX.

Hospital
Parks
Schools
Place of Worship
Please select an amenity above to view a list.

Recommended Properties

Loading...
62 Mcivor Drive
Northern Bruce Peninsula , Ontario
4 2 $599,000
Get more info