For Sale - 625548 Sideroad 16B N/A, Grey Highlands, Ontario

Est payment $3,465/mo
Views   1
Time on Jump  1 days
  • Private 50-acre property with plenty of treed space for tranquility and nature.
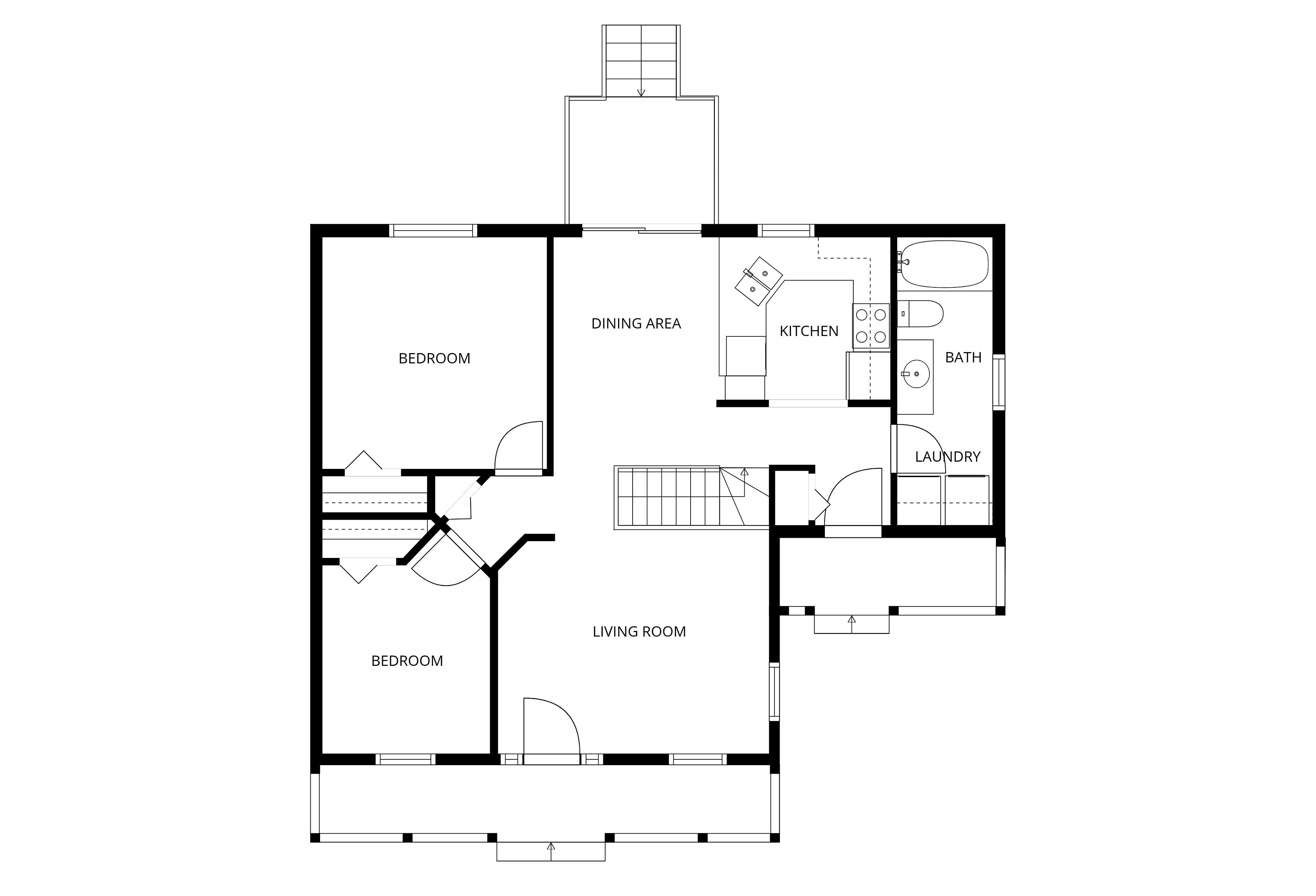
  • Charming 920 sq ft bungalow with open concept living for easy everyday life.
  • Walkout basement ready for your ideas, with a wood stove for warmth.
  • Detached garage offers plenty of space for vehicles and tools.
  • Close to skiing and amenities while enjoying a peaceful countryside setting.



Privacy, acreage, and proximity to skiing come together here in grey highlands. Set nicely back from the road and tucked into the trees, this adorable 920 sq ft bungalow feels quiet and comfortable without feeling remote. The main level is open concept and thoughtfully laid out, with 2 bedrooms and a full bathroom with combined laundry. It's not large, but it lives well. A welcoming front porch adds character, and the second front entrance functions perfectly as a practical mudroom entrance. Off the dining area, a small deck overlooks the backyard, a peaceful spot for morning coffee or unwinding at the end of the day. The walkout basement is insulated and ready for whatever you envision next. With a wood stove already in place, there's strong potential to create a third bedroom, rec room, office, or additional flexible space. Move in and enjoy it as is, or finish the lower level over time. The 50-acre parcel is mostly treed, offering privacy and the potential for natural trails. In the back corner, approximately 4 acres are open field, adding meaningful usable space for hobby farming, recreation, or future plans. Closer to the home, the yard provides excellent potential for flower beds, vegetable gardens, or expanded outdoor living areas. A detached 950 square foot garage, 38' by 25', plus a lean-to at the rear for storage, provides excellent space for vehicles, tools, or recreational equipment. Located just 12 minutes to markdale and 10 minutes to beaver valley ski club, you're close to amenities and year-round recreation while still enjoying the calm of the countryside. If you thought a country property on acreage was out of reach, this is a practical way to step into the market without overextending. Current property taxes reflect participation in a conservation plan and farm tax classification for the open field.
Listing IDX12790574
Address625548 Sideroad 16B N/A
CityGrey Highlands, Ontario
Price$699,000
Bed / Bath2 / 1 Full
StyleBungalow, Detached
ConstructionVinyl Siding
Land Size50.175
TypeResidential
StatusFor Sale
Subtype DetachedIndoor Features Water Heater Owned, Water SoftenerAmenities Hospital, Place Of Worship, Rec./Commun.Centre, SchoolOwnership FreeholdWaterfront NoneBasement Full, UnfinishedFoundation Poured ConcreteHeating / Cooling Forced AirHeating Fuel PropaneSewer Septic
Parking 6.00
ASAP

Mon

16

Feb

Tue

17

Feb

Wed

18

Feb

Thu

19

Feb

Fri

20

Feb

Sat

21

Feb

Sun

22

Feb

Mon

23

Feb

Tue

24

Feb

Wed

25

Feb

Thu

26

Feb

Fri

27

Feb

Sat

28

Feb

Sun

1

Mar

Mon

2

Mar

Tue

3

Mar

Wed

4

Mar

Thu

5

Mar

Fri

6

Mar

Sat

7

Mar

Sun

8

Mar

Mon

9

Mar

Tue

10

Mar

Wed

11

Mar

Thu

12

Mar

Fri

13

Mar

Sat

14

Mar

Sun

15

Mar

Mon

16

Mar

By clicking “Get pre-qualified” and/or 'Submit' you are expressly consenting, in writing, to receive telemarketing and other messages, including artificial or prerecorded voices, via automated calls or texts from jumprealty.ca and up.mortgages at the number you provided above. This consent is not required to purchase any good or service. Message and data rates may apply, frequency varies. Text HELP for help or STOP to cancel. More details in Terms of Use and Privacy Policy.

Listing Agency:  RE/MAX Summit Group Realty Brokerage
Hospital
Parks
Schools
Place of Worship
Please select an amenity above to view a list.

Recommended Properties

Loading...
625548 Sideroad 16b N/a
Grey Highlands , Ontario
2 1 $699,000
Get more info