For Lease - 628 Fleet Street Unit# 909, Toronto, Ontario

Views   1
Time on Jump  1 days
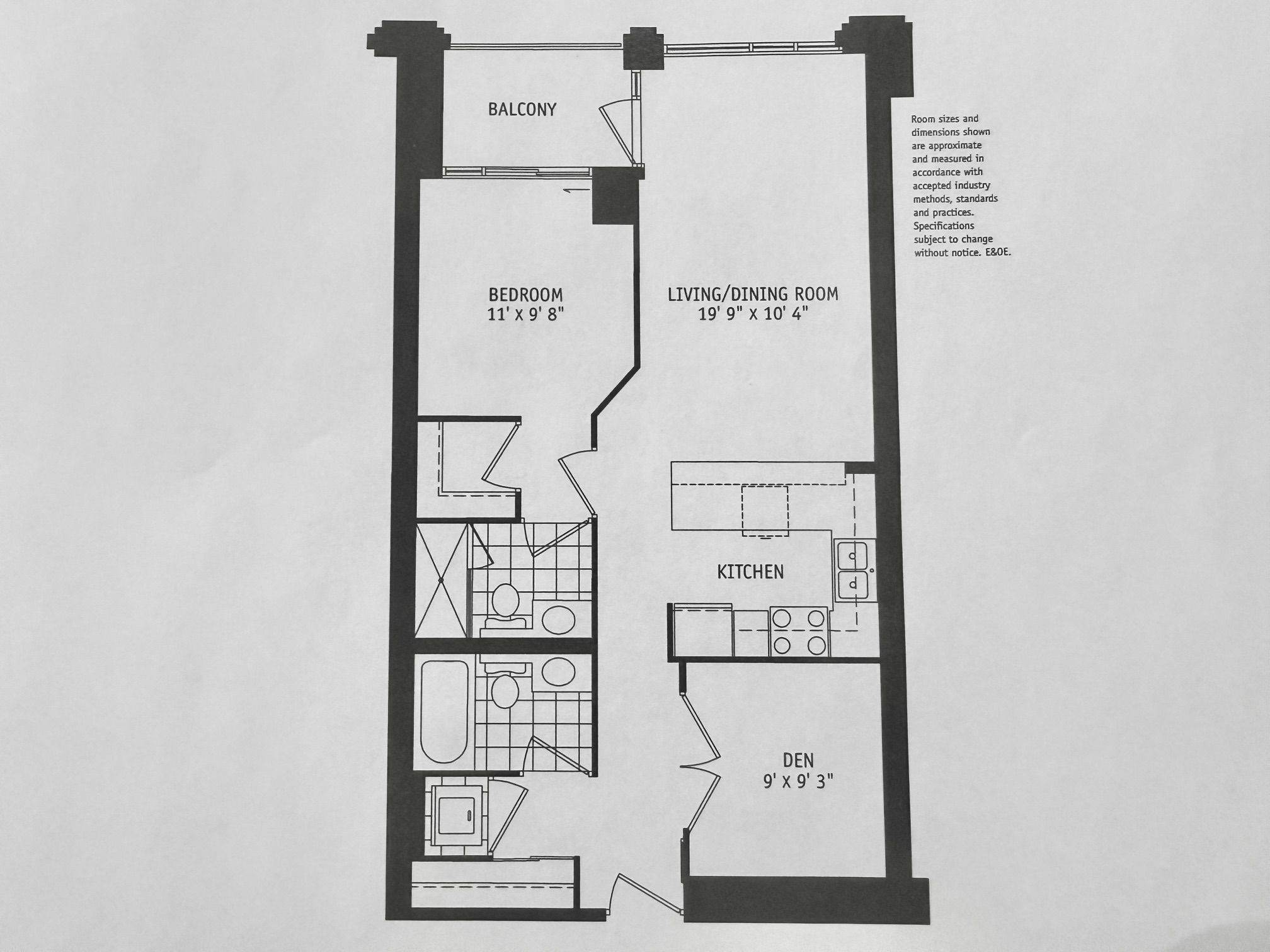
  • Spacious 765 sq. ft. one-plus-den layout with two full bathrooms.
  • Bright suite with 9-foot ceilings and new flooring throughout.
  • Principal bedroom features a walk-in closet and renovated ensuite.
  • Private balcony offers courtyard garden and city views.
  • Building amenities include a gym, indoor pool, and 24-hour concierge.
Experience luxury living at west harbour city in the heart of fort york with this spacious 765 sq. Ft. One-plus-den floor plan with 2 full bathrooms, where the oversized den easily functions as a second bedroom. This bright suite features 9-foot ceilings, brand-new flooring, a fresh coat of paint, and a principal bedroom complete with a walk-in closet and a renovated ensuite bathroom. Step out onto your private balcony to enjoy serene courtyard garden and city views, or take advantage of the building's resort-style amenities, including a 24-hour concierge, an indoor pool, a gym, and guest suites. With the ttc at your doorstep and the waterfront's scenic parks and trails directly across the street, this condo offers the perfect blend of urban convenience and lakeside tranquility.
Listing IDC12952016
Address628 Fleet Street Unit# 909
CityToronto, Ontario
Lease$3,000
Bed / Bath2 / 2 Full
StyleApartment, Condo Apartment
ConstructionConcrete
TypeCondominium
StatusFor Lease
Subtype Condo ApartmentIndoor Features Carpet Free, EnsuiteInclusions Building Maintenance, Common Elements, Grounds Maintenance, Exterior Maintenance, Heat, Parking, Recreation FacilityAmenities Clear View, Lake/Pond, Library, Marina, Park, Public TransitOwnership LeaseholdViews City, Garden, SkylineBuilding Amenities Concierge, Guest Suites, Gym, Indoor Pool, Party Room/Meeting Room, Visitor ParkingBasement NoneHeating / Cooling Heat PumpHeating Fuel Gas
Parking 1.00
ASAP

Sun

5

Apr

Mon

6

Apr

Tue

7

Apr

Wed

8

Apr

Thu

9

Apr

Fri

10

Apr

Sat

11

Apr

Sun

12

Apr

Mon

13

Apr

Tue

14

Apr

Wed

15

Apr

Thu

16

Apr

Fri

17

Apr

Sat

18

Apr

Sun

19

Apr

Mon

20

Apr

Tue

21

Apr

Wed

22

Apr

Thu

23

Apr

Fri

24

Apr

Sat

25

Apr

Sun

26

Apr

Mon

27

Apr

Tue

28

Apr

Wed

29

Apr

Thu

30

Apr

Fri

1

May

Sat

2

May

Sun

3

May

By clicking “Get pre-qualified” and/or 'Submit' you are expressly consenting, in writing, to receive telemarketing and other messages, including artificial or prerecorded voices, via automated calls or texts from jumprealty.ca and up.mortgages at the number you provided above. This consent is not required to purchase any good or service. Message and data rates may apply, frequency varies. Text HELP for help or STOP to cancel. More details in Terms of Use and Privacy Policy.

Listing Agency:  ROYAL LEPAGE TERREQUITY SW REALTY

* Data is provided courtesy of PROPTX. The information provided herein must only be used by consumers that have a bona fide interest in the purchase, sale, or lease of real estate and may not be used for any commercial purpose or any other purpose. The information is deemed reliable but is not guaranteed accurate by PROPTX.

Hospital
Parks
Schools
Place of Worship
Please select an amenity above to view a list.

Recommended Properties

Loading...
628 Fleet Street Unit# 909
Toronto , Ontario
2 2 $3,000
Get more info