For Lease - 6384 Plowmans Heath N/A Unit# Bsmt, Mississauga, Ontario

Views   1
Time on Jump  4 day
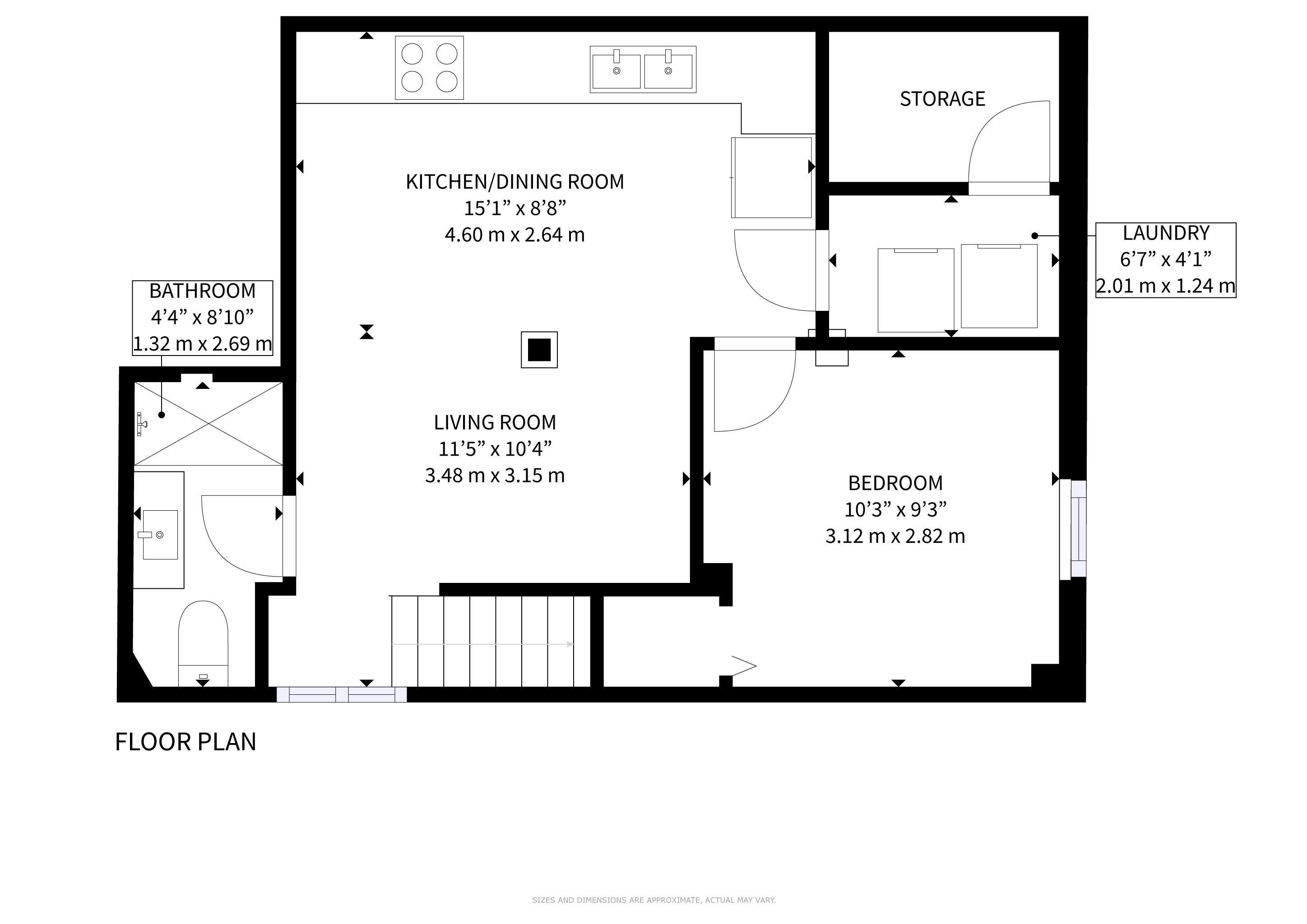
  • Modern legal basement apartment built less than a year ago.
  • Features premium quartz countertops and stainless steel appliances.
  • Bright pot lights and vinyl flooring throughout for a modern feel.
  • Conveniently located near Highways 401 and 407, shopping, and transit.
  • Close to hospitals, lakes, and recreational areas for leisure activities.
Step into this gorgeous, modern legal basement apartment, built less than a year ago! This stunning unit features premium quartz countertops, stainless steel appliances, vinyl flooring, and bright pot lights throughout, all completely modernized for your comfort. The location is unbeatable: you're minutes away from highways 401 and 407, meadowvale go, and shopping at heartland, meadowvale, and erin mills town centre. For your essentials and leisure, credit valley hospital, lake wabukayne, and lake aquitaine are all nearby. The list of conveniences goes on! Don't miss your chance to make this beautiful, contemporary basement your new home.
Listing IDW12946568
Address6384 Plowmans Heath N/A Unit# Bsmt
CityMississauga, Ontario
Lease$1,650
Bed / Bath1 / 1 Full
Style2-Storey, Detached
ConstructionBrick
TypeResidential
StatusFor Lease
Subtype DetachedIndoor Features Carpet Free, In AreaInclusions Grounds MaintenanceAmenities Hospital, Lake/Pond, Park, School, Rec./Commun.Centre, Place Of WorshipOwnership LeaseholdBasement Finished, Separate EntranceFoundation ConcreteHeating / Cooling Forced AirHeating Fuel GasSewer Sewer
Parking 1.00
ASAP

Tue

7

Apr

Wed

8

Apr

Thu

9

Apr

Fri

10

Apr

Sat

11

Apr

Sun

12

Apr

Mon

13

Apr

Tue

14

Apr

Wed

15

Apr

Thu

16

Apr

Fri

17

Apr

Sat

18

Apr

Sun

19

Apr

Mon

20

Apr

Tue

21

Apr

Wed

22

Apr

Thu

23

Apr

Fri

24

Apr

Sat

25

Apr

Sun

26

Apr

Mon

27

Apr

Tue

28

Apr

Wed

29

Apr

Thu

30

Apr

Fri

1

May

Sat

2

May

Sun

3

May

Mon

4

May

Tue

5

May

By clicking “Get pre-qualified” and/or 'Submit' you are expressly consenting, in writing, to receive telemarketing and other messages, including artificial or prerecorded voices, via automated calls or texts from jumprealty.ca and up.mortgages at the number you provided above. This consent is not required to purchase any good or service. Message and data rates may apply, frequency varies. Text HELP for help or STOP to cancel. More details in Terms of Use and Privacy Policy.

Listing Agency:  RE/MAX HALLMARK REALTY LTD.

* Data is provided courtesy of PROPTX. The information provided herein must only be used by consumers that have a bona fide interest in the purchase, sale, or lease of real estate and may not be used for any commercial purpose or any other purpose. The information is deemed reliable but is not guaranteed accurate by PROPTX.

Hospital
Parks
Schools
Place of Worship
Please select an amenity above to view a list.

Recommended Properties

Loading...
6384 Plowmans Heath N/a Unit# Bsmt
Mississauga , Ontario
1 1 $1,650
Get more info