For Sale - 648-654 Francis Road, Burlington, Ontario

Est payment $9,551/mo
Views   1
Time on Jump  2 day
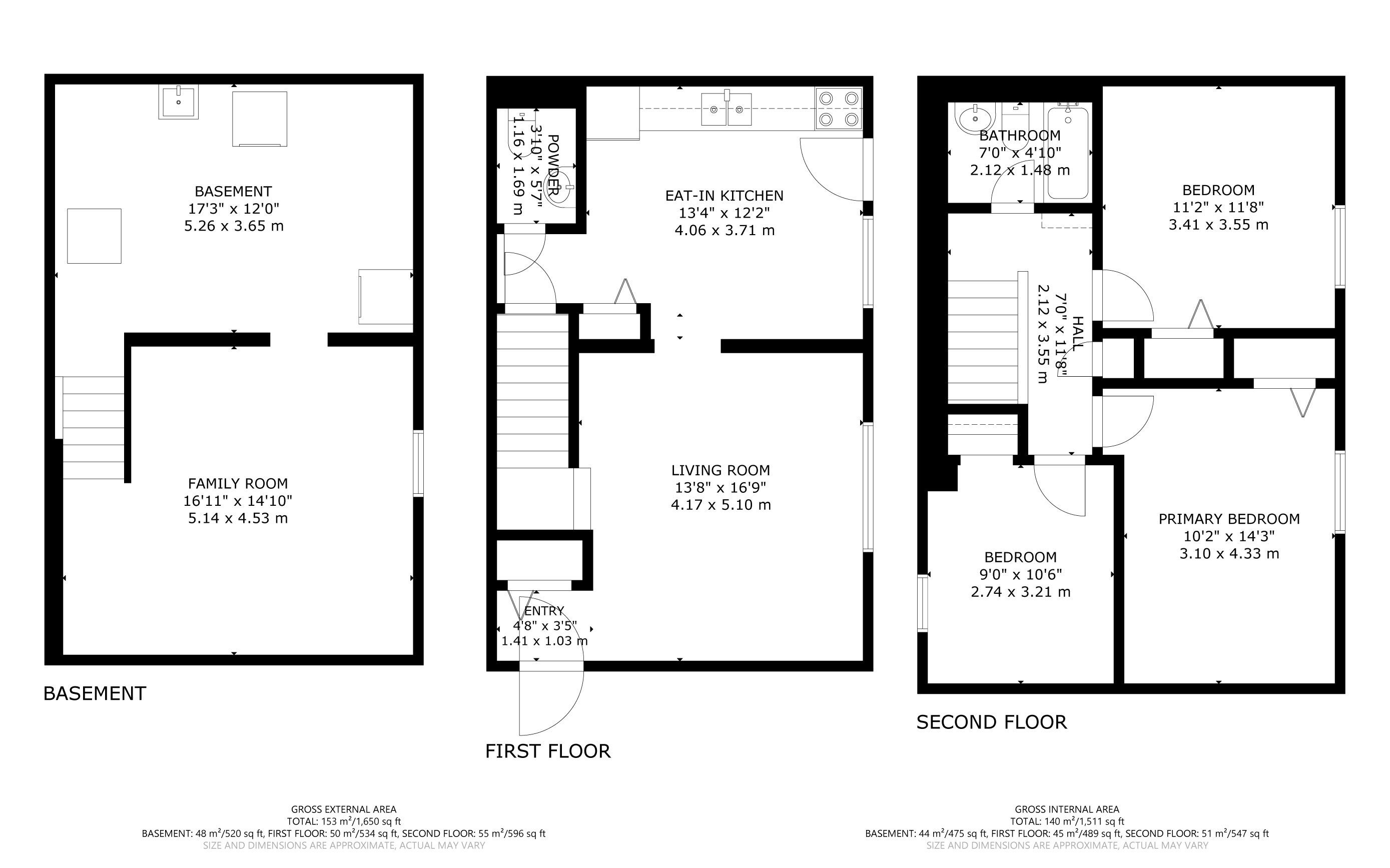
  • Well-maintained four-plex townhouse property with scenic trail access.
  • Each unit offers three bedrooms, 1.5 bathrooms, and private yards.
  • Updated features include newer roof, windows, and modern kitchens.
  • Parking space for up to 8 vehicles at the rear.
  • Convenient location near major routes and downtown Burlington amenities.



An incredible opportunity to own an exceptionally well-maintained four (4)-plex townhouse property backing onto a scenic bike and walking trail in the desirable aldershot north shore rd neighbourhood. Proudly owned by the same owner for over 30 years, this quadplex features four identical units, each offering 3 bedrooms, 1. 5 bathrooms, a private yard, full basement, and spacious kitchen, dining, and living areas. Fully tenanted on a month-to-month basis, the property has been meticulously cared for and updated over the years, including newer roof, windows, furnaces, central air conditioners, and updated kitchens and bathrooms. Parking for up to 8 vehicles is available at the rear of the building. Please note that not all units may be available for showings-refer to virtual tour, photos, and floor plans where possible. Tenants pay their own gas and hydro with separate meters. Excellent tenants in place who pay on time. Prime location with easy access to major routes (qew/403/407 and go station), and within walking distance to downtown burlington, the lakefront, beach, hospital, and surrounded by peaceful greenspace.
Listing IDW13039574
Address648-654 Francis Road
CityBurlington, Ontario
Price$1,989,000
Bed / Bath12 / 8 Full
Style2-Storey, Fourplex
ConstructionBrick, Shingle
TypeMulti-Family
StatusFor Sale
Subtype FourplexIndoor Features Water Heater, Water Heater OwnedOutdoor Features Paved Yard, Year Round LivingAmenities Park, Ravine, Public Transit, School, Library, HospitalOwnership FreeholdViews Park/Greenbelt, Trees/WoodsBasement Full, Partially FinishedFoundation Concrete BlockHeating / Cooling Forced AirHeating Fuel GasSewer Sewer
Parking 8.00
ASAP

Tue

28

Apr

Wed

29

Apr

Thu

30

Apr

Fri

1

May

Sat

2

May

Sun

3

May

Mon

4

May

Tue

5

May

Wed

6

May

Thu

7

May

Fri

8

May

Sat

9

May

Sun

10

May

Mon

11

May

Tue

12

May

Wed

13

May

Thu

14

May

Fri

15

May

Sat

16

May

Sun

17

May

Mon

18

May

Tue

19

May

Wed

20

May

Thu

21

May

Fri

22

May

Sat

23

May

Sun

24

May

Mon

25

May

Tue

26

May

By clicking “Get pre-qualified” and/or 'Submit' you are expressly consenting, in writing, to receive telemarketing and other messages, including artificial or prerecorded voices, via automated calls or texts from jumprealty.ca and up.mortgages at the number you provided above. This consent is not required to purchase any good or service. Message and data rates may apply, frequency varies. Text HELP for help or STOP to cancel. More details in Terms of Use and Privacy Policy.

Listing Agency:  RE/MAX REAL ESTATE CENTRE INC.

* Data is provided courtesy of PROPTX. The information provided herein must only be used by consumers that have a bona fide interest in the purchase, sale, or lease of real estate and may not be used for any commercial purpose or any other purpose. The information is deemed reliable but is not guaranteed accurate by PROPTX.

Hospital
Parks
Schools
Place of Worship
Please select an amenity above to view a list.

Recommended Properties

Loading...
648-654 Francis Road
Burlington , Ontario
12 8 $1,989,000
Get more info