For Lease - 66 King Street, Hamilton, Ontario

Views   1
Time on Jump  95 day
  • Versatile commercial space in a prime downtown location with high visibility.
  • Multiple storefront entrances and functional layout for various business needs.
  • Includes private offices, cubicle spaces, and access to essential facilities.
  • High-traffic area surrounded by shops, restaurants, and ample parking options.
  • Great signage potential to attract customers and enhance business presence.
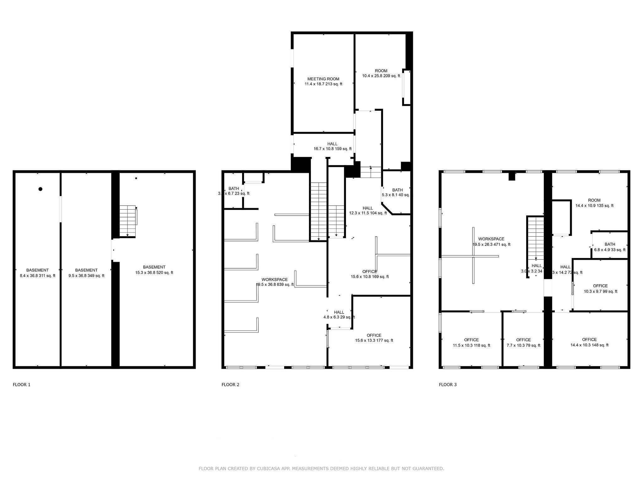
Incredible opportunity to lease a versatile and highly visible commercial space in the heart of downtown dundas at 66 king st w. This well-maintained building features two storefront entrances and a functional layout ideal for a variety of business & retail uses. The left side offers a welcoming front desk area, space for seven cubicles, and a small washroom at the rear. The right side includes a large street-facing office, space for two cubicles, access to the basement, a spacious washroom, full kitchen, boardroom, and access to the upstairs and rear exits. Upstairs features four private offices and an additional washroom, offering a quiet and professional workspace. With three total washrooms, multiple private and open work areas or retail spaces, and great signage potential along king street w, this location is perfect for offices, clinics, or service-based businesses. Located in a high-traffic area surrounded by shops, restaurants, and amenities, with nearby parking and public transit access. Tmi included in the monthly rent.
Listing IDX12530400
Address66 King Street
CityHamilton, Ontario
Lease$10,000
StyleCommercial Retail
TypeIndustrial/Commercial
StatusFor Lease
Subtype Commercial RetailOwnership LeaseholdHeating / Cooling Gas Forced Air Closed
ASAP

Sun

15

Feb

Mon

16

Feb

Tue

17

Feb

Wed

18

Feb

Thu

19

Feb

Fri

20

Feb

Sat

21

Feb

Sun

22

Feb

Mon

23

Feb

Tue

24

Feb

Wed

25

Feb

Thu

26

Feb

Fri

27

Feb

Sat

28

Feb

Sun

1

Mar

Mon

2

Mar

Tue

3

Mar

Wed

4

Mar

Thu

5

Mar

Fri

6

Mar

Sat

7

Mar

Sun

8

Mar

Mon

9

Mar

Tue

10

Mar

Wed

11

Mar

Thu

12

Mar

Fri

13

Mar

Sat

14

Mar

Sun

15

Mar

By clicking “Get pre-qualified” and/or 'Submit' you are expressly consenting, in writing, to receive telemarketing and other messages, including artificial or prerecorded voices, via automated calls or texts from jumprealty.ca and up.mortgages at the number you provided above. This consent is not required to purchase any good or service. Message and data rates may apply, frequency varies. Text HELP for help or STOP to cancel. More details in Terms of Use and Privacy Policy.

Listing Agency:  RE/MAX REALTY SERVICES INC.
Hospital
Parks
Schools
Place of Worship
Please select an amenity above to view a list.

Recommended Properties

Loading...
66 King Street
Hamilton , Ontario
$10,000
Get more info