For Lease - 66 King Street, Hamilton, Ontario

Views   2
Time on Jump  22 day
  • Versatile commercial space in a prime downtown location.
  • Two storefront entrances for easy customer access.
  • Functional layout suitable for various business needs.
  • Upstairs includes four private offices and additional facilities.
  • High foot traffic area with nearby parking and transit access.
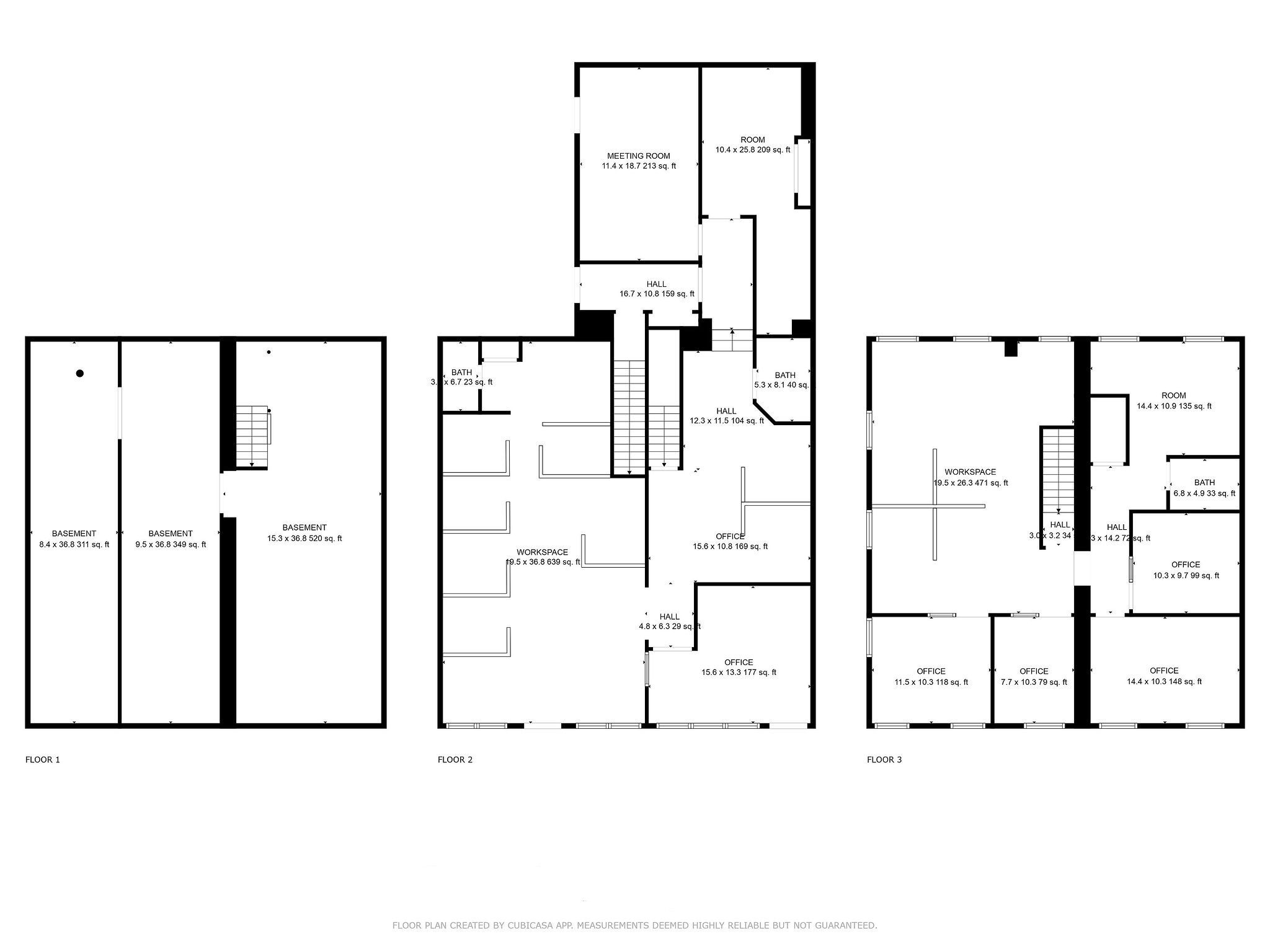
Incredible opportunity to lease a versatile and highly visible commercial space in the heart of downtown dundas at 66 king st w. This well-maintained building features two storefront entrances and a functional layout ideal for a variety of business & retail uses. The left side has an open layout with a washroom at the rear. The right side offers a large street-facing office, access to the basement, washroom, full kitchen, boardroom, and access to the upstairs and rear exits. Upstairs features four private offices and an additional washroom. Building can be divided into up to 3 separate units. Located in a high-traffic area surrounded by shops, restaurants, and amenities, with nearby parking and public transit access. Tmi included in the monthly rent.
Listing IDX12856864
Address66 King Street
CityHamilton, Ontario
Lease$9,000
Bath3 Full
StyleCommercial Retail
TypeIndustrial/Commercial
StatusFor Lease
Subtype Commercial RetailCommunity Features Public Transit, Recreation/Community CentreOwnership LeaseholdHeating / Cooling Gas Forced Air Closed
ASAP

Mon

30

Mar

Tue

31

Mar

Wed

1

Apr

Thu

2

Apr

Fri

3

Apr

Sat

4

Apr

Sun

5

Apr

Mon

6

Apr

Tue

7

Apr

Wed

8

Apr

Thu

9

Apr

Fri

10

Apr

Sat

11

Apr

Sun

12

Apr

Mon

13

Apr

Tue

14

Apr

Wed

15

Apr

Thu

16

Apr

Fri

17

Apr

Sat

18

Apr

Sun

19

Apr

Mon

20

Apr

Tue

21

Apr

Wed

22

Apr

Thu

23

Apr

Fri

24

Apr

Sat

25

Apr

Sun

26

Apr

Mon

27

Apr

By clicking “Get pre-qualified” and/or 'Submit' you are expressly consenting, in writing, to receive telemarketing and other messages, including artificial or prerecorded voices, via automated calls or texts from jumprealty.ca and up.mortgages at the number you provided above. This consent is not required to purchase any good or service. Message and data rates may apply, frequency varies. Text HELP for help or STOP to cancel. More details in Terms of Use and Privacy Policy.

Listing Agency:  RE/MAX REALTY SERVICES INC.

* Data is provided courtesy of PROPTX. The information provided herein must only be used by consumers that have a bona fide interest in the purchase, sale, or lease of real estate and may not be used for any commercial purpose or any other purpose. The information is deemed reliable but is not guaranteed accurate by PROPTX.

Hospital
Parks
Schools
Place of Worship
Please select an amenity above to view a list.

Recommended Properties

Loading...
66 King Street
Hamilton , Ontario
3 $9,000
Get more info