For Sale - 6674 Hayward Drive, London South, Ontario

Est payment $3,169/mo
Views   2
Time on Jump  45 day
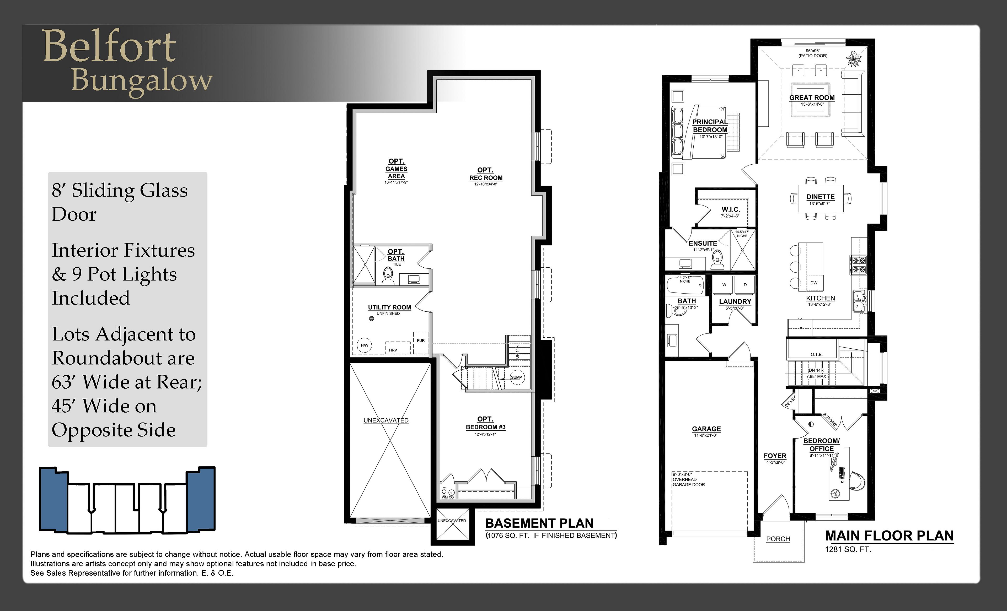
  • Bright and airy with large windows and 12' vaulted ceilings.
  • Modern kitchen with quartz countertops and stainless steel appliances.
  • Spacious unfinished basement offers endless potential for customization.
  • Large side yard and fencing provide outdoor space for enjoyment.
  • No condo fees with this freehold development, enhancing affordability.



Last chance to own - new build executive bungalow townhome! One of the final move-in ready homes in this highly desirable lambeth development. This stunning 2 bedroom, 2 full bathroom bungalow offers 1,281 sqft of thoughtfully finished main floor space, complemented by a spacious unfinished basement with endless possibilities. The first thing you notice when you step inside is how bright the home is with all the large windows throughout. A beautifully upgraded kitchen featuring quartz countertops, ceiling-height cabinetry, and a stainless steel chimney-style range hood. The open-concept design flows effortlessly into the dinette and great room, where a dramatic 12' vaulted ceiling and oversized sliding patio door create an airy, inviting atmosphere. Premium finishes including engineered hardwood, ceramic tile, and plush bedroom carpeting provide both luxury and comfort throughout. Situated on a large 45' wide by 118' deep lot with a generous side yard and fencing already completed by the builder, this home offers rare outdoor space for a townhome. As a freehold development, enjoy no condo fees! The striking stone and hardie panel exterior provide strong curb appeal and lasting durability for decades to come. In a location just minutes from major highways, shopping centres, parks, and multiple sporting locations, this home delivers on all fronts. Opportunities like this are rare - especially with only two units remaining! Visit our weekly open houses or book your private showing today to experience the ease of move-in ready bungalow living.
Listing IDX12898358
Address6674 Hayward Drive
CityLondon South, Ontario
Price$659,900
Bed / Bath2 / 2 Full
StyleBungalow, Att/Row/Townhouse
ConstructionStone, Board & Batten
TypeResidential
StatusFor Sale
Subtype Att/Row/TownhouseIndoor Features Air Exchanger, ERV/HRV, Floor Drain, Rough-In Bath, Water Heater, Sump PumpOutdoor Features PrivacyAmenities Fenced Yard, Park, Place Of Worship, Rec./Commun.Centre, School, GolfOwnership FreeholdBasement Unfinished, FullFoundation Poured ConcreteHeating / Cooling Forced AirHeating Fuel GasSewer Sewer
Parking 2.00
ASAP

Mon

4

May

Tue

5

May

Wed

6

May

Thu

7

May

Fri

8

May

Sat

9

May

Sun

10

May

Mon

11

May

Tue

12

May

Wed

13

May

Thu

14

May

Fri

15

May

Sat

16

May

Sun

17

May

Mon

18

May

Tue

19

May

Wed

20

May

Thu

21

May

Fri

22

May

Sat

23

May

Sun

24

May

Mon

25

May

Tue

26

May

Wed

27

May

Thu

28

May

Fri

29

May

Sat

30

May

Sun

31

May

Mon

1

Jun

By clicking “Get pre-qualified” and/or 'Submit' you are expressly consenting, in writing, to receive telemarketing and other messages, including artificial or prerecorded voices, via automated calls or texts from jumprealty.ca and up.mortgages at the number you provided above. This consent is not required to purchase any good or service. Message and data rates may apply, frequency varies. Text HELP for help or STOP to cancel. More details in Terms of Use and Privacy Policy.

Listing Agency:  CENTURY 21 FIRST CANADIAN CORP

* Data is provided courtesy of PROPTX. The information provided herein must only be used by consumers that have a bona fide interest in the purchase, sale, or lease of real estate and may not be used for any commercial purpose or any other purpose. The information is deemed reliable but is not guaranteed accurate by PROPTX.

Hospital
Parks
Schools
Place of Worship
Please select an amenity above to view a list.

Recommended Properties

Loading...
6674 Hayward Drive
London South , Ontario
2 2 $659,900
Get more info