For Lease - 67 Meg Drive, London South, Ontario

Views   1
Time on Jump  1 days
  • Prime office space in South London, perfect for independent entrepreneurs.
  • High visibility location with easy access to major highways.
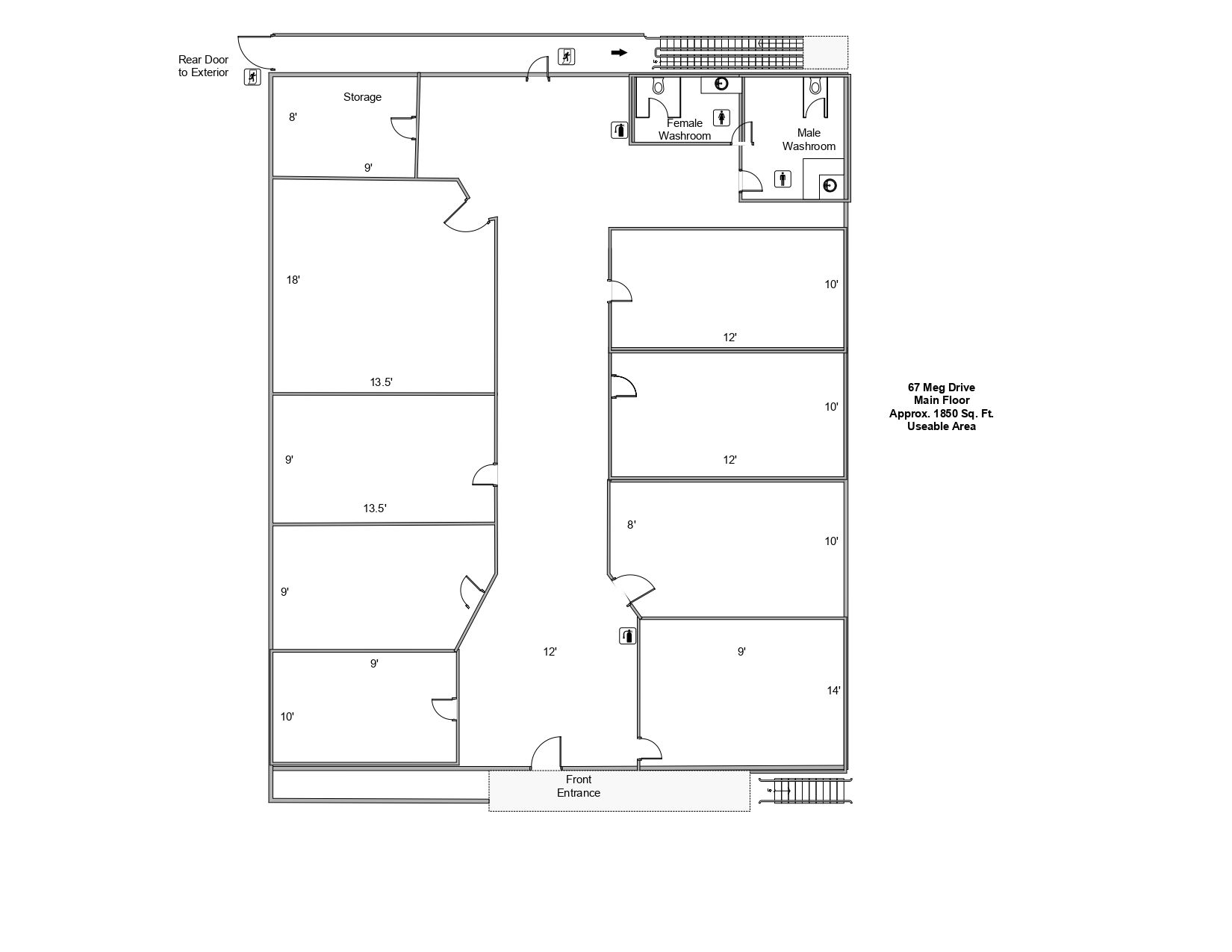
  • Main floor features 8 private offices totaling 2000 Sq. Ft.
  • Includes onsite client parking and nearby public transit access.
  • Zoning supports a wide range of business service uses.
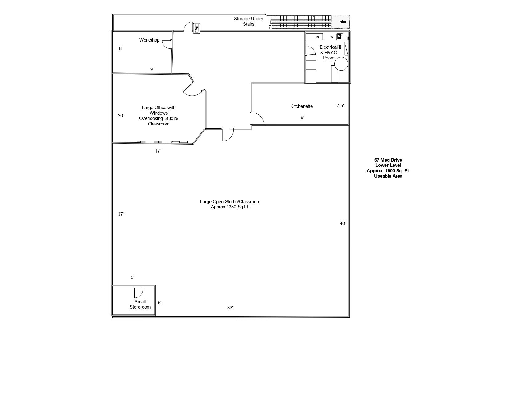
Prime commercial office space for lease in the heart of south london industrial/commercial zone. Ideal for independent entrepreneurs. Located on meg dr., near exeter rd with rapid 401 and 402 access in a high visibility building with great street presence. Two common washrooms (male/female). Entire main floor consisting of 8 private offices - 2000 sq. Ft. - off of common corridor or individual offices starting at $750/month all inclusive gross lease. Finished lower level available. Ideal for most office uses. Zoning permits any business service including technical and professional consulting services for most industries, engineering, accounting, surveying, employment agencies, security, business service and support. Onsite client parking included. Public transit bus stop within 500' of the building. Do not miss this opportunity for your business to grow and prosper!
Listing IDX12960976
Address67 Meg Drive
CityLondon South, Ontario
Lease$750
StyleOffice
TypeIndustrial/Commercial
StatusFor Lease
Subtype OfficeOwnership LeaseholdHeating / Cooling Gas Forced Air ClosedSewer Sanitary
ASAP

Tue

7

Apr

Wed

8

Apr

Thu

9

Apr

Fri

10

Apr

Sat

11

Apr

Sun

12

Apr

Mon

13

Apr

Tue

14

Apr

Wed

15

Apr

Thu

16

Apr

Fri

17

Apr

Sat

18

Apr

Sun

19

Apr

Mon

20

Apr

Tue

21

Apr

Wed

22

Apr

Thu

23

Apr

Fri

24

Apr

Sat

25

Apr

Sun

26

Apr

Mon

27

Apr

Tue

28

Apr

Wed

29

Apr

Thu

30

Apr

Fri

1

May

Sat

2

May

Sun

3

May

Mon

4

May

Tue

5

May

By clicking “Get pre-qualified” and/or 'Submit' you are expressly consenting, in writing, to receive telemarketing and other messages, including artificial or prerecorded voices, via automated calls or texts from jumprealty.ca and up.mortgages at the number you provided above. This consent is not required to purchase any good or service. Message and data rates may apply, frequency varies. Text HELP for help or STOP to cancel. More details in Terms of Use and Privacy Policy.

Listing Agency:  CENTURY 21 FIRST CANADIAN CORP

* Data is provided courtesy of PROPTX. The information provided herein must only be used by consumers that have a bona fide interest in the purchase, sale, or lease of real estate and may not be used for any commercial purpose or any other purpose. The information is deemed reliable but is not guaranteed accurate by PROPTX.

Hospital
Parks
Schools
Place of Worship
Please select an amenity above to view a list.

Recommended Properties

Loading...
67 Meg Drive
London South , Ontario
$750
Get more info