For Sale - 67 Rundle Lane, Brighton, Ontario

Est payment $2,478/mo
Views   1
Time on Jump  90 day
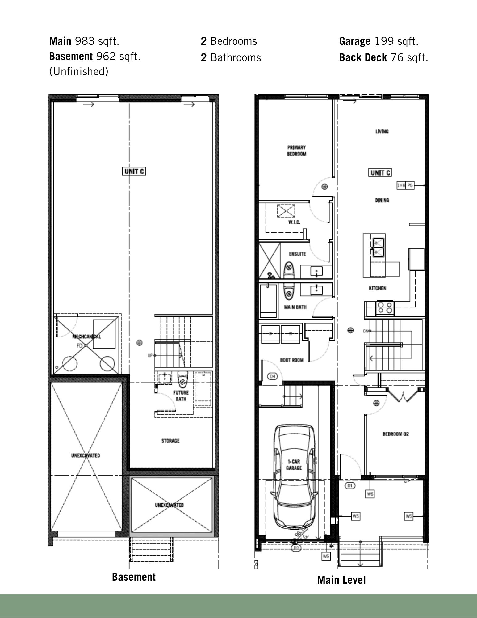
  • Main-level living with a convenient layout for easy accessibility.
  • Two spacious bedrooms and two bathrooms for comfort and privacy.
  • Attached one-car garage for easy parking and storage.
  • Unfinished basement offers 1,000+ sqft of flexible future space.
  • Ideal for empty nesters or those seeking a simpler lifestyle.



Experience the freedom of main-level living with the applewood meadows bungatowns. Thoughtfully designed - with you in mind - these 2 bedroom bungalow townhouses offer the perfect blend of comfort, style, and simplicity making them ideal for empty nesters or downsizers, or even those looking for a home that can grow with them. With 1,094 sqft, 2 bedrooms, 2 bathrooms and a 1 car attached garage, the bungatowns mean seamless living - everything you need on one level. And for those looking for a little more space, the unfinished basement offers 1,000+ sqft. Of opportunity for a future in-law suite, home gym or studio, hobby space or workshop, extra storage or even a rec room.
Listing IDX12212094
Address67 Rundle Lane
CityBrighton, Ontario
Price$499,900
Bed / Bath2 / 2 Full
StyleBungalow, Att/Row/Townhouse
ConstructionVinyl Siding
TypeResidential
StatusFor Sale
Subtype Att/Row/TownhouseIndoor Features OtherOwnership FreeholdBasement FullFoundation ConcreteHeating / Cooling Forced AirHeating Fuel GasSewer Sewer
Parking 3.00
ASAP

Wed

17

Dec

Thu

18

Dec

Fri

19

Dec

Sat

20

Dec

Sun

21

Dec

Mon

22

Dec

Tue

23

Dec

Wed

24

Dec

Thu

25

Dec

Fri

26

Dec

Sat

27

Dec

Sun

28

Dec

Mon

29

Dec

Tue

30

Dec

Wed

31

Dec

Thu

1

Jan

Fri

2

Jan

Sat

3

Jan

Sun

4

Jan

Mon

5

Jan

Tue

6

Jan

Wed

7

Jan

Thu

8

Jan

Fri

9

Jan

Sat

10

Jan

Sun

11

Jan

Mon

12

Jan

Tue

13

Jan

Wed

14

Jan

By clicking “Get pre-qualified” and/or 'Submit' you are expressly consenting, in writing, to receive telemarketing and other messages, including artificial or prerecorded voices, via automated calls or texts from jumprealty.ca and up.mortgages at the number you provided above. This consent is not required to purchase any good or service. Message and data rates may apply, frequency varies. Text HELP for help or STOP to cancel. More details in Terms of Use and Privacy Policy.

Listing Agency:  GRAPE VINE REALTY INC.
Hospital
Parks
Schools
Place of Worship
Please select an amenity above to view a list.

Recommended Properties

Loading...
67 Rundle Lane
Brighton , Ontario
2 2 $499,900
Get more info