For Lease - 6752 Concession 2 N/A, Puslinch, Ontario

Views   1
Time on Jump  49 day
  • Custom-built home in scenic Puslinch, ideal for various living situations.
  • Four spacious bedrooms with bright, open-concept layout and high ceilings.
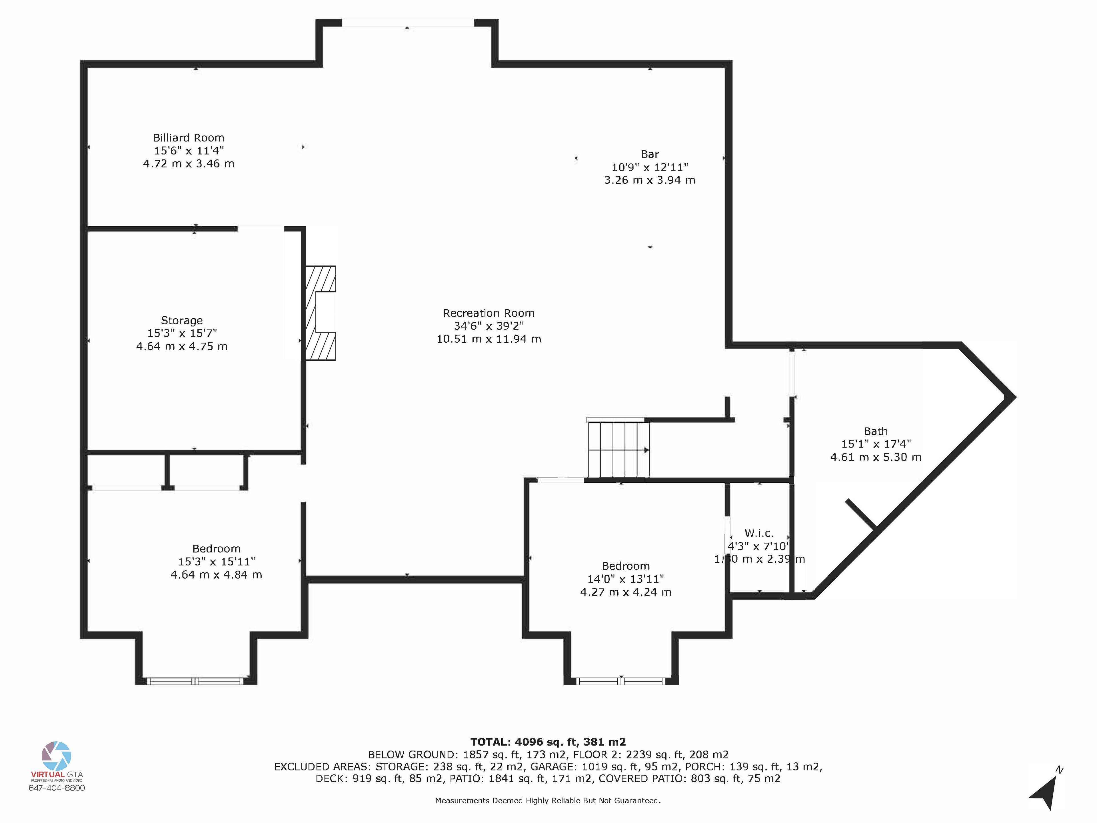
  • Lower level features a large recreation room and custom bar.
  • Private landscaped backyard with inground pool and inviting outdoor pavilion.
  • Large covered patio perfect for dining and relaxing outdoors.
Welcome to 6752 concession 2, ideally located just outside cambridge in the scenic community of puslinch. This beautifully custom-built home is seeking exceptional tenants who will care for and enjoy it as much as the owners do. Whether you're a visiting executive, in between homes during a renovation, or simply looking to experience tranquil country living, this property offers the perfect blend of comfort and luxury. The home features four spacious bedrooms and a bright, open-concept main floor, highlighted by dramatic 14-foot ceilings in the living room and 9-foot ceilings throughout the rest of the home. The lower level boasts a generous recreation room complete with a custom bar-ideal for entertaining or relaxing. Step outside to your private retreat: a meticulously landscaped backyard with an inground pool and waterfall, a charming outdoor pavilion, and a large covered patio perfect for dining or unwinding. This property truly feels like a home away from home.
Listing IDX12786812
Address6752 Concession 2 N/A
CityPuslinch, Ontario
Lease$7,700
Bed / Bath4 / 3 Full
StyleBungalow, Detached
ConstructionStone, Stucco (Plaster)
TypeResidential
StatusFor Lease
Subtype DetachedIndoor Features Primary Bedroom - Main Floor, Laundry RoomOutdoor Features Landscaped, DeckInclusions ParkingAmenities Park, GolfOwnership LeaseholdBasement Finished with Walk-OutFoundation Poured ConcreteHeating / Cooling Forced AirHeating Fuel PropaneSewer Septic
Parking 11.00
ASAP

Sun

5

Apr

Mon

6

Apr

Tue

7

Apr

Wed

8

Apr

Thu

9

Apr

Fri

10

Apr

Sat

11

Apr

Sun

12

Apr

Mon

13

Apr

Tue

14

Apr

Wed

15

Apr

Thu

16

Apr

Fri

17

Apr

Sat

18

Apr

Sun

19

Apr

Mon

20

Apr

Tue

21

Apr

Wed

22

Apr

Thu

23

Apr

Fri

24

Apr

Sat

25

Apr

Sun

26

Apr

Mon

27

Apr

Tue

28

Apr

Wed

29

Apr

Thu

30

Apr

Fri

1

May

Sat

2

May

Sun

3

May

By clicking “Get pre-qualified” and/or 'Submit' you are expressly consenting, in writing, to receive telemarketing and other messages, including artificial or prerecorded voices, via automated calls or texts from jumprealty.ca and up.mortgages at the number you provided above. This consent is not required to purchase any good or service. Message and data rates may apply, frequency varies. Text HELP for help or STOP to cancel. More details in Terms of Use and Privacy Policy.

Listing Agency:  ROYAL LEPAGE MEADOWTOWNE REALTY

* Data is provided courtesy of PROPTX. The information provided herein must only be used by consumers that have a bona fide interest in the purchase, sale, or lease of real estate and may not be used for any commercial purpose or any other purpose. The information is deemed reliable but is not guaranteed accurate by PROPTX.

Hospital
Parks
Schools
Place of Worship
Please select an amenity above to view a list.

Recommended Properties

Loading...
6752 Concession 2 N/a
Puslinch , Ontario
4 3 $7,700
Get more info