For Sale - 677 Principale Street, Casselman, Ontario

Est payment $2,639/mo
Views   1
Time on Jump  1 days
  • Beautiful bungalow with legal basement apartment for extra income or family living.
  • Generous lot size providing plenty of outdoor space and storage options.
  • Two self-contained units each with kitchens, laundry, and private living areas.
  • Recently renovated lower-level unit designed for modern living with abundant natural light.
  • Conveniently located near Highway 417, shops, schools, and parks.



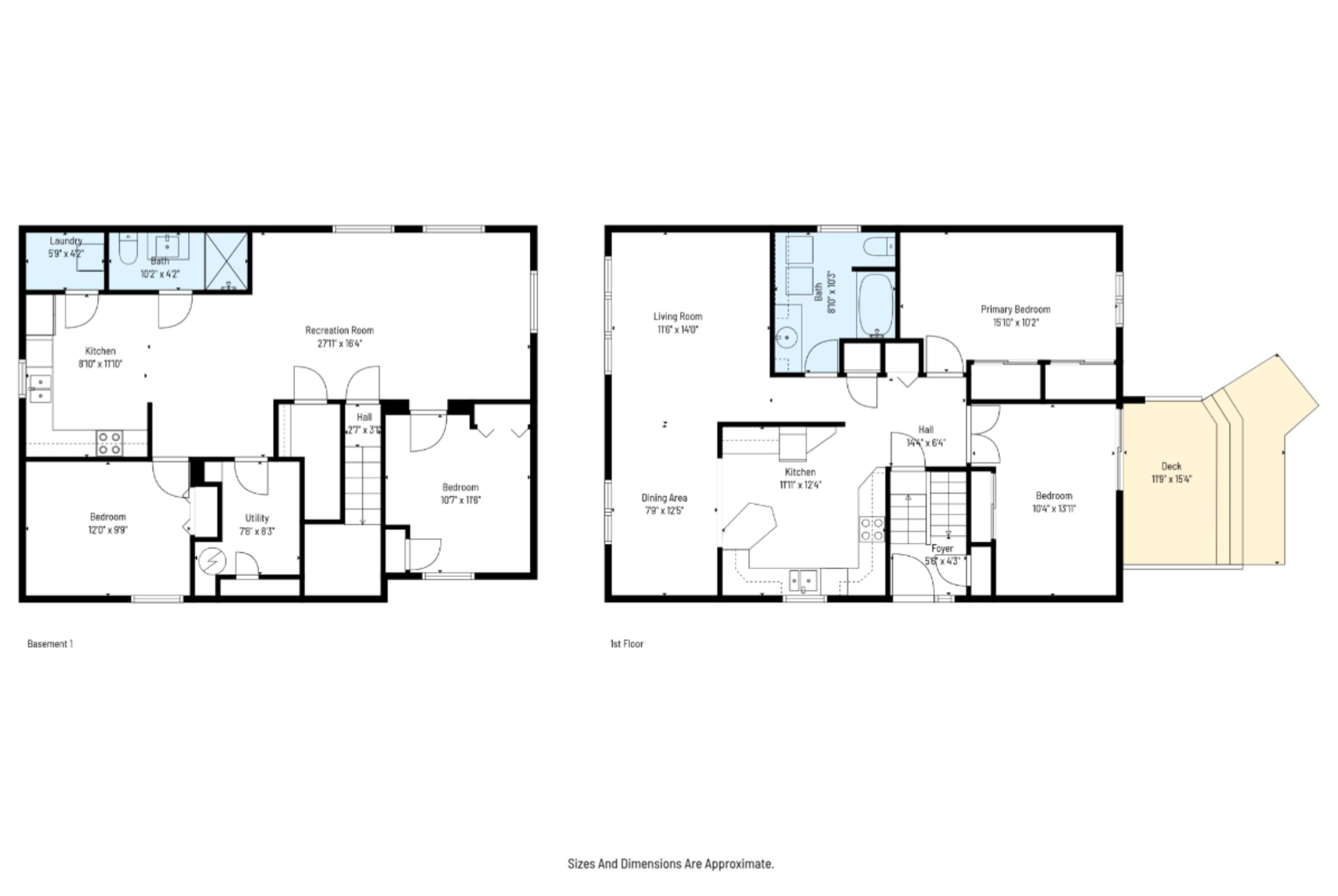
Welcome to 677 principale street in casselman - a beautiful bungalow with legal basement apartment opportunity in the heart of town! Situated on a generous 49' x 149' lot, this well-located property offers excellent flexibility for investors, multi-generational living, or owner-occupancy with rental income. The main floor unit features 2 bedrooms and 1 full bathroom, with a bright open-concept kitchen and dining area that seamlessly flows into the living space. Large windows throughout provide an abundance of natural light. The recently renovated lower-level unit also offers 2 bedrooms and 1 bathroom, complete with a fully open-concept kitchen, dining, and living area designed for modern living. Both units are entirely self-contained, each with their own kitchen, laundry facilities, and separate living spaces, ensuring privacy and independence. This home with legal basement apartment is zoned gc (general commercial), allowing for a variety of additional permitted uses - a rare and valuable feature that adds long-term upside and versatility. The expansive backyard offers impressive space and includes a large detached shed for added storage. Ideally located just minutes from highway 417 (2-3 minute drive) and close to grocery stores, reputable schools, parks, and all of casselman's amenities, this property combines convenience, income potential, and future flexibility. Basement unit purposely kept vacant to offer buyers flexibility. Book your showing today!
Listing IDX13033890
Address677 Principale Street
CityCasselman, Ontario
Price$549,500
Bed / Bath4 / 2 Full
StyleBungalow, Detached
ConstructionBrick, Aluminum Siding
TypeResidential
StatusFor Sale
Subtype DetachedIndoor Features Carpet Free, Storage, Sump Pump, Water MeterOutdoor Features DeckAmenities Golf, School, School Bus RouteOwnership FreeholdBasement ApartmentFoundation BlockHeating / Cooling BaseboardHeating Fuel ElectricSewer Sewer
Parking 3.00
ASAP

Fri

24

Apr

Sat

25

Apr

Sun

26

Apr

Mon

27

Apr

Tue

28

Apr

Wed

29

Apr

Thu

30

Apr

Fri

1

May

Sat

2

May

Sun

3

May

Mon

4

May

Tue

5

May

Wed

6

May

Thu

7

May

Fri

8

May

Sat

9

May

Sun

10

May

Mon

11

May

Tue

12

May

Wed

13

May

Thu

14

May

Fri

15

May

Sat

16

May

Sun

17

May

Mon

18

May

Tue

19

May

Wed

20

May

Thu

21

May

Fri

22

May

By clicking “Get pre-qualified” and/or 'Submit' you are expressly consenting, in writing, to receive telemarketing and other messages, including artificial or prerecorded voices, via automated calls or texts from jumprealty.ca and up.mortgages at the number you provided above. This consent is not required to purchase any good or service. Message and data rates may apply, frequency varies. Text HELP for help or STOP to cancel. More details in Terms of Use and Privacy Policy.

Listing Agency:  ROYAL LEPAGE PERFORMANCE REALTY

* Data is provided courtesy of PROPTX. The information provided herein must only be used by consumers that have a bona fide interest in the purchase, sale, or lease of real estate and may not be used for any commercial purpose or any other purpose. The information is deemed reliable but is not guaranteed accurate by PROPTX.

Hospital
Parks
Schools
Place of Worship
Please select an amenity above to view a list.

Recommended Properties

Loading...
677 Principale Street
Casselman , Ontario
4 2 $549,500
Get more info