For Sale - 68 Parkchester Road, Toronto, Ontario

Est payment $4,317/mo
Views   1
Time on Jump  1 days
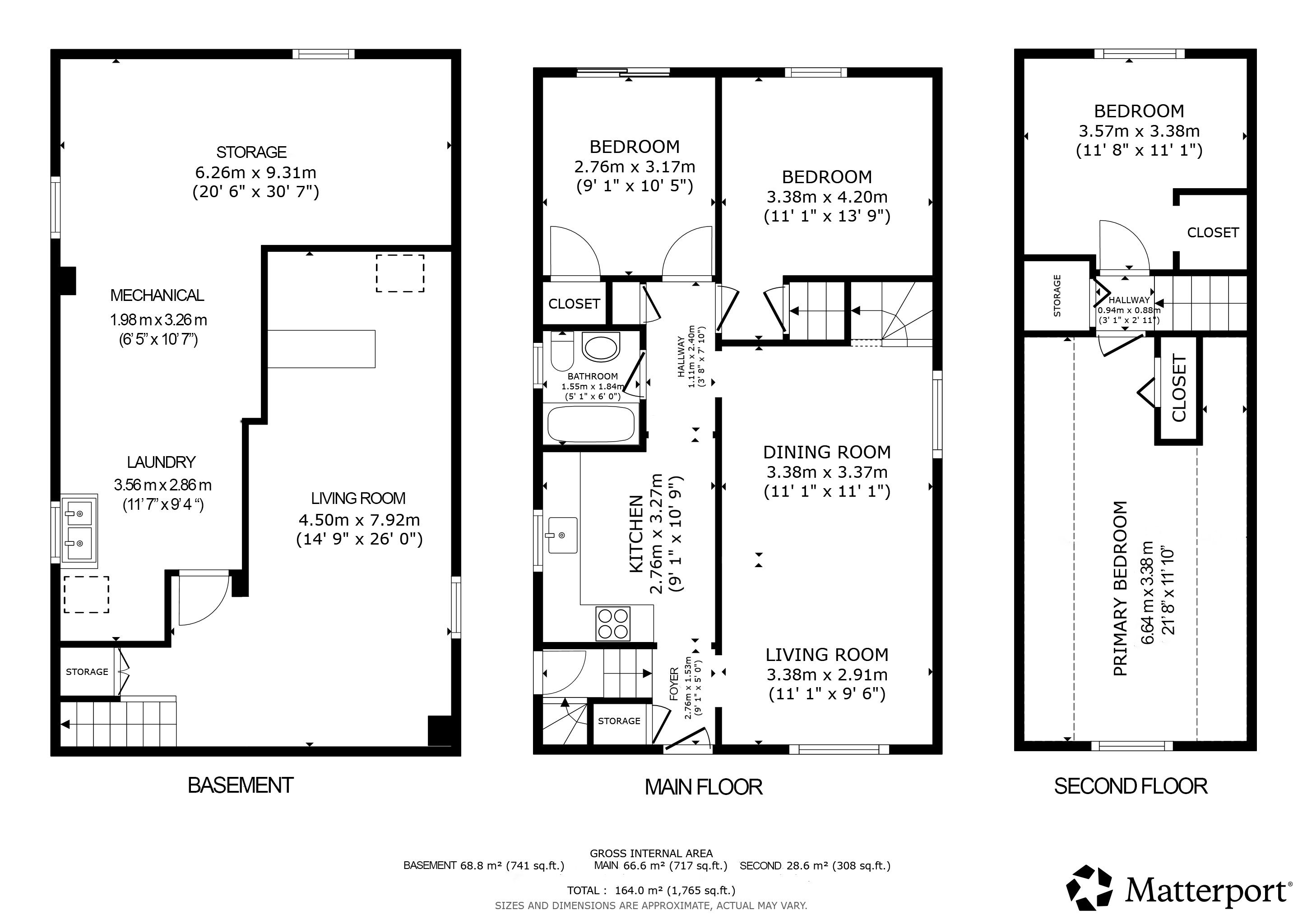
  • Updated detached home with four bedrooms on a spacious lot.
  • Open concept living and dining area with a welcoming layout.
  • Large deck off the main floor for outdoor enjoyment.
  • Lower level features a rec room and side entrance for versatility.
  • Great community with easy access to transportation, schools, and shopping.



Beautifully well kept and updated detached 4 bedroom toronto home on a premium 55x125 foot lot in a gorgeous enclave of custom built luxury homes! Move in ready with a main floor open concept spacious living and dining room, eat in family sized kitchen with south facing window, four piece main floor bathroom and two bedrooms with walk out to large deck! Upper level has a stunningly massive primary bedroom and another large bedroom! The lower level has a separate side entrance and a rec room with dry bar and panelled walls and excellent potential with spacious storage room! Excellent updates including double car garage, large deck at rear, 200amp electrical service and high efficiency gas furnace with central air! Beautiful fenced backyard with pool sized dimensions! Fantastic neighbours in a great community of quality homeowners and an enclave of many custom homes! This fantastic location offers easy access to ttc, eglinton lrt, schools, shopping, highway access and much more!
Listing IDW12989164
Address68 Parkchester Road
CityToronto, Ontario
Price$899,000
Bed / Bath4 / 1 Full
Style1 1/2 Storey, Detached
ConstructionBrick
Land Size6264.59
TypeResidential
StatusFor Sale
Subtype DetachedIndoor Features Auto Garage Door Remote, StorageOutdoor Features Deck, LandscapedAmenities Clear View, Fenced Yard, Greenbelt/Conservation, Park, Public Transit, SchoolOwnership FreeholdViews Garden, Clear, Panoramic, Park/Greenbelt, Trees/Woods, ForestAppliances Accessible Public Transit Nearby, Multiple Entrances, Open Floor Plan, ParkingBasement Separate Entrance, Partially FinishedFoundation Concrete BlockHeating / Cooling Forced AirHeating Fuel GasSewer Sewer
Parking 6.00
ASAP

Tue

14

Apr

Wed

15

Apr

Thu

16

Apr

Fri

17

Apr

Sat

18

Apr

Sun

19

Apr

Mon

20

Apr

Tue

21

Apr

Wed

22

Apr

Thu

23

Apr

Fri

24

Apr

Sat

25

Apr

Sun

26

Apr

Mon

27

Apr

Tue

28

Apr

Wed

29

Apr

Thu

30

Apr

Fri

1

May

Sat

2

May

Sun

3

May

Mon

4

May

Tue

5

May

Wed

6

May

Thu

7

May

Fri

8

May

Sat

9

May

Sun

10

May

Mon

11

May

Tue

12

May

By clicking “Get pre-qualified” and/or 'Submit' you are expressly consenting, in writing, to receive telemarketing and other messages, including artificial or prerecorded voices, via automated calls or texts from jumprealty.ca and up.mortgages at the number you provided above. This consent is not required to purchase any good or service. Message and data rates may apply, frequency varies. Text HELP for help or STOP to cancel. More details in Terms of Use and Privacy Policy.

Listing Agency:  ROYAL LEPAGE TERREQUITY REALTY

* Data is provided courtesy of PROPTX. The information provided herein must only be used by consumers that have a bona fide interest in the purchase, sale, or lease of real estate and may not be used for any commercial purpose or any other purpose. The information is deemed reliable but is not guaranteed accurate by PROPTX.

Hospital
Parks
Schools
Place of Worship
Please select an amenity above to view a list.

Recommended Properties

Loading...
68 Parkchester Road
Toronto , Ontario
4 1 $899,000
Get more info