For Lease - 68 Root Crescent Unit# Upper, Ajax, Ontario

Views   1
Time on Jump  68 day
  • All-brick townhome offers nearly 3000 sq. ft. of living space.
  • Premium deep lot with an extended driveway fitting up to 4 cars.
  • Two large living areas perfect for entertaining and gatherings.
  • Spacious kitchen with quartz countertops and newer appliances.
  • Huge backyard with a deck and patio for outdoor enjoyment.
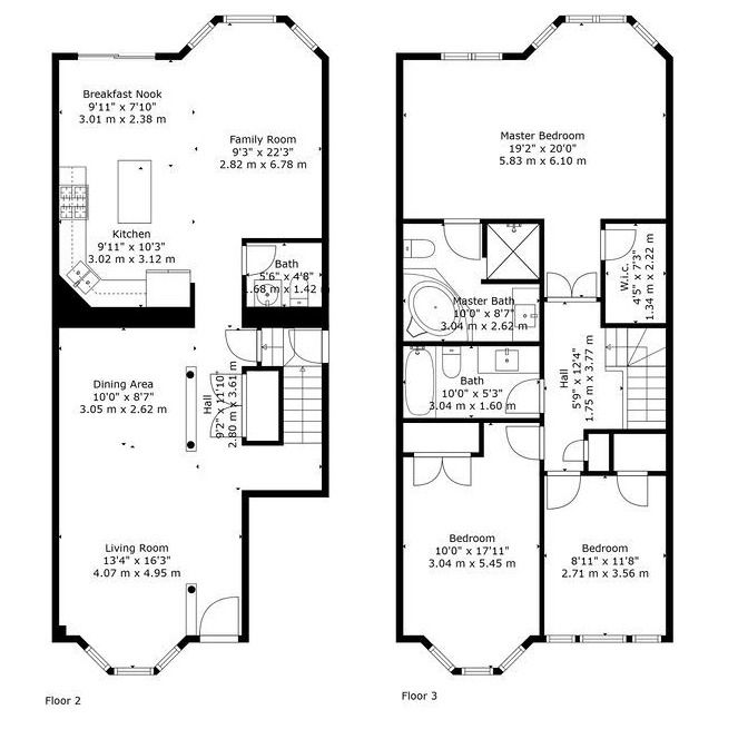
Welcome to the harmony model! This rarely available tormina-built all brick freehold townhome offers nearly 3000 sq. Ft. Of living space in highly desired northwest ajax, combining the features and space of a detached home. Situated on a picturesque street with no fronting neighbors, this home boasts a premium 121' deep lot and an extended driveway that fits up to 4 cars, offering added privacy. Inside, you'll find two large, separate living areas, perfect for entertaining. The main floor features hardwood floors, pot lights, and no popcorn ceilings, with hardwood and pot lights continuing throughout the second floor. The family-size kitchen includes quartz countertops, a center island, breakfast bar, and newer appliances, including a gas stove. Freshly painted and move-in ready, this home also offers 3 spacious bedrooms and 2 full bathrooms on the second floor, with the primary suite featuring a sitting area, walk-in closet, 4-piece ensuite, and soaker tub. The finished basement includes 2 bedrooms, a full bathroom, larger windows, and a separate entrance, offering endless potential for family living space/in-law suite. Enjoy the outdoors in the huge backyard complete with a deck and patio. Upgrades include: roof (2021), hardwood (2022), potlights (2022), paint (2024), extended driveway (2021), kitchen (2022), washroom vanities (2023) walking distance to two high schools, mosque, church, grands-view park, and grocery stores, this home is a must-see! This spacious, well-appointed home wont last longbook your showing today
Listing IDE12701290
Address68 Root Crescent Unit# Upper
CityAjax, Ontario
Lease$2,900
Bed / Bath3 / 4 Full
Style2-Storey, Att/Row/Townhouse
ConstructionBrick
Land Size3046.18
TypeResidential
StatusFor Lease
Subtype Att/Row/TownhouseIndoor Features Central Vacuum, In-Law Suite, In-Suite LaundryOutdoor Features Deck, PorchInclusions ParkingAmenities Level, Park, Public Transit, SchoolOwnership LeaseholdWaterfront NoneBasement ApartmentFoundation Poured ConcreteHeating / Cooling Forced AirHeating Fuel GasSewer Sewer
Parking 1.00
ASAP

Thu

26

Mar

Fri

27

Mar

Sat

28

Mar

Sun

29

Mar

Mon

30

Mar

Tue

31

Mar

Wed

1

Apr

Thu

2

Apr

Fri

3

Apr

Sat

4

Apr

Sun

5

Apr

Mon

6

Apr

Tue

7

Apr

Wed

8

Apr

Thu

9

Apr

Fri

10

Apr

Sat

11

Apr

Sun

12

Apr

Mon

13

Apr

Tue

14

Apr

Wed

15

Apr

Thu

16

Apr

Fri

17

Apr

Sat

18

Apr

Sun

19

Apr

Mon

20

Apr

Tue

21

Apr

Wed

22

Apr

Thu

23

Apr

By clicking “Get pre-qualified” and/or 'Submit' you are expressly consenting, in writing, to receive telemarketing and other messages, including artificial or prerecorded voices, via automated calls or texts from jumprealty.ca and up.mortgages at the number you provided above. This consent is not required to purchase any good or service. Message and data rates may apply, frequency varies. Text HELP for help or STOP to cancel. More details in Terms of Use and Privacy Policy.

Listing Agency:  NEWGEN REALTY EXPERTS

* Data is provided courtesy of PROPTX. The information provided herein must only be used by consumers that have a bona fide interest in the purchase, sale, or lease of real estate and may not be used for any commercial purpose or any other purpose. The information is deemed reliable but is not guaranteed accurate by PROPTX.

Hospital
Parks
Schools
Place of Worship
Please select an amenity above to view a list.

Recommended Properties

Loading...
68 Root Crescent Unit# Upper
Ajax , Ontario
3 4 $2,900
Get more info