For Sale - 683005 Chatsworth Road 24 Road, Chatsworth, Ontario

Est payment $2,861/mo
Views   1
Time on Jump  196 day
  • Charming Cape Cod home with a welcoming, open layout for family living.
  • Spacious living room filled with natural light and a cozy gas fireplace.
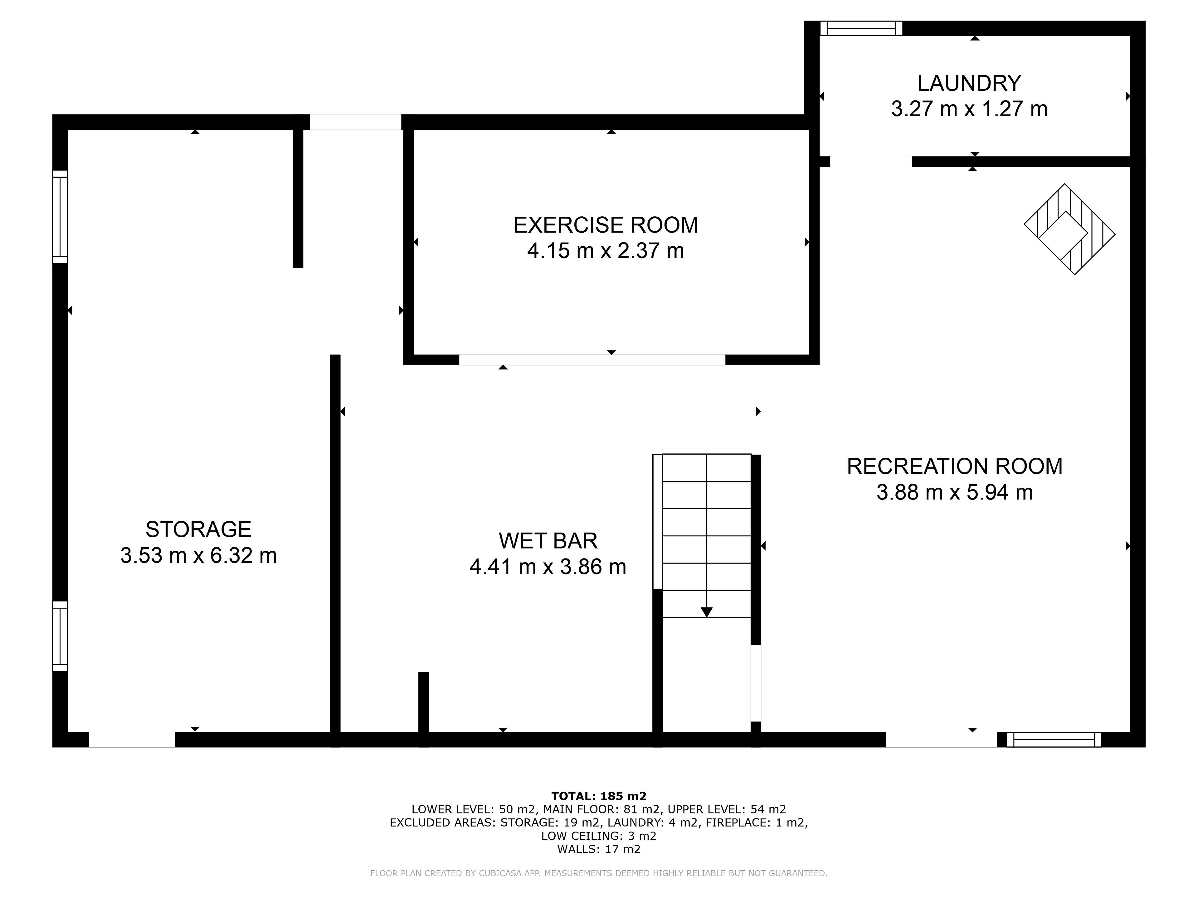
  • Finished lower level with built-in bar, perfect for entertaining and relaxation.
  • Fully fenced outdoor space with gardens, concrete patio, and above-ground pool.
  • Viewing deck by the river for peaceful morning coffee and nature views.



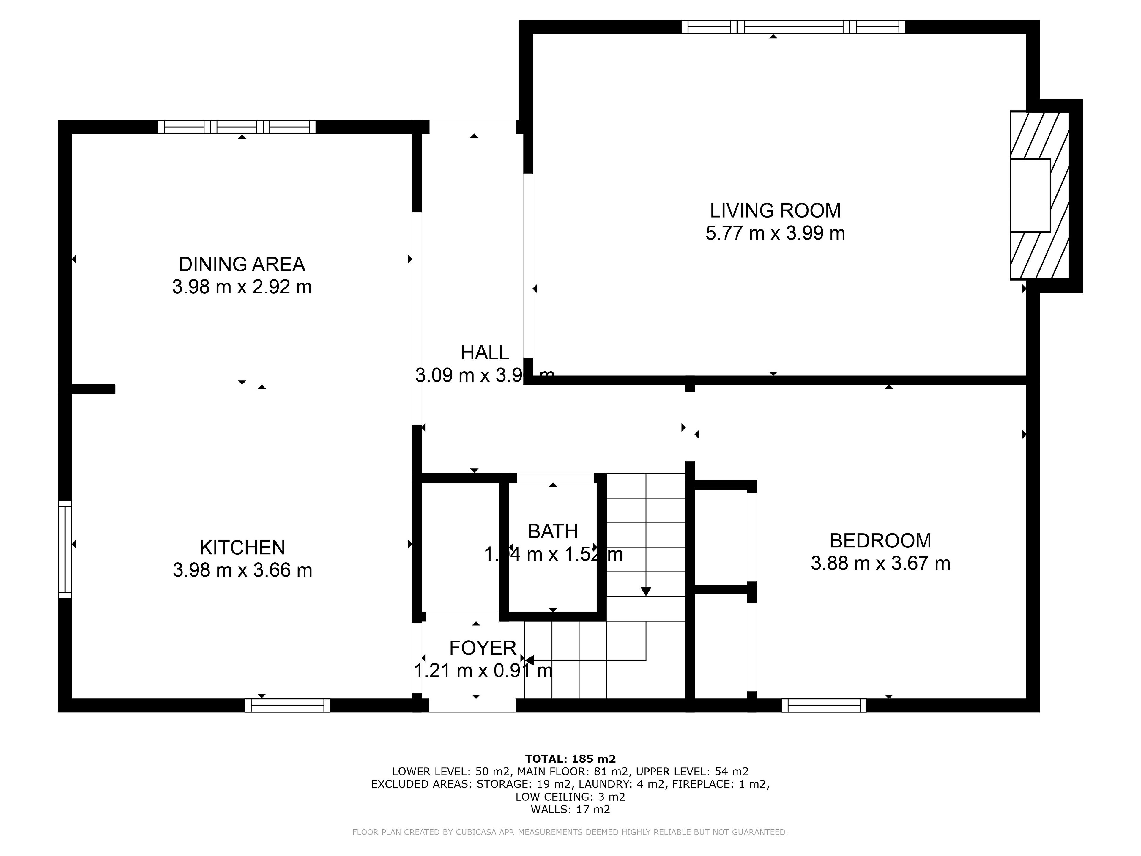
Welcome to this delightful cape cod style family home, full of warmth, character, and charm! Step inside to an open and inviting layout featuring a well appointed kitchen complete with a breakfast bar, that opens to a spacious dining area, ideal for entertaining. An expansive living room with large windows that flood the home with natural sunlight. The evening, provides a gentle glow of the gas fire place creating a warm, inviting atmosphere that enhances the overall feel of the living space. Designed for family living, this well-maintained home provides 3 generous-sized bedrooms, including a bedroom and powder room on the main floor. Upstairs you will find two spacious bedrooms with ample closet space and a full bath, offering plenty of room for kids, guests, or a home office. The fully finished lower level features a stylish built-in bar, perfect for hosting game nights, celebrations, or relaxing after a long day. With plenty of space to mix drinks, watch the game, or gather with friends, this casual hangout zone brings the party home. Whether you're crafting cocktails or serving up cold drinks on the weekend, this bar area adds a fun and functional touch to your homes social scene. Step outside and enjoy a beautifully laid-out, fully fenced outdoor space that offers both relaxation and functionality. The property features a plethora of established gardens adding charm, colour and a touch of nature throughout the yard, while an expansive concrete patio provides the perfect space for summer bbqs & outdoor dining. An above-ground pool awaits some much needed tlc offering a great opportunity to create a backyard retreat. At the back of the property, a viewing deck overlooking the tranquil north saugeen river provides a peaceful spot to unwind, sip your morning coffee, or take in the natural surroundings. This home offers so much and its location has you central to amenities and recreational enjoyment offered in owen sound, durham, hanover and markdale.
Listing IDX12407865
Address683005 Chatsworth Road 24 Road
CityChatsworth, Ontario
Price$595,900
Bed / Bath3 / 2 Full
Style2-Storey, Detached
ConstructionStone
TypeResidential
StatusFor Sale
Subtype DetachedIndoor Features Carpet Free, Primary Bedroom - Main Floor, Water TreatmentOwnership FreeholdWaterfront DirectBasement FinishedFoundation ConcreteHeating / Cooling BaseboardHeating Fuel ElectricSewer Septic
Parking 3.00
ASAP

Thu

2

Apr

Fri

3

Apr

Sat

4

Apr

Sun

5

Apr

Mon

6

Apr

Tue

7

Apr

Wed

8

Apr

Thu

9

Apr

Fri

10

Apr

Sat

11

Apr

Sun

12

Apr

Mon

13

Apr

Tue

14

Apr

Wed

15

Apr

Thu

16

Apr

Fri

17

Apr

Sat

18

Apr

Sun

19

Apr

Mon

20

Apr

Tue

21

Apr

Wed

22

Apr

Thu

23

Apr

Fri

24

Apr

Sat

25

Apr

Sun

26

Apr

Mon

27

Apr

Tue

28

Apr

Wed

29

Apr

Thu

30

Apr

By clicking “Get pre-qualified” and/or 'Submit' you are expressly consenting, in writing, to receive telemarketing and other messages, including artificial or prerecorded voices, via automated calls or texts from jumprealty.ca and up.mortgages at the number you provided above. This consent is not required to purchase any good or service. Message and data rates may apply, frequency varies. Text HELP for help or STOP to cancel. More details in Terms of Use and Privacy Policy.

Listing Agency:  eXp Realty

* Data is provided courtesy of PROPTX. The information provided herein must only be used by consumers that have a bona fide interest in the purchase, sale, or lease of real estate and may not be used for any commercial purpose or any other purpose. The information is deemed reliable but is not guaranteed accurate by PROPTX.

Hospital
Parks
Schools
Place of Worship
Please select an amenity above to view a list.

Recommended Properties

Loading...
683005 Chatsworth Road 24 Road
Chatsworth , Ontario
3 2 $595,900
Get more info