For Sale - 69 Guildwood Drive, Clarington, Ontario

Est payment $3,762/mo
Views   1
Time on Jump  1 days
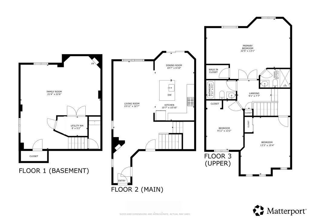
  • Well maintained detached home in a good Bowmanville area.
  • Three bedrooms and 2.5 bathrooms for ample living space.
  • Cozy rec room with gas fireplace for relaxation.
  • Fenced backyard with a deck, gazebo, and hot tub.
  • Recent updates including kitchen, bathrooms, and HVAC systems.



Looking for a well maintained, clean, updated detached home in a good area of bowmanville? Look no further 69 guildwood dr may satisfy your needs. 3 bedroom 2 1/2 bathrooms, rec room with gas fireplace, attached 1 1/2 car garage, fenced backyard with a walk-out to deck, gazebo and hot tub. Other features & considerations: kitchen reno 2020- upstairs bathroom reno 2022- ensuite bathroom 2024-furnace 2016- a/c 2019- roof 2014- garage door opener 2020- carpet( stairs & landing) 2024- electric fireplace in master.
Listing IDE12779160
Address69 Guildwood Drive
CityClarington, Ontario
Price$759,000
Bed / Bath3 / 3 Full
Style2-Storey, Detached
ConstructionBrick, Vinyl Siding
Land Size4467.02
TypeResidential
StatusFor Sale
Subtype DetachedIndoor Features Auto Garage Door Remote, Floor DrainOwnership FreeholdBasement FinishedFoundation Poured ConcreteHeating / Cooling Forced AirHeating Fuel GasSewer Sewer
Parking 3.00
ASAP

Thu

12

Feb

Fri

13

Feb

Sat

14

Feb

Sun

15

Feb

Mon

16

Feb

Tue

17

Feb

Wed

18

Feb

Thu

19

Feb

Fri

20

Feb

Sat

21

Feb

Sun

22

Feb

Mon

23

Feb

Tue

24

Feb

Wed

25

Feb

Thu

26

Feb

Fri

27

Feb

Sat

28

Feb

Sun

1

Mar

Mon

2

Mar

Tue

3

Mar

Wed

4

Mar

Thu

5

Mar

Fri

6

Mar

Sat

7

Mar

Sun

8

Mar

Mon

9

Mar

Tue

10

Mar

Wed

11

Mar

Thu

12

Mar

By clicking “Get pre-qualified” and/or 'Submit' you are expressly consenting, in writing, to receive telemarketing and other messages, including artificial or prerecorded voices, via automated calls or texts from jumprealty.ca and up.mortgages at the number you provided above. This consent is not required to purchase any good or service. Message and data rates may apply, frequency varies. Text HELP for help or STOP to cancel. More details in Terms of Use and Privacy Policy.

Listing Agency:  ROYAL LEPAGE FRANK REAL ESTATE
Hospital
Parks
Schools
Place of Worship
Please select an amenity above to view a list.

Recommended Properties

Loading...
69 Guildwood Drive
Clarington , Ontario
3 3 $759,000
Get more info