For Sale - 7 Highland Gardens, Welland, Ontario

Est payment $3,001/mo
Views   1
Time on Jump  1 days
  • Located in a quiet neighborhood near schools and parks.
  • Charming home with modern updates and lots of natural light.
  • Bright kitchen with stainless steel appliances for convenience.
  • Four-season sunroom overlooking landscaped backyard for relaxation.
  • Detached garage/workshop and parking for 2 to 3 cars.



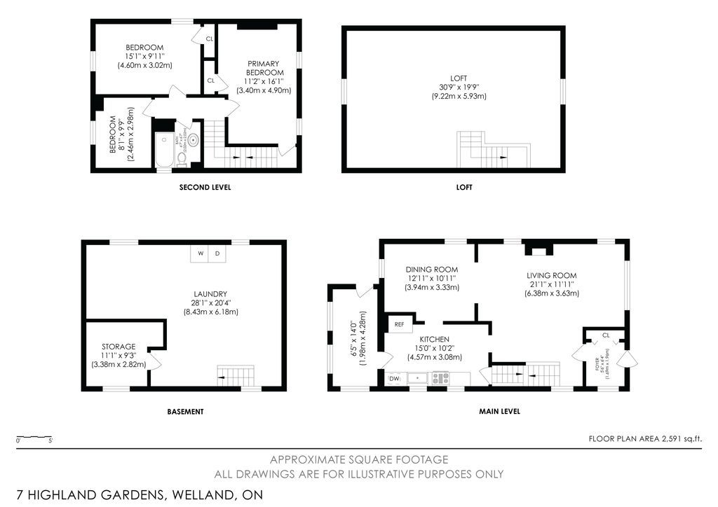
Welcome to the 7 highland gardens in the desirable chippawa park neighbourhood of welland. Surrounded by other unique character homes and set on a quiet dead end street, this tastefully decorated 3 bedroom /1 bath home is located walking distance to schools, the park & rose garden, lawn bowling, and the fitch street shopping plaza. This home is filled with charm and modern updates throughout. A welcoming front entrance leads to foyer and into front living room with beautiful wood flooring, pot lights, wood burning fireplace, and opens to the formal dining room at the rear of the home. Along the east side runs the bright kitchen with stainless steel appliances. Lots of windows with blinds for plenty of natural light or privacy. The 4 season south facing sunroom provides rear entry and overlooks the private landscaped backyard. Upstairs are 3 bedrooms and the 4 piece bath with a walk up access thru primary bedroom to a large unfinished attic space. The attic has high peaked ceiling with north and south facing windows and lighting - great for storage, a craft space and plenty of options to finish the space. Laundry with laundry tub and loads of storage in full unfinished basement. Great curb appeal, nicely landscaped all around. The partially fenced rear yard has new raised deck area for added outdoor enjoyment. Single long drive has parking for 2 to 3 cars along with a detached garage/workshop. This sweet home is move in ready looking for a new family to call it home sweet home. Make arrangements to view for yourself and see if this is the home you have been waiting for! See the multi media link below for video tour and floor plans.
Listing IDX13005940
Address7 Highland Gardens
CityWelland, Ontario
Price$624,900
Bed / Bath3 / 1 Full
Style2-Storey, Detached
ConstructionBrick, Wood
TypeResidential
StatusFor Sale
Subtype DetachedIndoor Features NoneOwnership FreeholdBasement UnfinishedFoundation Poured ConcreteHeating / Cooling Forced AirHeating Fuel GasSewer Sewer
Parking 3.00
ASAP

Fri

17

Apr

Sat

18

Apr

Sun

19

Apr

Mon

20

Apr

Tue

21

Apr

Wed

22

Apr

Thu

23

Apr

Fri

24

Apr

Sat

25

Apr

Sun

26

Apr

Mon

27

Apr

Tue

28

Apr

Wed

29

Apr

Thu

30

Apr

Fri

1

May

Sat

2

May

Sun

3

May

Mon

4

May

Tue

5

May

Wed

6

May

Thu

7

May

Fri

8

May

Sat

9

May

Sun

10

May

Mon

11

May

Tue

12

May

Wed

13

May

Thu

14

May

Fri

15

May

By clicking “Get pre-qualified” and/or 'Submit' you are expressly consenting, in writing, to receive telemarketing and other messages, including artificial or prerecorded voices, via automated calls or texts from jumprealty.ca and up.mortgages at the number you provided above. This consent is not required to purchase any good or service. Message and data rates may apply, frequency varies. Text HELP for help or STOP to cancel. More details in Terms of Use and Privacy Policy.

Listing Agency:  ROYAL LEPAGE NRC REALTY

* Data is provided courtesy of PROPTX. The information provided herein must only be used by consumers that have a bona fide interest in the purchase, sale, or lease of real estate and may not be used for any commercial purpose or any other purpose. The information is deemed reliable but is not guaranteed accurate by PROPTX.

Hospital
Parks
Schools
Place of Worship
Please select an amenity above to view a list.

Recommended Properties

Loading...
7 Highland Gardens
Welland , Ontario
3 1 $624,900
Get more info