For Lease - 70 Valleywood Drive Unit# 203, Markham, Ontario

Views   3
Time on Jump  59 day
  • Prime location in Valleywood Business Park with easy highway access.
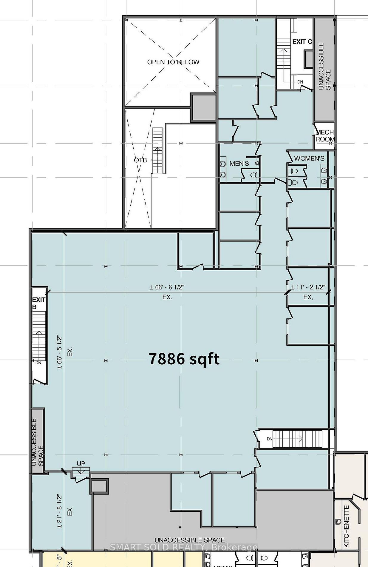
  • 7,886 sqft of fully finished space on the second floor.
  • Separate entrance for convenience and privacy.
  • Versatile space suitable for various business types.
  • Close to downtown Markham and vibrant communities.
Prime location in prestigious valleywood business park. Total of 7,886sqft fully finished space on 2nd floor w/sep entrance. The only available unit left in this highly desired location! Ideal for variety of businesses including education, beauty&health related, pilates, yoga, etc. Newly finished. Minutes from highways 404, 401 and 407. Close to t&t, downtown markham. Surrounded by large communities with endless potential clients.
Listing IDN12889760
Address70 Valleywood Drive Unit# 203
CityMarkham, Ontario
Lease$24
StyleCommercial Retail
TypeIndustrial/Commercial
StatusFor Lease
Subtype Commercial RetailCommunity Features Major Highway, Public TransitOwnership LeaseholdHeating / Cooling Gas Forced Air Open
ASAP

Sat

16

May

Sun

17

May

Mon

18

May

Tue

19

May

Wed

20

May

Thu

21

May

Fri

22

May

Sat

23

May

Sun

24

May

Mon

25

May

Tue

26

May

Wed

27

May

Thu

28

May

Fri

29

May

Sat

30

May

Sun

31

May

Mon

1

Jun

Tue

2

Jun

Wed

3

Jun

Thu

4

Jun

Fri

5

Jun

Sat

6

Jun

Sun

7

Jun

Mon

8

Jun

Tue

9

Jun

Wed

10

Jun

Thu

11

Jun

Fri

12

Jun

Sat

13

Jun

By clicking “Get pre-qualified” and/or 'Submit' you are expressly consenting, in writing, to receive telemarketing and other messages, including artificial or prerecorded voices, via automated calls or texts from jumprealty.ca and up.mortgages at the number you provided above. This consent is not required to purchase any good or service. Message and data rates may apply, frequency varies. Text HELP for help or STOP to cancel. More details in Terms of Use and Privacy Policy.

Listing Agency:  SMART SOLD REALTY

* Data is provided courtesy of PROPTX. The information provided herein must only be used by consumers that have a bona fide interest in the purchase, sale, or lease of real estate and may not be used for any commercial purpose or any other purpose. The information is deemed reliable but is not guaranteed accurate by PROPTX.

Hospital
Parks
Schools
Place of Worship
Please select an amenity above to view a list.

Recommended Properties

Loading...
70 Valleywood Drive Unit# 203
Markham , Ontario
$24
Get more info