For Lease - 721 Cooper Street Unit# C, Ottawa Centre, Ontario

Views   1
Time on Jump  7 day
  • Spacious 2-bedroom apartment with well-designed layout for comfort and convenience.
  • Bright living room and versatile den suitable for various needs.
  • Private balcony perfect for enjoying outdoor space.
  • Located steps from parks, universities, and vibrant city life.
  • All utilities included except hydro, simplifying monthly expenses.
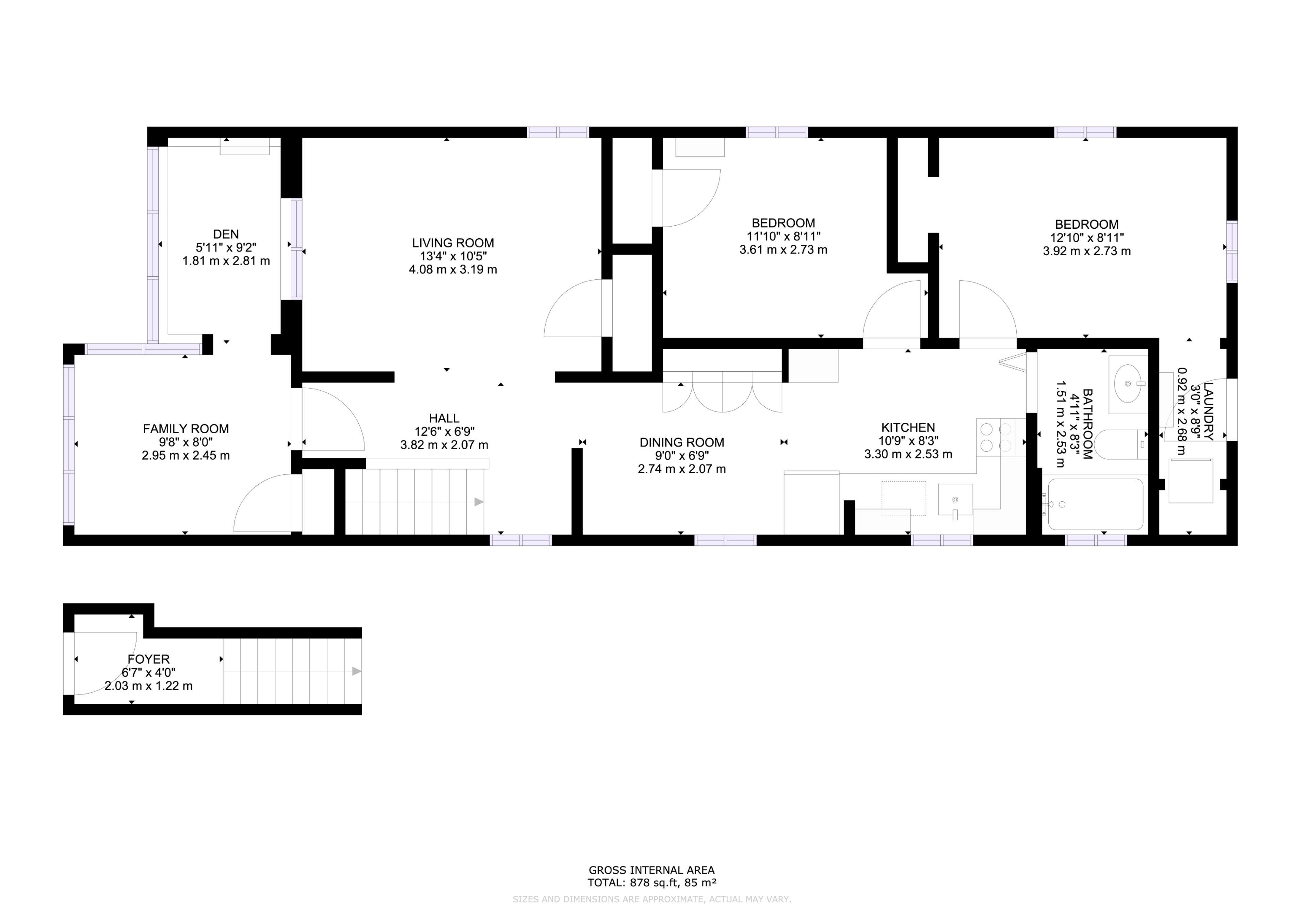
Welcome to 721 cooper street - an unbeatable downtown location! This spacious and sun filled 2-bedroom, 1-bath apartment with parking offers the perfect blend of comfort and convenience. Featuring a well designed layout with two bedrooms, a full bathroom, a bright living room, a versatile den, hardwood floors, in-unit laundry and a private balcony, this unit is ideal for urban living. Set among charming homes in one of ottawa's most desirable neighbourhoods, you're just steps from dundonald park and within easy reach of university of ottawa, carleton university, parliament hill, the byward market, elgin street's vibrant restaurants, shops, cafés, the rideau centre, lebreton flats, little italy, chinatown, lrt access and more. Tenant pays hydro only - all other utilities are included. Minimum 1 year lease preferred. In may, the landlord will be rebuilding the deck. Completion date is mid june. Unit c deck will be 20'x10'. Rental application, proof of employment, and a recent credit check required. Available june 1st, 2026. This unit is part of a triplex and units b and a are also available june 1st. See unit b mls x12983848 and unit a mls x12983818 for details. Floor plans available in the photos. Your downtown lifestyle starts here!
Listing IDX12983858
Address721 Cooper Street Unit# C
CityOttawa Centre, Ontario
Lease$3,000
Bed / Bath2 / 1 Full
Style1 Storey/Apt, Triplex
ConstructionBrick
TypeMulti-Family
StatusFor Lease
Subtype TriplexIndoor Features Carpet Free, In-Suite LaundryInclusions Heat, Water, ParkingOwnership LeaseholdBasement NoneFoundation ConcreteHeating / Cooling OtherHeating Fuel GasSewer Sewer
Parking 1.00
ASAP

Sat

18

Apr

Sun

19

Apr

Mon

20

Apr

Tue

21

Apr

Wed

22

Apr

Thu

23

Apr

Fri

24

Apr

Sat

25

Apr

Sun

26

Apr

Mon

27

Apr

Tue

28

Apr

Wed

29

Apr

Thu

30

Apr

Fri

1

May

Sat

2

May

Sun

3

May

Mon

4

May

Tue

5

May

Wed

6

May

Thu

7

May

Fri

8

May

Sat

9

May

Sun

10

May

Mon

11

May

Tue

12

May

Wed

13

May

Thu

14

May

Fri

15

May

Sat

16

May

By clicking “Get pre-qualified” and/or 'Submit' you are expressly consenting, in writing, to receive telemarketing and other messages, including artificial or prerecorded voices, via automated calls or texts from jumprealty.ca and up.mortgages at the number you provided above. This consent is not required to purchase any good or service. Message and data rates may apply, frequency varies. Text HELP for help or STOP to cancel. More details in Terms of Use and Privacy Policy.

Listing Agency:  ROYAL LEPAGE PERFORMANCE REALTY

* Data is provided courtesy of PROPTX. The information provided herein must only be used by consumers that have a bona fide interest in the purchase, sale, or lease of real estate and may not be used for any commercial purpose or any other purpose. The information is deemed reliable but is not guaranteed accurate by PROPTX.

Hospital
Parks
Schools
Place of Worship
Please select an amenity above to view a list.

Recommended Properties

Loading...
721 Cooper Street Unit# C
Ottawa Centre , Ontario
2 1 $3,000
Get more info