For Sale - 734 Shaw Street, Toronto, Ontario

Est payment $13,441/mo
Views   1
Time on Jump  1 days
  • Fully rebuilt home with nearly 3,800 sq ft of luxury living space.
  • Three finished units, each with separate entrances and utilities.
  • High-end finishes and appliances throughout for a modern lifestyle.
  • Great investment opportunity for multi-generation living or rental income.
  • Convenient location near Bloor, transit, universities, and top restaurants.



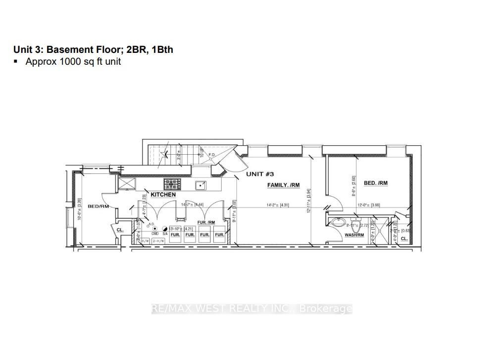
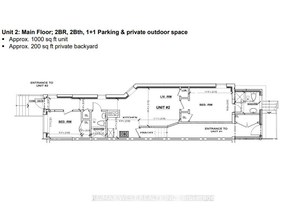
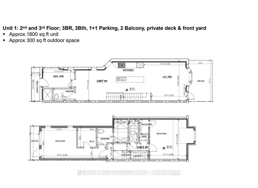
A smart, stylish investment in the heart of little italy. This fully rebuilt home offers nearly 3,800 total sq ft including basement of luxury living across 3 finished units with separate entrances, hydro, hvac, laundry, and kitchens. High-end finishes, custom millwork, sub-zero/wolf appliances, and spa-like baths add turnkey appeal. Ideal for portfolio investors, multi-generation or live-in owners - occupy one unit and let the others cash flow. Steps to bloor, ttc, u of t, and ossington's best restaurants. Truly one of toronto's most thoughtful multi-unit redevelopments.
Listing IDC12967862
Address734 Shaw Street
CityToronto, Ontario
Price$2,799,000
Bed / Bath7 / 6 Full
Style3-Storey, Semi-Detached
ConstructionBrick, Stucco (Plaster)
Land Size2117.5
TypeResidential
StatusFor Sale
Subtype Semi-Detached Indoor Features In-Law Suite, On Demand Water Heater, Primary Bedroom - Main Floor, Separate Heating Controls, Separate Hydro Meter, Sump Pump, Upgraded Insulation, Water MeterAmenities Arts Centre, Library, Park, Public Transit, Rec./Commun.Centre, SchoolOwnership FreeholdBasement Finished with Walk-Out, Separate EntranceFoundation Brick, ConcreteHeating / Cooling Forced AirHeating Fuel GasSewer Sewer
Parking 4.00
ASAP

Wed

8

Apr

Thu

9

Apr

Fri

10

Apr

Sat

11

Apr

Sun

12

Apr

Mon

13

Apr

Tue

14

Apr

Wed

15

Apr

Thu

16

Apr

Fri

17

Apr

Sat

18

Apr

Sun

19

Apr

Mon

20

Apr

Tue

21

Apr

Wed

22

Apr

Thu

23

Apr

Fri

24

Apr

Sat

25

Apr

Sun

26

Apr

Mon

27

Apr

Tue

28

Apr

Wed

29

Apr

Thu

30

Apr

Fri

1

May

Sat

2

May

Sun

3

May

Mon

4

May

Tue

5

May

Wed

6

May

By clicking “Get pre-qualified” and/or 'Submit' you are expressly consenting, in writing, to receive telemarketing and other messages, including artificial or prerecorded voices, via automated calls or texts from jumprealty.ca and up.mortgages at the number you provided above. This consent is not required to purchase any good or service. Message and data rates may apply, frequency varies. Text HELP for help or STOP to cancel. More details in Terms of Use and Privacy Policy.

Listing Agency:  RE/MAX WEST REALTY INC.

* Data is provided courtesy of PROPTX. The information provided herein must only be used by consumers that have a bona fide interest in the purchase, sale, or lease of real estate and may not be used for any commercial purpose or any other purpose. The information is deemed reliable but is not guaranteed accurate by PROPTX.

Hospital
Parks
Schools
Place of Worship
Please select an amenity above to view a list.

Recommended Properties

Loading...
734 Shaw Street
Toronto , Ontario
7 6 $2,799,000
Get more info