For Sale - 742 TAILSLIDE Private, Carp - Huntley Ward, Ontario

Est payment $2,689/mo
Views   1
Time on Jump  11 day
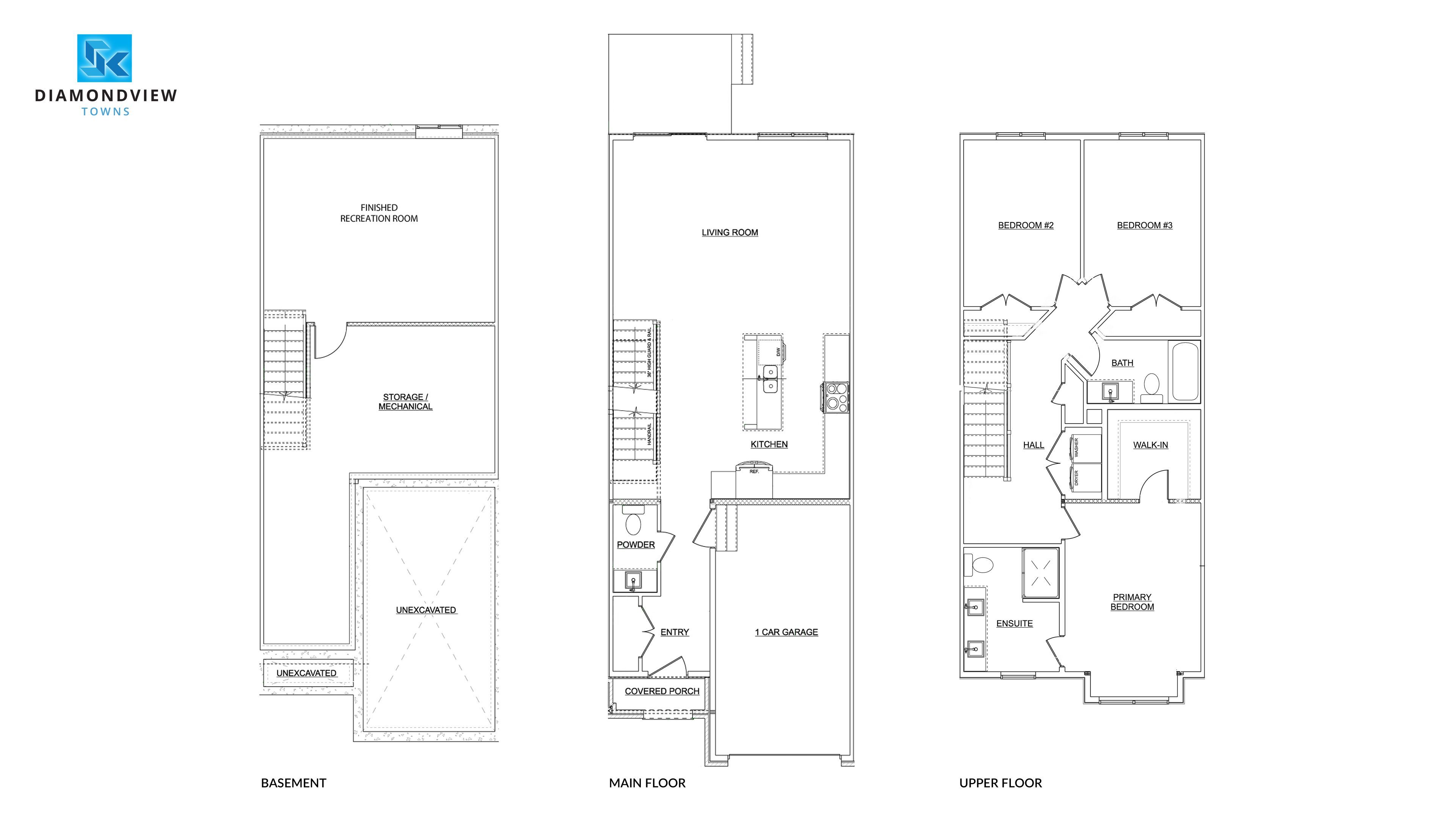
  • New model home with a seasonal design center bonus available for viewing.
  • Attractive executive town on an extra deep lot with exceptional curb appeal.
  • High-end standard features including wood siding and metal roof accents.
  • Community amenities include trails, sports courts, and a playground for all ages.
  • Convenient second-floor laundry and spacious primary walk-in closet for added comfort.



New model home available for viewing! Seasonal special: $10,000 design centre bonus & smooth ceilings included for a limited time! Executive town radiating curb appeal & exquisite design, on an extra deep lot. Their high-end, standard features set them apart. Exterior: genuine wood siding on front exterior w/ metal roof accent, wood inspired garage door, arched entryway, 10' x 8' deck off rear + eavesthroughing! Inside: finished recroom incl. In price along w/ 9' ceilings & high-end textured vinyl floors on main, designer kitchen w/ huge centre island, extended height cabinetry, backsplash & quartz counters, pot lights & soft-close cabinetry throughout! The 2nd floor laundry adds convenience, while the large primary walk-in closet delights. Rare community amenities incl. Walking trails, 1st class community center w/ sport courts (pickleball & basketball), playground, covered picnic area & washrooms! Lower property taxes & water bills make this locale even more appealing. Experience community, comfort & rural charm mere minutes from the quaint village of carp & hwy for easy access to ottawa's urban areas. Whether for yourself or as an investment, sheldon creek homes in diamondview estates offers a truly exceptional opportunity! Don't miss out - sheldon creek homes, the newest addition to diamondview estates! With 20 years of residential experience in orangeville, on, their presence in carp marks an exciting new chapter of modern living in rural ottawa. Wow - amazing value! Act now! Photos shown are of a model home and may include upgrades not included in the base price.
Listing IDX13003826
Address742 TAILSLIDE Private
CityCarp - Huntley Ward, Ontario
Price$559,900
Bed / Bath3 / 3 Full
Style2-Storey, Att/Row/Townhouse
ConstructionBrick, Other
TypeResidential
StatusFor Sale
Subtype Att/Row/TownhouseIndoor Features Air ExchangerOutdoor Features DeckAmenities Park, Other, Rec./Commun.CentreOwnership FreeholdBasement Partially FinishedFoundation ConcreteHeating / Cooling Forced AirHeating Fuel GasSewer Other
Parking 3.00
ASAP

Tue

28

Apr

Wed

29

Apr

Thu

30

Apr

Fri

1

May

Sat

2

May

Sun

3

May

Mon

4

May

Tue

5

May

Wed

6

May

Thu

7

May

Fri

8

May

Sat

9

May

Sun

10

May

Mon

11

May

Tue

12

May

Wed

13

May

Thu

14

May

Fri

15

May

Sat

16

May

Sun

17

May

Mon

18

May

Tue

19

May

Wed

20

May

Thu

21

May

Fri

22

May

Sat

23

May

Sun

24

May

Mon

25

May

Tue

26

May

By clicking “Get pre-qualified” and/or 'Submit' you are expressly consenting, in writing, to receive telemarketing and other messages, including artificial or prerecorded voices, via automated calls or texts from jumprealty.ca and up.mortgages at the number you provided above. This consent is not required to purchase any good or service. Message and data rates may apply, frequency varies. Text HELP for help or STOP to cancel. More details in Terms of Use and Privacy Policy.

Listing Agency:  ROYAL LEPAGE TEAM REALTY

* Data is provided courtesy of PROPTX. The information provided herein must only be used by consumers that have a bona fide interest in the purchase, sale, or lease of real estate and may not be used for any commercial purpose or any other purpose. The information is deemed reliable but is not guaranteed accurate by PROPTX.

Hospital
Parks
Schools
Place of Worship
Please select an amenity above to view a list.

Recommended Properties

Loading...
742 Tailslide Private
Carp - Huntley Ward , Ontario
3 3 $559,900
Get more info