For Sale - 750 HUNTINGWOOD Drive, Toronto, Ontario

Est payment $9,123/mo
Views   1
Time on Jump  80 day
  • Prime vacant land in a family-friendly neighborhood with high demand.
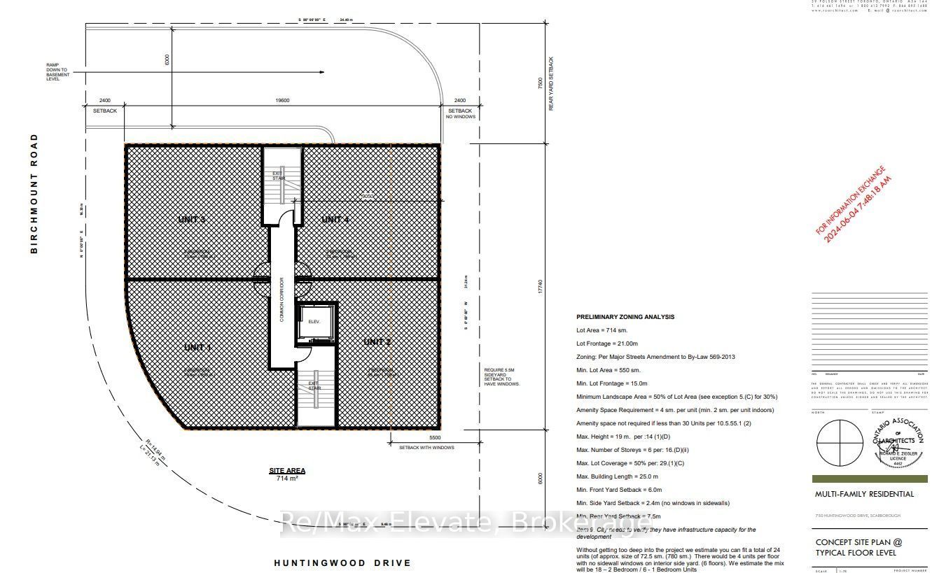
  • Zoned for townhomes and potential for a six-storey mid-rise.
  • Approved plans for five townhomes with legal secondary units.
  • Great location near major streets, transit, and amenities.
  • High-potential investment opportunity in a sought-after area.



Amazing development opportunity in a highly desirable area. Zoned for townhomes, with the potential to build a 6-storey, 30-unit mid-rise! This exceptional, vacant land is located in a sought-after, family-friendly neighborhood and is currently zoned rd*1121. It has already been approved for five freehold townhomes, each with a legal secondary unit, totaling 10 units. Alternatively, take advantage of the city-approved zoning allowing for the construction of a six-storey, 30-unit mid-rise building. Situated at the intersection of two major streets, this site is in a high-demand rental area, with easy access to public transit, just minutes from highway 401, shopping centers, restaurants, parks, and all essential amenities. This is a rare, high-potential investment opportunity, whether you're considering townhomes or a mid-rise. Dont miss out this prime site wont last long!
Listing IDE12687468
Address750 HUNTINGWOOD Drive
CityToronto, Ontario
Price$1,899,900
StyleOther, Vacant Land
ConstructionOther
TypeVacant Land
StatusFor Sale
Subtype Vacant LandIndoor Features NoneOwnership FreeholdWaterfront NoneBasement NoneHeating / Cooling OtherHeating Fuel Propane
ASAP

Fri

3

Apr

Sat

4

Apr

Sun

5

Apr

Mon

6

Apr

Tue

7

Apr

Wed

8

Apr

Thu

9

Apr

Fri

10

Apr

Sat

11

Apr

Sun

12

Apr

Mon

13

Apr

Tue

14

Apr

Wed

15

Apr

Thu

16

Apr

Fri

17

Apr

Sat

18

Apr

Sun

19

Apr

Mon

20

Apr

Tue

21

Apr

Wed

22

Apr

Thu

23

Apr

Fri

24

Apr

Sat

25

Apr

Sun

26

Apr

Mon

27

Apr

Tue

28

Apr

Wed

29

Apr

Thu

30

Apr

Fri

1

May

By clicking “Get pre-qualified” and/or 'Submit' you are expressly consenting, in writing, to receive telemarketing and other messages, including artificial or prerecorded voices, via automated calls or texts from jumprealty.ca and up.mortgages at the number you provided above. This consent is not required to purchase any good or service. Message and data rates may apply, frequency varies. Text HELP for help or STOP to cancel. More details in Terms of Use and Privacy Policy.

Listing Agency:  Re/Max Elevate

* Data is provided courtesy of PROPTX. The information provided herein must only be used by consumers that have a bona fide interest in the purchase, sale, or lease of real estate and may not be used for any commercial purpose or any other purpose. The information is deemed reliable but is not guaranteed accurate by PROPTX.

Hospital
Parks
Schools
Place of Worship
Please select an amenity above to view a list.

Recommended Properties

Loading...
750 Huntingwood Drive
Toronto , Ontario
$1,899,900
Get more info