For Sale - 756 Richmond Street, Toronto, Ontario

Est payment $6,439/mo
Views   1
Time on Jump  1 days
  • Extensively renovated home with new major systems and modern finishes throughout.
  • Bright living spaces enhanced by engineered hardwood floors and updated kitchens.
  • Flexible finished attic space, perfect for an office or creative studio.
  • Self-contained two-bedroom lower level ideal for guests or rental opportunities.
  • Private tandem parking with hardscaped backyard, close to amenities and parks.



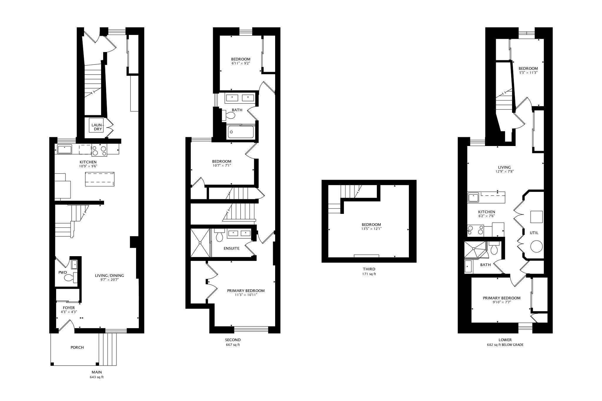
Extensively renovated with intention and quality, this 4 + 2 bedroom, 3. 5 - bath richmond west home is turnkey in the truest sense. Major systems have been newly installed or significantly modernized, including hvac, 200 amp electrical service, insulation, windows, roofing membrane, and exterior finishes. Inside, engineered hardwood floors, beautifully updated kitchens and bathrooms, and clean modern lines define bright, well-designed living spaces. A finished attic with skylight adds flexible bonus space - perfect for a home office, studio, or creative escape. The lower level features a self-contained two-bedroom living area with a separate entrance, complete with full interior waterproofing, sump pump, and egress window -- ideal for extended family, a nanny or guest suite, or those looking for flexibility with potential supplemental income. A true rarity for the area; enjoy private laneway-access tandem parking for two vehicles behind a roll-up garage door, plus a professionally hardscaped backyard and new fencing. Set in the heart of richmond west / queen west -- steps to cafés, restaurants, transit, and trinity bellwoods park.
Listing IDC12774192
Address756 Richmond Street
CityToronto, Ontario
Price$1,299,000
Bed / Bath6 / 4 Full
Style2 1/2 Storey, Att/Row/Townhouse
ConstructionVinyl Siding
Land Size1151.74
TypeResidential
StatusFor Sale
Subtype Att/Row/TownhouseIndoor Features Accessory Apartment, Carpet Free, Floor Drain, Guest Accommodations, In-Law Capability, In-Law Suite, Sump Pump, Water HeaterOutdoor Features Paved YardOwnership FreeholdBasement Finished, Full, Separate EntranceFoundation UnknownHeating / Cooling Forced AirHeating Fuel GasSewer Sewer
Parking 2.00
ASAP

Wed

11

Feb

Thu

12

Feb

Fri

13

Feb

Sat

14

Feb

Sun

15

Feb

Mon

16

Feb

Tue

17

Feb

Wed

18

Feb

Thu

19

Feb

Fri

20

Feb

Sat

21

Feb

Sun

22

Feb

Mon

23

Feb

Tue

24

Feb

Wed

25

Feb

Thu

26

Feb

Fri

27

Feb

Sat

28

Feb

Sun

1

Mar

Mon

2

Mar

Tue

3

Mar

Wed

4

Mar

Thu

5

Mar

Fri

6

Mar

Sat

7

Mar

Sun

8

Mar

Mon

9

Mar

Tue

10

Mar

Wed

11

Mar

By clicking “Get pre-qualified” and/or 'Submit' you are expressly consenting, in writing, to receive telemarketing and other messages, including artificial or prerecorded voices, via automated calls or texts from jumprealty.ca and up.mortgages at the number you provided above. This consent is not required to purchase any good or service. Message and data rates may apply, frequency varies. Text HELP for help or STOP to cancel. More details in Terms of Use and Privacy Policy.

Listing Agency:  ONE PERCENT REALTY LTD.
Hospital
Parks
Schools
Place of Worship
Please select an amenity above to view a list.

Recommended Properties

Loading...
756 Richmond Street
Toronto , Ontario
6 4 $1,299,000
Get more info