For Lease - 7575 Kimbel Street Unit# 1-2, Mississauga, Ontario

Views   1
Time on Jump  89 day
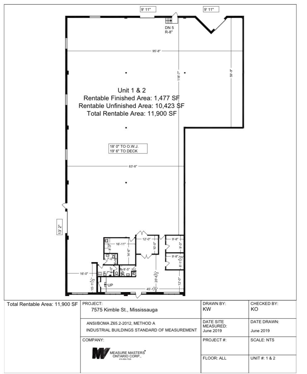
  • Spacious end unit warehouse with 11,900 sq ft of usable space.
  • Includes two dock doors and one drive-in door for easy loading.
  • Shipping yard can accommodate large 53 ft trailers effortlessly.
  • Desirable E3 zoning perfect for various business operations.
  • Great location with easy access to major highways and Pearson Airport.
Functional end unit warehouse space comprised of 11,900 sq ft (10,423 warehouse and 1,477 office) with 2dock doors, 1 drive in door and a shipping yard accommodating 53 ft trailers. Desirable e3 zoning and prime location on north end of pearson airport. Convenient location with easy access to 410, 427, 401.
Listing IDW12362061
Address7575 Kimbel Street Unit# 1-2
CityMississauga, Ontario
Lease$17
StyleIndustrial
TypeIndustrial/Commercial
StatusFor Lease
Subtype IndustrialOwnership LeaseholdHeating / Cooling Fan Coil
ASAP

Tue

16

Dec

Wed

17

Dec

Thu

18

Dec

Fri

19

Dec

Sat

20

Dec

Sun

21

Dec

Mon

22

Dec

Tue

23

Dec

Wed

24

Dec

Thu

25

Dec

Fri

26

Dec

Sat

27

Dec

Sun

28

Dec

Mon

29

Dec

Tue

30

Dec

Wed

31

Dec

Thu

1

Jan

Fri

2

Jan

Sat

3

Jan

Sun

4

Jan

Mon

5

Jan

Tue

6

Jan

Wed

7

Jan

Thu

8

Jan

Fri

9

Jan

Sat

10

Jan

Sun

11

Jan

Mon

12

Jan

Tue

13

Jan

By clicking “Get pre-qualified” and/or 'Submit' you are expressly consenting, in writing, to receive telemarketing and other messages, including artificial or prerecorded voices, via automated calls or texts from jumprealty.ca and up.mortgages at the number you provided above. This consent is not required to purchase any good or service. Message and data rates may apply, frequency varies. Text HELP for help or STOP to cancel. More details in Terms of Use and Privacy Policy.

Listing Agency:  ROYAL LEPAGE SIGNATURE REALTY
Hospital
Parks
Schools
Place of Worship
Please select an amenity above to view a list.

Recommended Properties

Loading...
7575 Kimbel Street Unit# 1-2
Mississauga , Ontario
$17
Get more info