For Lease - 76 Kingston Road, Toronto, Ontario

Views   2
Time on Jump  65 day
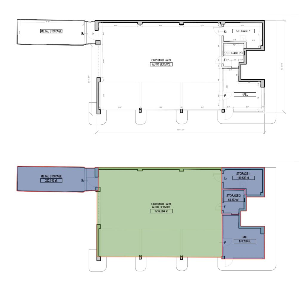
  • Versatile property ideal for automotive garage use in a prime location.
  • Approximately 1,800 sq. ft. building with a spacious 8,200 sq. ft. lot.
  • Includes a customer area and three functional service bays.
  • Excellent visibility and high traffic exposure ensures strong business potential.
  • Sub-lease available with potential extension options after December 2027.
Prime automotive garage use. Located just north of kingston road and queen street east, this versatile property includes an approximately 1,800 sq. Ft. Building on a 0. 19-acre (8,200 sq. Ft.) lot. Features include a showroom/customer area and three functional service bays, offering excellent visibility and strong traffic exposure in a high-demand corridor. Rental rate is per month, semi-gross, plus hst. Utilities are separately metered and/or separately charged. The utilities are the responsibility of the tenant. This is a sub-lease, with an expiry of december 30th, 2027. Landlord will consider an extension beyond sublease expiry.
Listing IDE12714542
Address76 Kingston Road
CityToronto, Ontario
Lease$11,500
StyleCommercial Retail
TypeIndustrial/Commercial
StatusFor Lease
Subtype Commercial RetailOwnership LeaseholdHeating / Cooling OtherSewer Sanitary+Storm
ASAP

Fri

27

Mar

Sat

28

Mar

Sun

29

Mar

Mon

30

Mar

Tue

31

Mar

Wed

1

Apr

Thu

2

Apr

Fri

3

Apr

Sat

4

Apr

Sun

5

Apr

Mon

6

Apr

Tue

7

Apr

Wed

8

Apr

Thu

9

Apr

Fri

10

Apr

Sat

11

Apr

Sun

12

Apr

Mon

13

Apr

Tue

14

Apr

Wed

15

Apr

Thu

16

Apr

Fri

17

Apr

Sat

18

Apr

Sun

19

Apr

Mon

20

Apr

Tue

21

Apr

Wed

22

Apr

Thu

23

Apr

Fri

24

Apr

By clicking “Get pre-qualified” and/or 'Submit' you are expressly consenting, in writing, to receive telemarketing and other messages, including artificial or prerecorded voices, via automated calls or texts from jumprealty.ca and up.mortgages at the number you provided above. This consent is not required to purchase any good or service. Message and data rates may apply, frequency varies. Text HELP for help or STOP to cancel. More details in Terms of Use and Privacy Policy.

Listing Agency:  ROYAL LEPAGE SIGNATURE REALTY

* Data is provided courtesy of PROPTX. The information provided herein must only be used by consumers that have a bona fide interest in the purchase, sale, or lease of real estate and may not be used for any commercial purpose or any other purpose. The information is deemed reliable but is not guaranteed accurate by PROPTX.

Hospital
Parks
Schools
Place of Worship
Please select an amenity above to view a list.

Recommended Properties

Loading...
76 Kingston Road
Toronto , Ontario
$11,500
Get more info