For Lease - 763 Bay Street Unit# 402, Toronto, Ontario

Views   1
Time on Jump  1 days
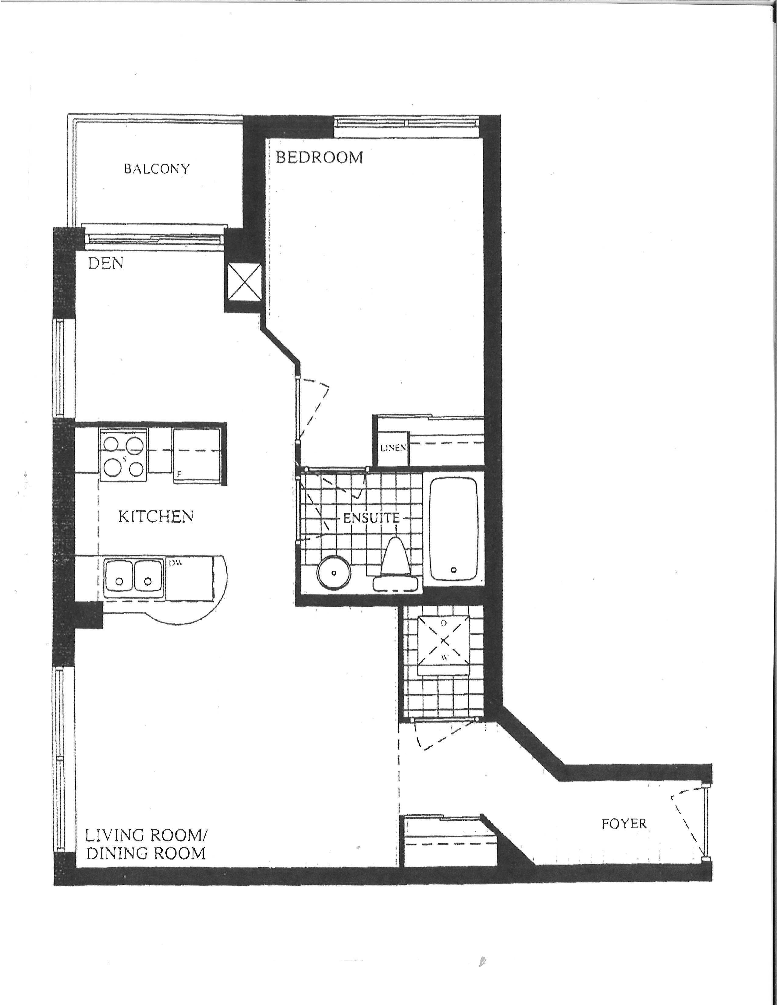
  • Bright corner unit with one bedroom and a den for extra space.
  • Functional layout with a walk-out balcony for fresh air.
  • Overlooks a park, providing a pleasant view and outdoor access.
  • Excellent building amenities with a 24-hour concierge for convenience.
  • Prime location near universities, hospitals, and direct subway access.
* college park i * one bedroom bright corner unit plus den with window & walk-out to balcony * functional layout * overlook park * excellent location * great building amenities * 24 hour concierge * close to u of t, u of metropolitan & hospitals * direct access to subway, supermarket, food court, tim hortons, dollarama & many more... * no pets & non-smokers please * one parking space included *
Listing IDC12951876
Address763 Bay Street Unit# 402
CityToronto, Ontario
Lease$2,500
Bed / Bath2 / 1 Full
StyleApartment, Condo Apartment
ConstructionConcrete
TypeCondominium
StatusFor Lease
Subtype Condo ApartmentIndoor Features Carpet Free, EnsuiteInclusions Building Insurance, Building Maintenance, Central Air Conditioning, Common Elements, Heat, Hydro, Parking, WaterAmenities Hospital, Park, Public TransitOwnership LeaseholdBuilding Amenities Concierge, Elevator, Exercise Room, Indoor Pool, Party Room/Meeting Room, Recreation RoomBasement NoneHeating / Cooling Forced AirHeating Fuel Gas
Parking 1.00
ASAP

Sun

5

Apr

Mon

6

Apr

Tue

7

Apr

Wed

8

Apr

Thu

9

Apr

Fri

10

Apr

Sat

11

Apr

Sun

12

Apr

Mon

13

Apr

Tue

14

Apr

Wed

15

Apr

Thu

16

Apr

Fri

17

Apr

Sat

18

Apr

Sun

19

Apr

Mon

20

Apr

Tue

21

Apr

Wed

22

Apr

Thu

23

Apr

Fri

24

Apr

Sat

25

Apr

Sun

26

Apr

Mon

27

Apr

Tue

28

Apr

Wed

29

Apr

Thu

30

Apr

Fri

1

May

Sat

2

May

Sun

3

May

By clicking “Get pre-qualified” and/or 'Submit' you are expressly consenting, in writing, to receive telemarketing and other messages, including artificial or prerecorded voices, via automated calls or texts from jumprealty.ca and up.mortgages at the number you provided above. This consent is not required to purchase any good or service. Message and data rates may apply, frequency varies. Text HELP for help or STOP to cancel. More details in Terms of Use and Privacy Policy.

Listing Agency:  TRADEWORLD REALTY INC

* Data is provided courtesy of PROPTX. The information provided herein must only be used by consumers that have a bona fide interest in the purchase, sale, or lease of real estate and may not be used for any commercial purpose or any other purpose. The information is deemed reliable but is not guaranteed accurate by PROPTX.

Hospital
Parks
Schools
Place of Worship
Please select an amenity above to view a list.

Recommended Properties

Loading...
763 Bay Street Unit# 402
Toronto , Ontario
2 1 $2,500
Get more info