For Lease - 78B Queen Street Unit# 201, Bonnechere Valley, Ontario

Views   2
Time on Jump  25 day
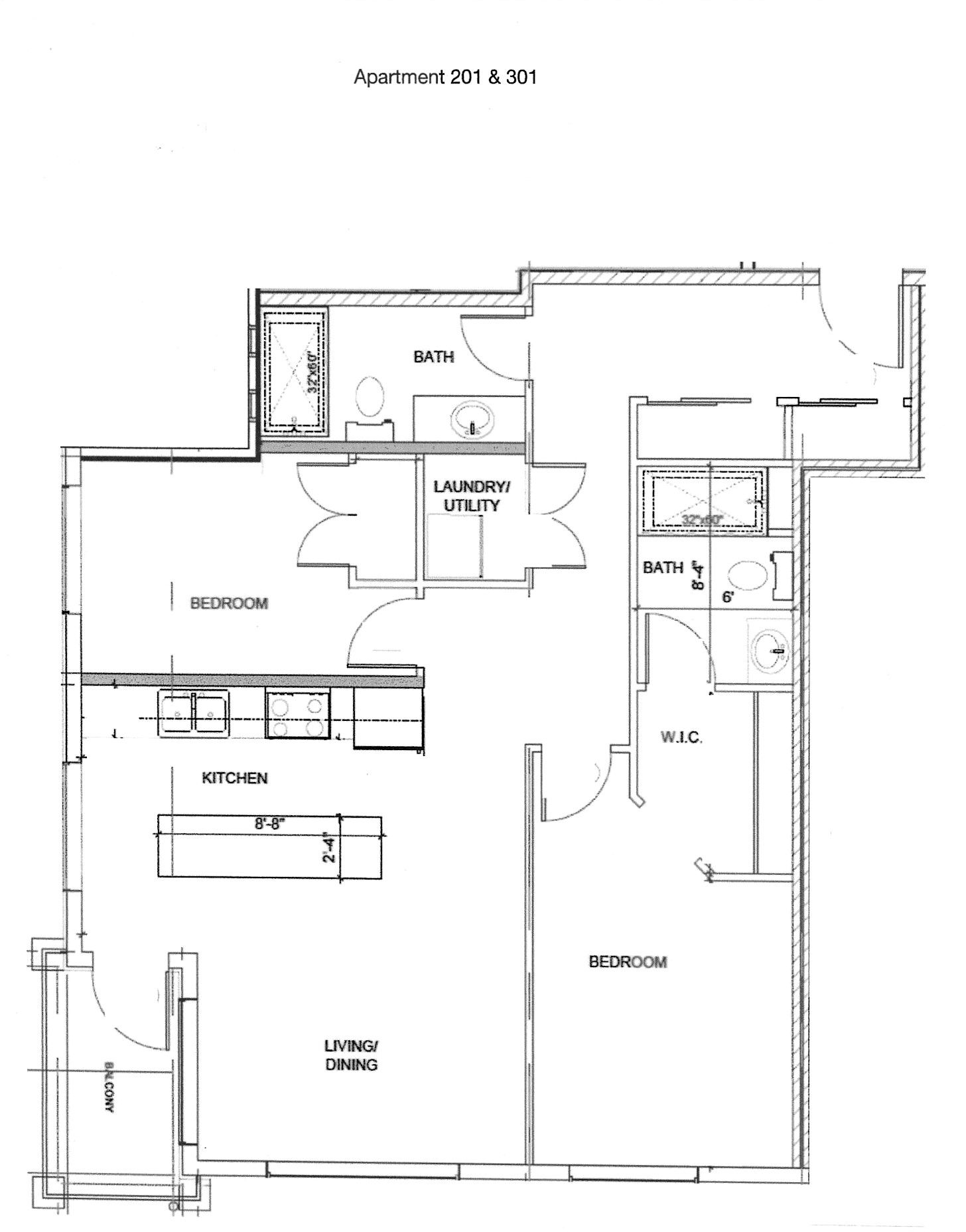
  • Brand new two-bedroom apartment ideal for seniors or professionals.
  • Second floor unit with elevator access and secure building.
  • Private balcony offering great valley views for relaxing.
  • Modern kitchen with granite counters and all major appliances included.
  • In-floor heating and individually controlled A/C for comfort.
For rent; a stunning brand new two bedroom two full bath apartment in eganville, perfect for seniors or professionals seeking a low-maintenance lifestyle. This second floor unit in an elevator serviced, secure building offers a private balcony with lovely views of the valley. The primary bedroom features a walk in closet, wonderful tiled ensuite bath with walk in shower. The modern white kitchen with elegant black trim and subway tiled backsplash is more than you would expect to see in an apartment and the granite counters makes this the talk of the town. All kitchen major appliances are included and each unit has its own laundry hook-up, hrv system, full sized hot water tank and heat pump for your individually controlled a/c. In floor heating that is controlled in each unit is included in your rent as is water, sewer and parking. Hydro and internet/ phone is the tenants responsibility. Eganville is a great family friendly community surrounded by nature!
Listing IDX12860238
Address78B Queen Street Unit# 201
CityBonnechere Valley, Ontario
Lease$2,200
Bed / Bath2 / 2 Full
StyleApartment, Multiplex
ConstructionStone, Metal/Steel Siding
TypeMulti-Family
StatusFor Lease
Subtype MultiplexIndoor Features Air Exchanger, Separate Heating Controls, Separate Hydro Meter, Water Heater, In AreaInclusions Common Elements, Grounds Maintenance, Exterior Maintenance, Heat, Water, Snow Removal, ParkingOwnership LeaseholdBasement NoneFoundation Insulated Concrete FormHeating / Cooling RadiantHeating Fuel PropaneSewer Sewer
Parking 1.00
ASAP

Sat

4

Apr

Sun

5

Apr

Mon

6

Apr

Tue

7

Apr

Wed

8

Apr

Thu

9

Apr

Fri

10

Apr

Sat

11

Apr

Sun

12

Apr

Mon

13

Apr

Tue

14

Apr

Wed

15

Apr

Thu

16

Apr

Fri

17

Apr

Sat

18

Apr

Sun

19

Apr

Mon

20

Apr

Tue

21

Apr

Wed

22

Apr

Thu

23

Apr

Fri

24

Apr

Sat

25

Apr

Sun

26

Apr

Mon

27

Apr

Tue

28

Apr

Wed

29

Apr

Thu

30

Apr

Fri

1

May

Sat

2

May

By clicking “Get pre-qualified” and/or 'Submit' you are expressly consenting, in writing, to receive telemarketing and other messages, including artificial or prerecorded voices, via automated calls or texts from jumprealty.ca and up.mortgages at the number you provided above. This consent is not required to purchase any good or service. Message and data rates may apply, frequency varies. Text HELP for help or STOP to cancel. More details in Terms of Use and Privacy Policy.

Listing Agency:  SIGNATURE TEAM REALTY LTD.

* Data is provided courtesy of PROPTX. The information provided herein must only be used by consumers that have a bona fide interest in the purchase, sale, or lease of real estate and may not be used for any commercial purpose or any other purpose. The information is deemed reliable but is not guaranteed accurate by PROPTX.

Hospital
Parks
Schools
Place of Worship
Please select an amenity above to view a list.

Recommended Properties

Loading...
78b Queen Street Unit# 201
Bonnechere Valley , Ontario
2 2 $2,200
Get more info