For Sale - 82 BASE LINE Road, London South, Ontario

Est payment $3,842/mo
Views   3
Time on Jump  25 day
  • Currently configured as four units from a former single-family home.
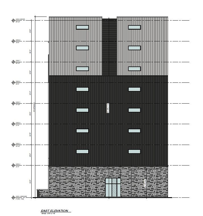
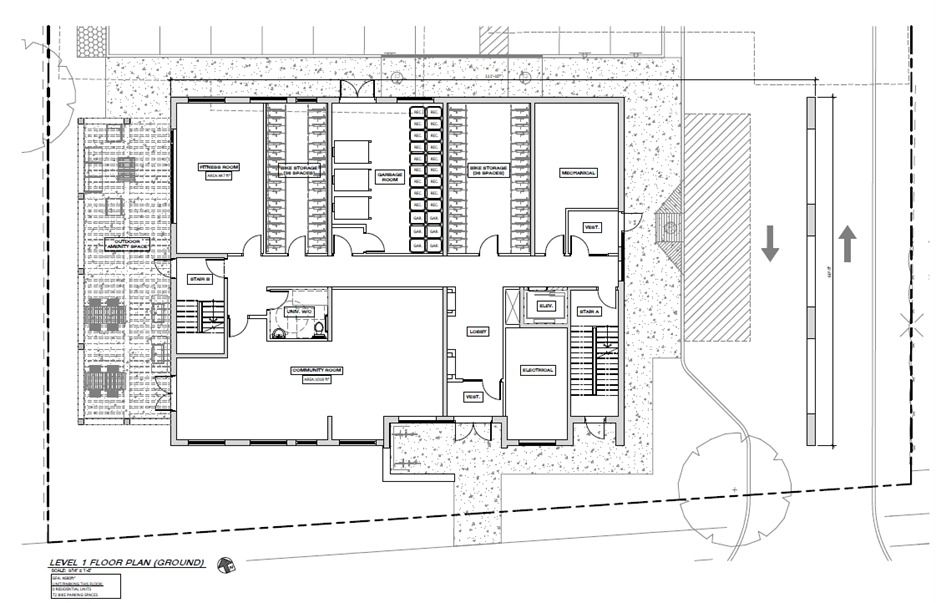
  • Zoned R9-7, approved for an 8-storey, 77-unit apartment building.
  • Excellent location near Wortley Village with access to transit and amenities.
  • Existing tenancy provides income to offset holding costs during redevelopment.
  • Potential for additional density with options for up to 12 storeys.



Opportunity knocks. Currently configured as four units converted from a single-family home and zoned r9-7, this property offers exceptional redevelopment and value-add potential. This prime multi-residential development site presents a rare and flexible acquisition opportunity for qualified buyers. The half-acre site is fully rezoned for an 8-storey, 77-unit apartment building, allowing the next owner to proceed directly to the draft site plan approval (spa) phase, while the existing tenancy provides interim income to help offset holding costs. Ideally located steps from wortley village in london, the property benefits from excellent access to transit, shops, restaurants, and green space, making it highly attractive to future renters. Existing zoning permits up to 12 storeys with potential for additional density through underground parking, and there is also the ability to develop 10-plex buildings depending on the buyer's strategy. This property must be sold together with the neighbouring bungalow at 80 baseline road, creating a larger development assembly and enhancing overall redevelopment potential, making this a rare near-turnkey opportunity in a high-demand location with multiple exit strategies.
Listing IDX12861716
Address82 BASE LINE Road
CityLondon South, Ontario
Price$800,000
Bed / Bath4 / 4 Full
Style2-Storey, Fourplex
ConstructionBrick
TypeMulti-Family
StatusFor Sale
Subtype FourplexIndoor Features NoneAmenities Golf, Hospital, Fenced YardOwnership FreeholdWaterfront NoneBasement Unfinished, Partial BasementFoundation ConcreteHeating / Cooling Forced AirHeating Fuel GasSewer Sewer
Parking 5.00
ASAP

Sat

4

Apr

Sun

5

Apr

Mon

6

Apr

Tue

7

Apr

Wed

8

Apr

Thu

9

Apr

Fri

10

Apr

Sat

11

Apr

Sun

12

Apr

Mon

13

Apr

Tue

14

Apr

Wed

15

Apr

Thu

16

Apr

Fri

17

Apr

Sat

18

Apr

Sun

19

Apr

Mon

20

Apr

Tue

21

Apr

Wed

22

Apr

Thu

23

Apr

Fri

24

Apr

Sat

25

Apr

Sun

26

Apr

Mon

27

Apr

Tue

28

Apr

Wed

29

Apr

Thu

30

Apr

Fri

1

May

Sat

2

May

By clicking “Get pre-qualified” and/or 'Submit' you are expressly consenting, in writing, to receive telemarketing and other messages, including artificial or prerecorded voices, via automated calls or texts from jumprealty.ca and up.mortgages at the number you provided above. This consent is not required to purchase any good or service. Message and data rates may apply, frequency varies. Text HELP for help or STOP to cancel. More details in Terms of Use and Privacy Policy.

Listing Agency:  RE/MAX TWIN CITY REALTY INC.

* Data is provided courtesy of PROPTX. The information provided herein must only be used by consumers that have a bona fide interest in the purchase, sale, or lease of real estate and may not be used for any commercial purpose or any other purpose. The information is deemed reliable but is not guaranteed accurate by PROPTX.

Hospital
Parks
Schools
Place of Worship
Please select an amenity above to view a list.

Recommended Properties

Loading...
82 Base Line Road
London South , Ontario
4 4 $800,000
Get more info