For Sale - 83 Victoria Street Unit# 2, Meaford, Ontario

Est payment $1,752/mo
Views   1
Time on Jump  7 day
  • Inviting 2-bedroom, 2-bath home in a quiet community of 20 units.
  • Bright open-concept layout with a gas fireplace for cozy living.
  • Two spacious bedrooms and a convenient laundry room on the upper floor.
  • Private rear deck and covered porch perfect for outdoor relaxation.
  • Access to a clubhouse and recreational activities close to Georgian Bay.



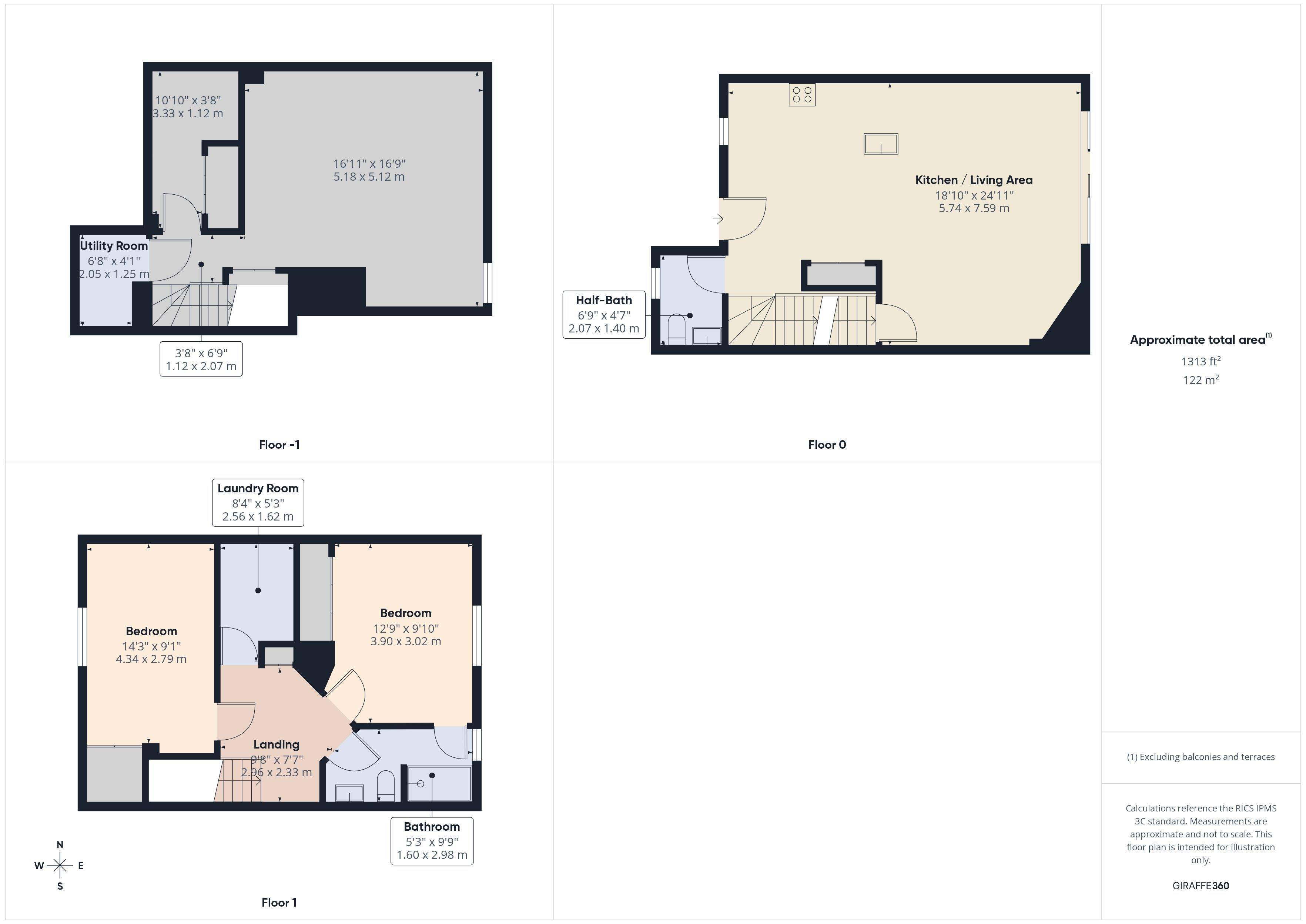
Welcome to unit #2 at brookside, an inviting 2-bedroom, 2-bath home offering comfort, space, and a low-maintenance lifestyle in a quiet, well-kept community of just 20 units. The main floor features a bright, open-concept layout with a center island kitchen and a cozy living area anchored by a gas fireplace with a stacked stone surround-ideal for both everyday living and entertaining. Upstairs, you'll find two generously sized bedrooms, including one with a vaulted ceiling, along with hardwood flooring, an updated 3-piece bathroom (completely redone in 2024), and a convenient laundry room with ample storage. The finished lower level adds valuable living space with a large recreation room and additional storage options. Enjoy outdoor living with a fully covered front porch and a private rear deck off the living area, complemented by new glass sliding doors installed in 2024-perfect for relaxing or hosting. Located in the heart of meaford on the shores of georgian bay, this home offers access to a true four-season lifestyle. Residents enjoy a private clubhouse for larger gatherings, ample visitor parking, and a peaceful setting just a short walk to the beach. Close to schools, restaurants, golf, curling, and pickleball, and only a short drive to ski hills-this location truly has it all.
Listing IDX12989178
Address83 Victoria Street Unit# 2
CityMeaford, Ontario
Price$364,900
Bed / Bath2 / 2 Full
Style2-Storey, Condo Townhouse
ConstructionVinyl Siding
TypeCondominium
StatusFor Sale
Subtype Condo TownhouseIndoor Features Sump Pump, Laundry RoomOutdoor Features PorchBuilding Amenities Bike Storage, Club HouseBasement FinishedHeating / Cooling Forced AirHeating Fuel Gas
Parking 1.00
ASAP

Wed

22

Apr

Thu

23

Apr

Fri

24

Apr

Sat

25

Apr

Sun

26

Apr

Mon

27

Apr

Tue

28

Apr

Wed

29

Apr

Thu

30

Apr

Fri

1

May

Sat

2

May

Sun

3

May

Mon

4

May

Tue

5

May

Wed

6

May

Thu

7

May

Fri

8

May

Sat

9

May

Sun

10

May

Mon

11

May

Tue

12

May

Wed

13

May

Thu

14

May

Fri

15

May

Sat

16

May

Sun

17

May

Mon

18

May

Tue

19

May

Wed

20

May

By clicking “Get pre-qualified” and/or 'Submit' you are expressly consenting, in writing, to receive telemarketing and other messages, including artificial or prerecorded voices, via automated calls or texts from jumprealty.ca and up.mortgages at the number you provided above. This consent is not required to purchase any good or service. Message and data rates may apply, frequency varies. Text HELP for help or STOP to cancel. More details in Terms of Use and Privacy Policy.

Listing Agency:  eXp Realty

* Data is provided courtesy of PROPTX. The information provided herein must only be used by consumers that have a bona fide interest in the purchase, sale, or lease of real estate and may not be used for any commercial purpose or any other purpose. The information is deemed reliable but is not guaranteed accurate by PROPTX.

Hospital
Parks
Schools
Place of Worship
Please select an amenity above to view a list.

Recommended Properties

Loading...
83 Victoria Street Unit# 2
Meaford , Ontario
2 2 $364,900
Get more info