For Lease - 880 Ellesmere Road Unit# S207, Toronto, Ontario

Views   1
Time on Jump  1 days
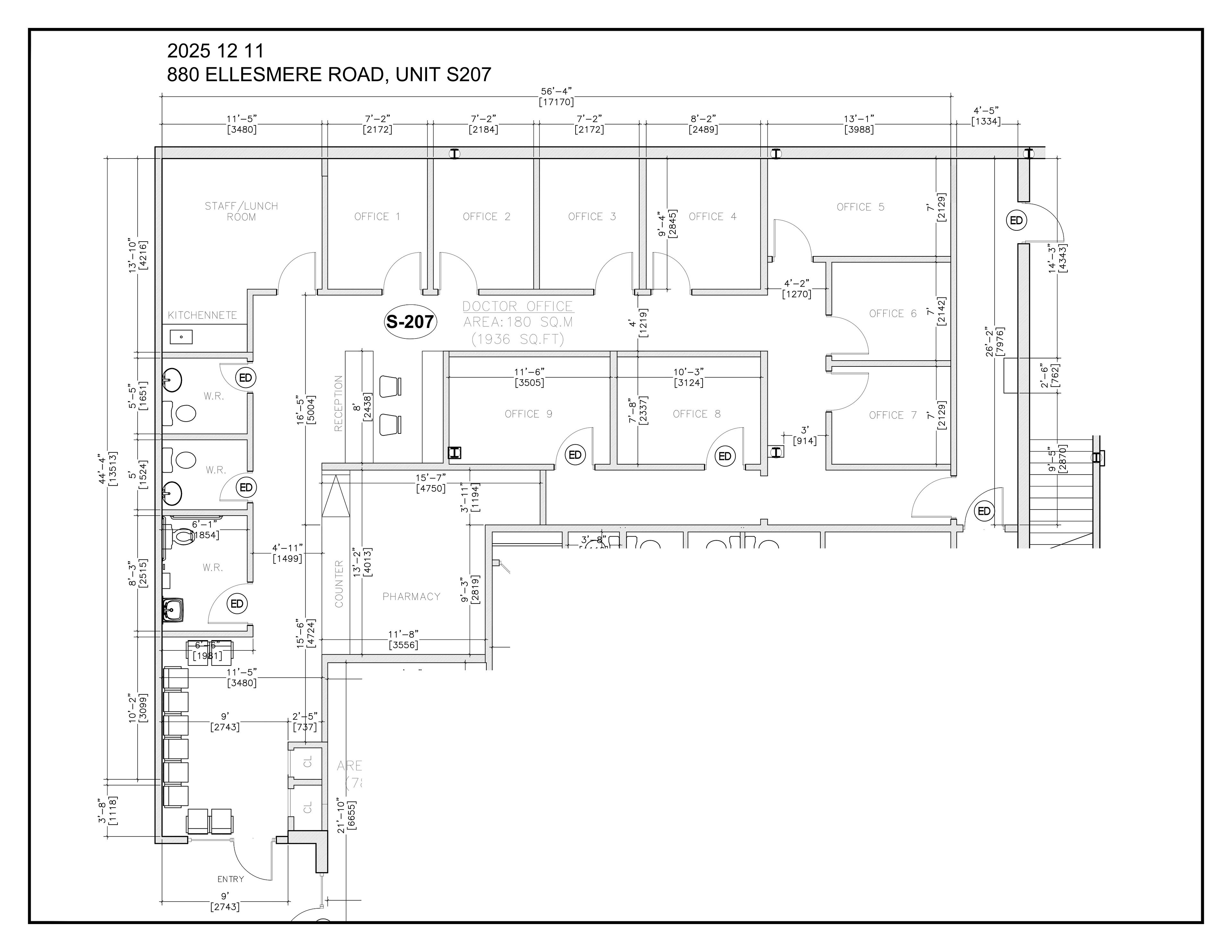
  • Spacious main-floor retail or office space with 1,936 sq. ft. available.
  • Located in a high-traffic plaza with excellent street-front exposure.
  • Suitable for a doctor's office with pharmacy and multiple office spaces.
  • Easy access to major highways and public transit for convenience.
  • Ample parking and prominent signage options for great visibility.
Prime main-floor retail / professional office opportunity. Ideal for doctor's office with pharmacy. 9 offices + pharmacy. Excellent main-floor space ideal for professional office or retail use, offering 1,936 sq. Ft. (unit s207) with the option to combine with unit s205 for a total of 2,721 sq. Ft. Floor plans attached. Located in a high-traffic plaza with outstanding street-front exposure at the strategic corner of kennedy road and ellesmere road, this well-established trade area is surrounded by a diverse mix of tenants and high-density condominium towers and residential townhomes, ensuring consistent foot and vehicular traffic. Key features: prominent front signage and pylon signage available, excellent ingress and egress from ellesmere road, strong visibility with pedestrian and vehicular exposure, ample surface and underground parking, elevator access to second- and third-floor offices, quick access to highway 401convenient access to ttc transit and nearby amenities. An ideal opportunity for businesses seeking visibility, accessibility, and a strong surrounding customer base.
Listing IDE12635106
Address880 Ellesmere Road Unit# S207
CityToronto, Ontario
Lease$4,950
Bath1 Full
StyleOffice
TypeIndustrial/Commercial
StatusFor Lease
Subtype OfficeCommunity Features Major Highway, Public TransitOwnership LeaseholdHeating / Cooling Gas Forced Air ClosedSewer Sanitary+Storm
ASAP

Wed

17

Dec

Thu

18

Dec

Fri

19

Dec

Sat

20

Dec

Sun

21

Dec

Mon

22

Dec

Tue

23

Dec

Wed

24

Dec

Thu

25

Dec

Fri

26

Dec

Sat

27

Dec

Sun

28

Dec

Mon

29

Dec

Tue

30

Dec

Wed

31

Dec

Thu

1

Jan

Fri

2

Jan

Sat

3

Jan

Sun

4

Jan

Mon

5

Jan

Tue

6

Jan

Wed

7

Jan

Thu

8

Jan

Fri

9

Jan

Sat

10

Jan

Sun

11

Jan

Mon

12

Jan

Tue

13

Jan

Wed

14

Jan

By clicking “Get pre-qualified” and/or 'Submit' you are expressly consenting, in writing, to receive telemarketing and other messages, including artificial or prerecorded voices, via automated calls or texts from jumprealty.ca and up.mortgages at the number you provided above. This consent is not required to purchase any good or service. Message and data rates may apply, frequency varies. Text HELP for help or STOP to cancel. More details in Terms of Use and Privacy Policy.

Listing Agency:  RE/MAX PREMIER INC.
Hospital
Parks
Schools
Place of Worship
Please select an amenity above to view a list.

Recommended Properties

Loading...
880 Ellesmere Road Unit# S207
Toronto , Ontario
1 $4,950
Get more info