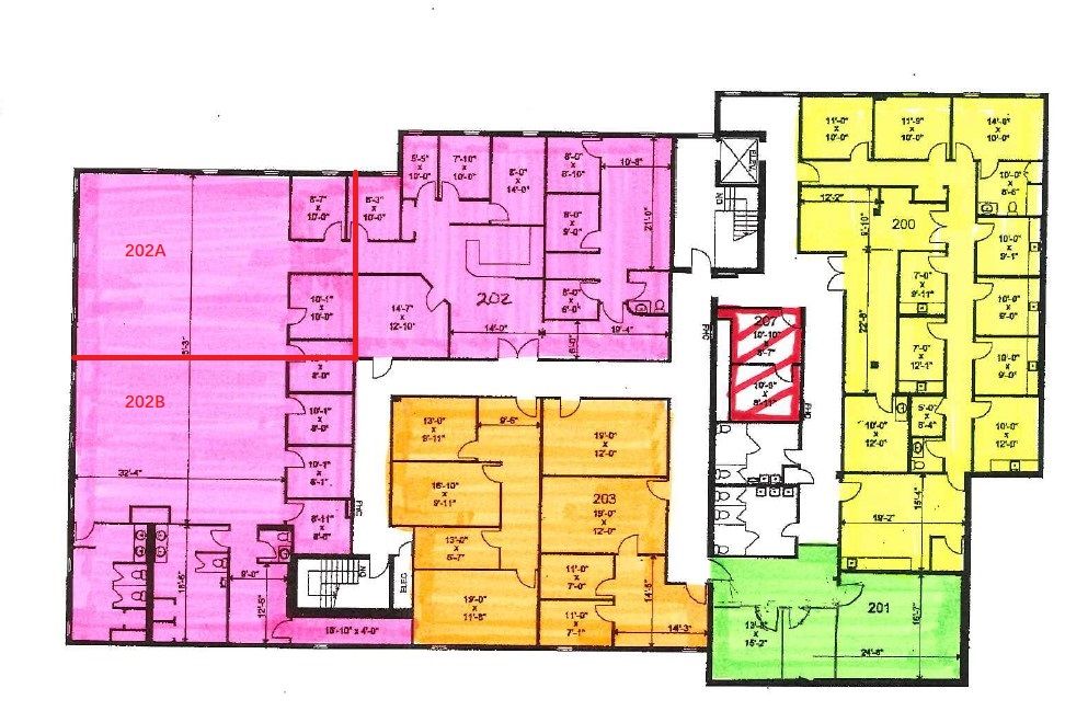
For Lease - 901 Jane Street Unit# 202B, Toronto, Ontario

Views   1
Time on Jump  2 day
  • Spacious 2,800 sq. ft. second-floor office space with great visibility.
  • Ample on-site parking for easy access for clients and staff.
  • Versatile unit suitable for various professional and health services.
  • Located in a growing area with strong exposure and accessibility.
  • Negotiable listing price with potential for additional equipment purchase.
Prime 2,800 sq. Ft. Second-floor office space available on a high-traffic arterial road with excellent visibility and ample on-site parking. Thisversatile unit is ideal for office, professional services, and health and wellness uses. Located in a growing residential and commercial area withconvenient access to public transit, the property offers strong exposure, easy accessibility, and excellent growth potential. Listing price isnegotiable depending on the length of term. Extras: water, hydro, gas, and additional cam expenses. Current tenant is get well physio, andsome business-related equipment may also be available for sale.
Listing IDW12970590
Address901 Jane Street Unit# 202B
CityToronto, Ontario
Lease$4,500
StyleOffice
Land Size24907
TypeIndustrial/Commercial
StatusFor Lease
Subtype OfficeCommunity Features Major Highway, Public TransitOwnership LeaseholdHeating / Cooling Gas Forced Air Open
ASAP

Sun

12

Apr

Mon

13

Apr

Tue

14

Apr

Wed

15

Apr

Thu

16

Apr

Fri

17

Apr

Sat

18

Apr

Sun

19

Apr

Mon

20

Apr

Tue

21

Apr

Wed

22

Apr

Thu

23

Apr

Fri

24

Apr

Sat

25

Apr

Sun

26

Apr

Mon

27

Apr

Tue

28

Apr

Wed

29

Apr

Thu

30

Apr

Fri

1

May

Sat

2

May

Sun

3

May

Mon

4

May

Tue

5

May

Wed

6

May

Thu

7

May

Fri

8

May

Sat

9

May

Sun

10

May

By clicking “Get pre-qualified” and/or 'Submit' you are expressly consenting, in writing, to receive telemarketing and other messages, including artificial or prerecorded voices, via automated calls or texts from jumprealty.ca and up.mortgages at the number you provided above. This consent is not required to purchase any good or service. Message and data rates may apply, frequency varies. Text HELP for help or STOP to cancel. More details in Terms of Use and Privacy Policy.

Listing Agency:  KAIZEN CAPITAL REALTY PARTNERS

* Data is provided courtesy of PROPTX. The information provided herein must only be used by consumers that have a bona fide interest in the purchase, sale, or lease of real estate and may not be used for any commercial purpose or any other purpose. The information is deemed reliable but is not guaranteed accurate by PROPTX.

Hospital
Parks
Schools
Place of Worship
Please select an amenity above to view a list.

Recommended Properties

Loading...
901 Jane Street Unit# 202b
Toronto , Ontario
$4,500
Get more info