For Lease - 910 Mid-Way Boulevard Unit# 1B, Mississauga, Ontario

Views   1
Time on Jump  27 day
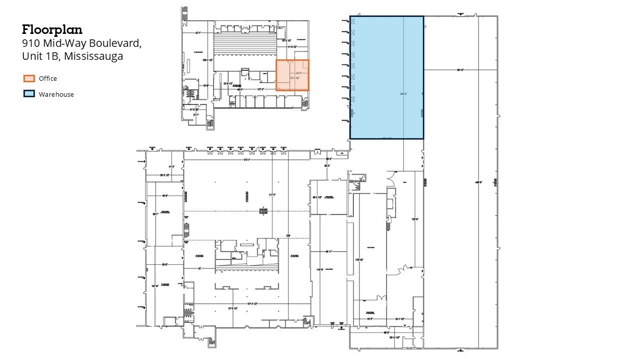
  • Versatile open-concept warehouse suitable for various recreational or operational uses.
  • Ideal space for vehicle storage and unobstructed wide-open storage options.
  • Outside storage available with 53' trailer parking for convenience.
  • Great location providing flexibility for logistics and transportation needs.
  • Perfect for managing overflow inventory with ample space to work.
Versatile, open-concept warehouse space is ideal for recreational users, vehicle storage, or any operation that benefits from unobstructed, wide-open space. The property features outside storage with 53' trailer parking available. This location provides added convenience and flexibility for logistics, transportation, or overflow inventory needs.
Listing IDW12688422
Address910 Mid-Way Boulevard Unit# 1B
CityMississauga, Ontario
Lease$16
StyleIndustrial
TypeIndustrial/Commercial
StatusFor Lease
Subtype IndustrialOwnership LeaseholdHeating / Cooling Gas Forced Air Open
ASAP

Mon

9

Feb

Tue

10

Feb

Wed

11

Feb

Thu

12

Feb

Fri

13

Feb

Sat

14

Feb

Sun

15

Feb

Mon

16

Feb

Tue

17

Feb

Wed

18

Feb

Thu

19

Feb

Fri

20

Feb

Sat

21

Feb

Sun

22

Feb

Mon

23

Feb

Tue

24

Feb

Wed

25

Feb

Thu

26

Feb

Fri

27

Feb

Sat

28

Feb

Sun

1

Mar

Mon

2

Mar

Tue

3

Mar

Wed

4

Mar

Thu

5

Mar

Fri

6

Mar

Sat

7

Mar

Sun

8

Mar

Mon

9

Mar

By clicking “Get pre-qualified” and/or 'Submit' you are expressly consenting, in writing, to receive telemarketing and other messages, including artificial or prerecorded voices, via automated calls or texts from jumprealty.ca and up.mortgages at the number you provided above. This consent is not required to purchase any good or service. Message and data rates may apply, frequency varies. Text HELP for help or STOP to cancel. More details in Terms of Use and Privacy Policy.

Listing Agency:  AVISON YOUNG COMMERCIAL REAL ESTATE SERVICES, LP
Hospital
Parks
Schools
Place of Worship
Please select an amenity above to view a list.

Recommended Properties

Loading...
910 Mid-way Boulevard Unit# 1b
Mississauga , Ontario
$16
Get more info