For Lease - 925 Bay Street Unit# R1A, Toronto, Ontario

Views   1
Time on Jump  70 day
  • Fully furnished and renovated office space ready for immediate occupancy.
  • Prominent location at a busy intersection with high visibility.
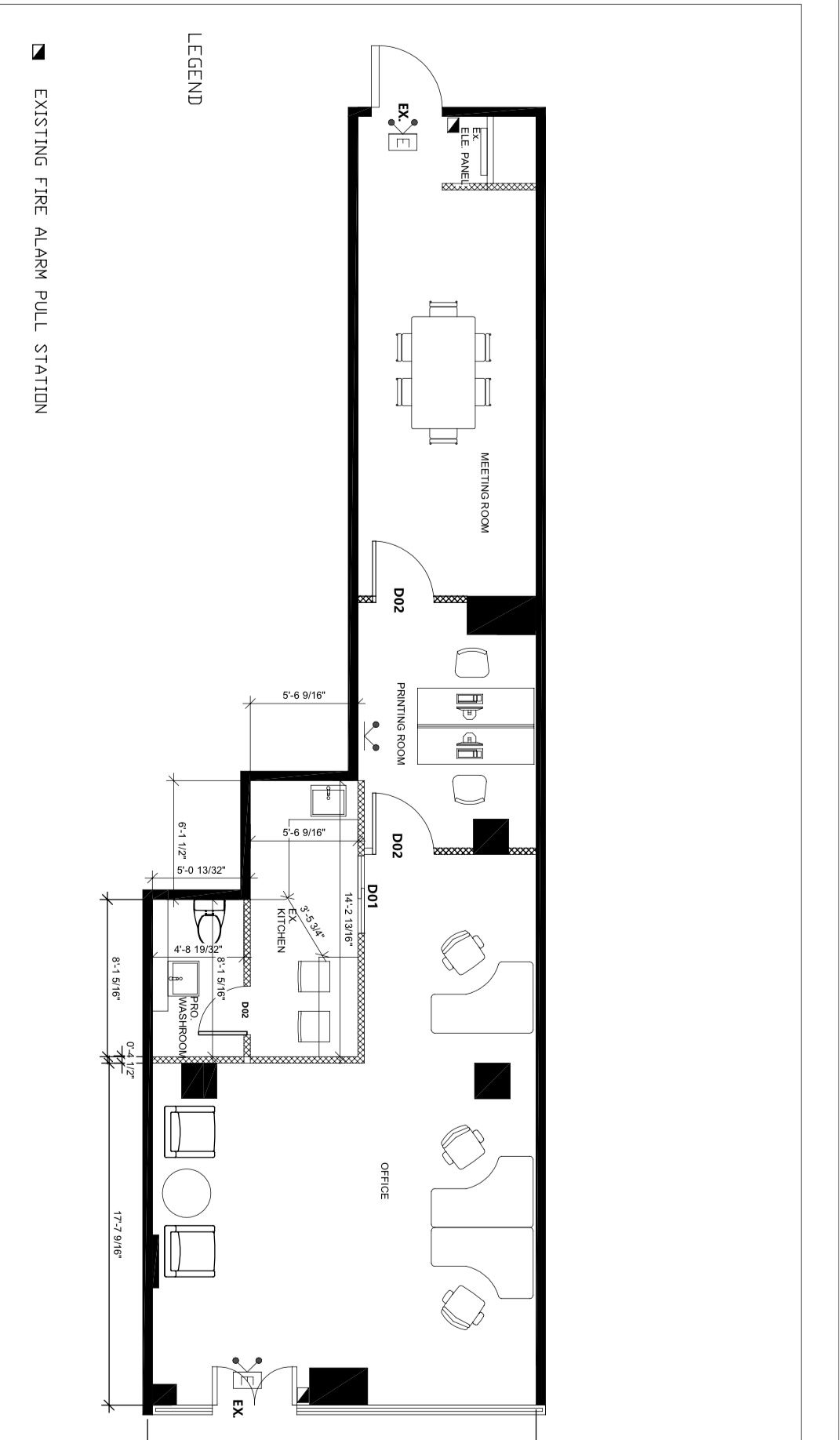
  • Efficient layout featuring private office, meeting room, and open workstation area.
  • Close to universities and major institutions, attracting consistent foot traffic.
  • Convenient access to dining, shopping, and entertainment options in Yorkville.
Move-in-ready, fully renovated and furnished 1,043 sq. Ft. Office sublease prominently located at the signalized corner of bay street and wellesley street, with direct street frontage on bay street. Situated at the base of the bay club, a 32-storey residential tower, the space benefits from excellent visibility, continuous pedestrian traffic, and immediate ttc access directly outside the entrance. The bright, efficient layout includes one private office, one meeting room, a large open workstation area, a kitchen, and a private washroom, offering a true turnkey solution for professional or commercial users. Approximately 500 metres from the university of toronto and uhn, and surrounded by major institutions including queen's park, toronto metropolitan university, college park, and numerous office towers. A short, convenient walk to world-class arts and entertainment, parks, dining, and luxury shopping in yorkville, as well as minutes from holt renfrew centre and the colonnade on bloor street. This vibrant location benefits from strong daytime and evening activity and is well suited for a wide range of commercial uses office, restaurants, retail, dental, and other personal & consumer services like hair/nail salon, dry cleaner,fitness centre, etc..
Listing IDC12856266
Address925 Bay Street Unit# R1A
CityToronto, Ontario
Lease$1
StyleOffice
TypeIndustrial/Commercial
StatusFor Lease
Subtype OfficeOwnership LeaseholdHeating / Cooling Electric Forced Air
ASAP

Sat

16

May

Sun

17

May

Mon

18

May

Tue

19

May

Wed

20

May

Thu

21

May

Fri

22

May

Sat

23

May

Sun

24

May

Mon

25

May

Tue

26

May

Wed

27

May

Thu

28

May

Fri

29

May

Sat

30

May

Sun

31

May

Mon

1

Jun

Tue

2

Jun

Wed

3

Jun

Thu

4

Jun

Fri

5

Jun

Sat

6

Jun

Sun

7

Jun

Mon

8

Jun

Tue

9

Jun

Wed

10

Jun

Thu

11

Jun

Fri

12

Jun

Sat

13

Jun

By clicking “Get pre-qualified” and/or 'Submit' you are expressly consenting, in writing, to receive telemarketing and other messages, including artificial or prerecorded voices, via automated calls or texts from jumprealty.ca and up.mortgages at the number you provided above. This consent is not required to purchase any good or service. Message and data rates may apply, frequency varies. Text HELP for help or STOP to cancel. More details in Terms of Use and Privacy Policy.

Listing Agency:  JDL REALTY INC.

* Data is provided courtesy of PROPTX. The information provided herein must only be used by consumers that have a bona fide interest in the purchase, sale, or lease of real estate and may not be used for any commercial purpose or any other purpose. The information is deemed reliable but is not guaranteed accurate by PROPTX.

Hospital
Parks
Schools
Place of Worship
Please select an amenity above to view a list.

Recommended Properties

Loading...
925 Bay Street Unit# R1a
Toronto , Ontario
$1
Get more info