For Lease - 93 John Street Unit# 1, Hamilton, Ontario

Views   1
Time on Jump  1 days
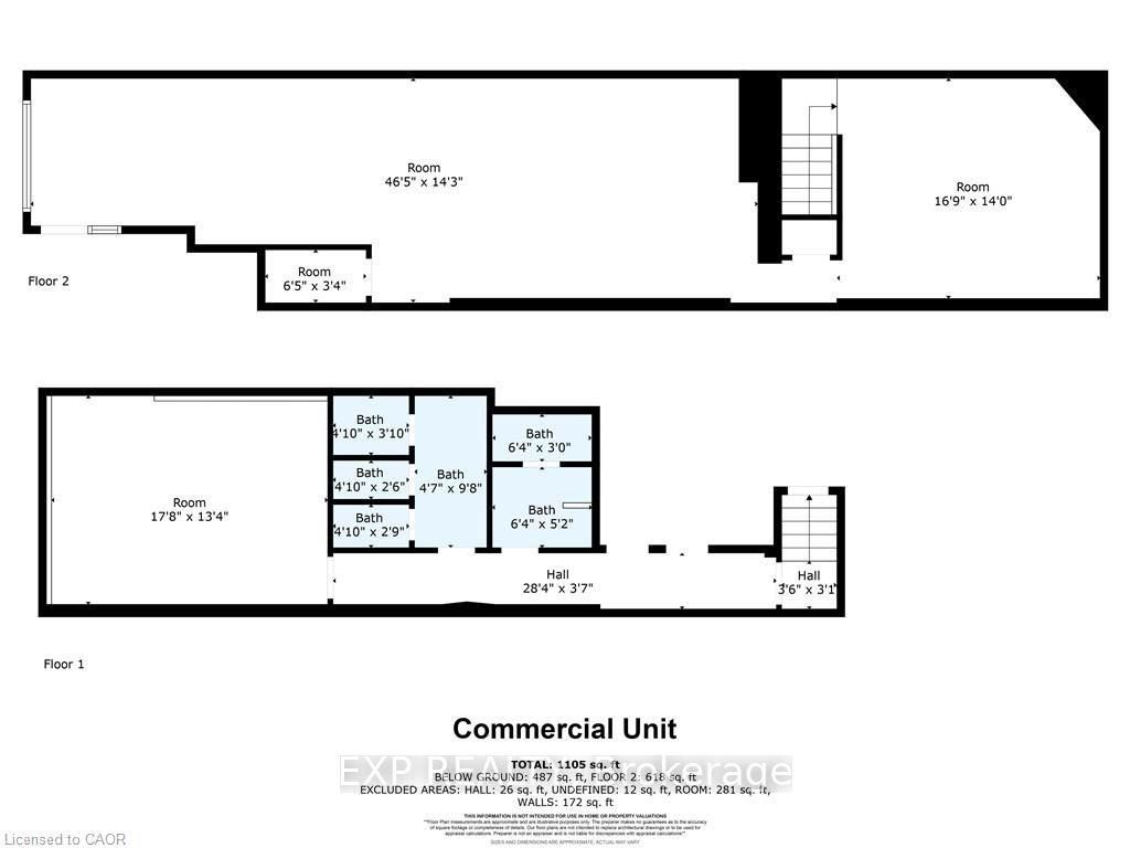
  • Fully renovated 1,100 sq. ft. storefront in downtown Hamilton.
  • Modern open layout with 11-foot ceilings and natural light.
  • Large front window for excellent visibility and advertising.
  • Includes two bathrooms and a spacious basement for storage.
  • Prime location near Hamilton GO Station for easy access.
This fully renovated 1,100 sq. Ft. Storefront offers a modern and versatile space in the heart of downtown hamilton. Featuring soaring 11-foot ceilings with new two-tone pot lighting, a spacious open layout, and a large front window that provides excellent visibility and natural light, the property is designed to showcase your business at its best. The space includes two bathrooms and a generous basement for storage, as well as 400-amp service to support a wide range of uses. Located just steps from the hamilton go station, this unbeatable location ensures maximum convenience and accessibility for both tenants and customers.
Listing IDX12831794
Address93 John Street Unit# 1
CityHamilton, Ontario
Lease$2,210
StyleCommercial Retail
TypeIndustrial/Commercial
StatusFor Lease
Subtype Commercial RetailOwnership LeaseholdHeating / Cooling Gas Forced Air Open
ASAP

Mon

2

Mar

Tue

3

Mar

Wed

4

Mar

Thu

5

Mar

Fri

6

Mar

Sat

7

Mar

Sun

8

Mar

Mon

9

Mar

Tue

10

Mar

Wed

11

Mar

Thu

12

Mar

Fri

13

Mar

Sat

14

Mar

Sun

15

Mar

Mon

16

Mar

Tue

17

Mar

Wed

18

Mar

Thu

19

Mar

Fri

20

Mar

Sat

21

Mar

Sun

22

Mar

Mon

23

Mar

Tue

24

Mar

Wed

25

Mar

Thu

26

Mar

Fri

27

Mar

Sat

28

Mar

Sun

29

Mar

Mon

30

Mar

By clicking “Get pre-qualified” and/or 'Submit' you are expressly consenting, in writing, to receive telemarketing and other messages, including artificial or prerecorded voices, via automated calls or texts from jumprealty.ca and up.mortgages at the number you provided above. This consent is not required to purchase any good or service. Message and data rates may apply, frequency varies. Text HELP for help or STOP to cancel. More details in Terms of Use and Privacy Policy.

Listing Agency:  EXP REALTY
Hospital
Parks
Schools
Place of Worship
Please select an amenity above to view a list.

Recommended Properties

Loading...
93 John Street Unit# 1
Hamilton , Ontario
$2,210
Get more info